
3 bedroom detached house for sale
Desborough Avenue, High Wycombe, Buckinghamshire, HP11 2TW

- PROPERTY TYPE
Detached
- BEDROOMS
3
- BATHROOMS
1
- SIZE
850 sq ft
79 sq m
- TENUREDescribes how you own a property. There are different types of tenure - freehold, leasehold, and commonhold.Read more about tenure in our glossary page.
Freehold
Key features
- OPEN HOUSE 3RD JAN 12pm to 2pm
- Three-bedroom detached family home
- Needing modernisation
- No onward chain
- Two reception rooms and kitchen
- Large garage and driveway parking
- Scope to extend (STPP)
- Approx. 100ft rear garden
- Easy access to High Wycombe town centre
- Excellent rail and M40 commuting links
Description
A spacious three-bedroom detached family home with a large garden, excellent potential and no onward chain.
Situated in a highly regarded location close to the ever-popular Poets Corner development, this detached family home offers generous accommodation and significant scope to extend and improve, subject to the usual planning consents.
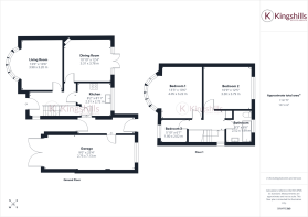
The property comprises three well-proportioned bedrooms and a family bathroom on the first floor, while the ground floor offers two reception rooms providing flexible living and entertaining space, alongside a fitted kitchen. The layout is ideal for modernisation or reconfiguration to suit contemporary family living.
Externally, the home benefits from a front driveway providing off-street parking, a large garage to one side, and a particularly impressive rear garden extending to approximately 100ft, offering a wonderful outdoor space for families, entertaining, or future development.
High Wycombe town centre is within easy reach and offers an excellent range of shops, cafés, restaurants and leisure facilities, including the Eden Shopping Centre, Wycombe Swan Theatre and The Rye parkland, making it ideal for both day-to-day living and family activities. For commuters, High Wycombe railway station provides fast and frequent services into London Marylebone, while easy access to the M40 motorway connects the property efficiently to London, Oxford and the wider motorway network.
Offered to the market with no onward chain, 219 Desborough Avenue represents a fantastic opportunity to acquire a detached family home in a convenient and well-connected location.
- COUNCIL TAXA payment made to your local authority in order to pay for local services like schools, libraries, and refuse collection. The amount you pay depends on the value of the property.Read more about council Tax in our glossary page.
- Ask agent
- PARKINGDetails of how and where vehicles can be parked, and any associated costs.Read more about parking in our glossary page.
- Driveway
- GARDENA property has access to an outdoor space, which could be private or shared.
- Yes
- ACCESSIBILITYHow a property has been adapted to meet the needs of vulnerable or disabled individuals.Read more about accessibility in our glossary page.
- No wheelchair access
Desborough Avenue, High Wycombe, Buckinghamshire, HP11 2TW
Add an important place to see how long it'd take to get there from our property listings.
__mins driving to your place
Get an instant, personalised result:
- Show sellers you’re serious
- Secure viewings faster with agents
- No impact on your credit score
Your mortgage
Notes
Staying secure when looking for property
Ensure you're up to date with our latest advice on how to avoid fraud or scams when looking for property online.
Visit our security centre to find out moreDisclaimer - Property reference KHW-44295446. The information displayed about this property comprises a property advertisement. Rightmove.co.uk makes no warranty as to the accuracy or completeness of the advertisement or any linked or associated information, and Rightmove has no control over the content. This property advertisement does not constitute property particulars. The information is provided and maintained by Kingshills Estate Agents South Buckinghamshire, South Buckinghamshire. Please contact the selling agent or developer directly to obtain any information which may be available under the terms of The Energy Performance of Buildings (Certificates and Inspections) (England and Wales) Regulations 2007 or the Home Report if in relation to a residential property in Scotland.
*This is the average speed from the provider with the fastest broadband package available at this postcode. The average speed displayed is based on the download speeds of at least 50% of customers at peak time (8pm to 10pm). Fibre/cable services at the postcode are subject to availability and may differ between properties within a postcode. Speeds can be affected by a range of technical and environmental factors. The speed at the property may be lower than that listed above. You can check the estimated speed and confirm availability to a property prior to purchasing on the broadband provider's website. Providers may increase charges. The information is provided and maintained by Decision Technologies Limited. **This is indicative only and based on a 2-person household with multiple devices and simultaneous usage. Broadband performance is affected by multiple factors including number of occupants and devices, simultaneous usage, router range etc. For more information speak to your broadband provider.
Map data ©OpenStreetMap contributors.





