Commercial property for sale
14 Church Lane, Lexden Colchester, Essex, CO3 4AF
- SIZE AVAILABLE
2,425 sq ft
225 sq m
- SECTOR
Commercial property for sale
Key features
- MIXED USE INVESTMENT
- VETERINARY SURGERY WITH 7.5 YEAR UNEXPIRED LEASE TERM
- 2 FLATS LET ON AST'S
- PLENTIFUL CAR PARKING
Description
The property comprises a mixed use investment, with the entire ground floor and part first let to a veterinarian surgery, and the rear of the first floor let as two one-bed flats on the basis of two Assured Shorthold Tenancies. To the front of the building is off street parking, providing 4 spaces, and to the rear are a further three. There is also contained within the freehold a separate car park containing 8 spaces. The combined income from the property is £41,800pa exclusive of any costs.
Location
14 Church Lane is located within Lexden, a pleasant suburb to the South-West of Colchester City Centre. Colchester is a medium sized city approximately 20 miles to the North-East of Chelmsford There is excellent road access with the A12 being 5 minutes drive away. The property is on a small parade, which also features a barbershop, beauty salon, and convenience store.
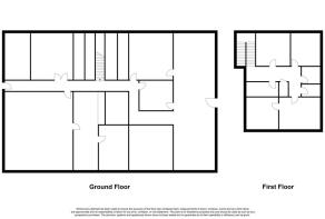
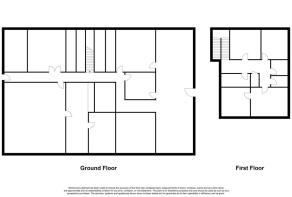
Accommodation
Commercial:
Ground Floor: 1,114 sq ft (103.5 sq m)
First Floor: 579 sq ft (53.8 sq m)
TOTAL: 1,693 sq ft (157.3 sq m)
Residential:
2x 1-bed Flats.
Tenure Comments
The freehold interest of the property is available, subject to the AST lettings of the first floor apartments, at a guide price of £550,000. The ground and part first floor is let on a 15 year Lease from June 2018.
Legal Costs
Each party to be responsible for their own legal costs incurred.
Viewing
Strictly via prior appointment with sole agents Elwell Taylor )
VAT
We understand the property is not elected for VAT
Brochures
14 Church Lane, Lexden Colchester, Essex, CO3 4AF
NEAREST STATIONS
Distances are straight line measurements from the centre of the postcode- Colchester Station1.9 miles
- Colchester Town Station1.9 miles
- Hythe Station2.9 miles
Notes
Disclaimer - Property reference 245FH. The information displayed about this property comprises a property advertisement. Rightmove.co.uk makes no warranty as to the accuracy or completeness of the advertisement or any linked or associated information, and Rightmove has no control over the content. This property advertisement does not constitute property particulars. The information is provided and maintained by Elwell Taylor Commercial, Chelmsford. Please contact the selling agent or developer directly to obtain any information which may be available under the terms of The Energy Performance of Buildings (Certificates and Inspections) (England and Wales) Regulations 2007 or the Home Report if in relation to a residential property in Scotland.
Map data ©OpenStreetMap contributors.





