2 bedroom terraced house for sale
Kentwood Close, Cholsey, Wallingford

- PROPERTY TYPE
Terraced
- BEDROOMS
2
- BATHROOMS
1
- SIZE
Ask agent
- TENUREDescribes how you own a property. There are different types of tenure - freehold, leasehold, and commonhold.Read more about tenure in our glossary page.
Freehold
Key features
- Large outbuilding
- Close to village centre
- Close to station
Description
Description - An extremely well presented 2 double bedroom house tucked away in a quiet cul-de-sac, just 300 yards from Cholsey train station with fast routes to Reading, Oxford and London Paddington.
The property is only a few minutes walk from the charming village centre of Cholsey, which features a traditional butcher, cafe, hairdresser and Tesco Express. The convenience of Wallingford is easily reached by car or bus, and offers a popular marketplace alongside a range of shops, cafes, bars and restaurants, as well as Waitrose and Lidl. Cholsey also benefits from excellent road links via the M4, M40 and A34, making this an ideal location for commuters.
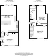
To the front of the property is private driveway parking for two vehicles. The front door opens into a homely yet spacious sitting room, featuring a log burning stove and understairs storage. This leads through to the centrepiece of the house, a light and spacious open plan kitchen/living room which features a modern kitchen with integrated appliances and generous worktop space. From here, full width bi-fold doors open directly onto the garden, which creates an atmosphere of indoor/outdoor living, particularly in the warmer months.
The rear garden is a good size, landscaped and designed for low maintenance. It includes pet friendly faux lawn, composite decking and newly installed, raised flower beds, along with a pebbled pathway providing additional rear access via a gate. A highlight of the property is the recently modernised outbuilding, offering an additional multi functional living space. Currently used as a gym and home office, it benefits from power and lends itself to a variety of uses.
Upstairs the property offers a large master double bedroom with built-in wardrobes and cupboard storage, alongside a second spacious double bedroom with a built-in cupboard (currently used as a wardrobe) and under bench storage. The sizeable family bathroom is fully modernised with an electric shower over a large bath, twin basins, heated towel rail, and integrated W/C.
This is a deceptively spacious and beautifully maintained home, combining a peaceful village setting with excellent transport connections. A rare opportunity in a highly desirable location.
NB: archive external photos used for marketing
Brochures
Kentwood Close, Cholsey, WallingfordBrochure- COUNCIL TAXA payment made to your local authority in order to pay for local services like schools, libraries, and refuse collection. The amount you pay depends on the value of the property.Read more about council Tax in our glossary page.
- Band: C
- PARKINGDetails of how and where vehicles can be parked, and any associated costs.Read more about parking in our glossary page.
- Driveway
- GARDENA property has access to an outdoor space, which could be private or shared.
- Yes
- ACCESSIBILITYHow a property has been adapted to meet the needs of vulnerable or disabled individuals.Read more about accessibility in our glossary page.
- Ask agent
Kentwood Close, Cholsey, Wallingford
Add an important place to see how long it'd take to get there from our property listings.
__mins driving to your place
Get an instant, personalised result:
- Show sellers you’re serious
- Secure viewings faster with agents
- No impact on your credit score
Your mortgage
Notes
Staying secure when looking for property
Ensure you're up to date with our latest advice on how to avoid fraud or scams when looking for property online.
Visit our security centre to find out moreDisclaimer - Property reference 34360280. The information displayed about this property comprises a property advertisement. Rightmove.co.uk makes no warranty as to the accuracy or completeness of the advertisement or any linked or associated information, and Rightmove has no control over the content. This property advertisement does not constitute property particulars. The information is provided and maintained by Homebase Property, Wallingford. Please contact the selling agent or developer directly to obtain any information which may be available under the terms of The Energy Performance of Buildings (Certificates and Inspections) (England and Wales) Regulations 2007 or the Home Report if in relation to a residential property in Scotland.
*This is the average speed from the provider with the fastest broadband package available at this postcode. The average speed displayed is based on the download speeds of at least 50% of customers at peak time (8pm to 10pm). Fibre/cable services at the postcode are subject to availability and may differ between properties within a postcode. Speeds can be affected by a range of technical and environmental factors. The speed at the property may be lower than that listed above. You can check the estimated speed and confirm availability to a property prior to purchasing on the broadband provider's website. Providers may increase charges. The information is provided and maintained by Decision Technologies Limited. **This is indicative only and based on a 2-person household with multiple devices and simultaneous usage. Broadband performance is affected by multiple factors including number of occupants and devices, simultaneous usage, router range etc. For more information speak to your broadband provider.
Map data ©OpenStreetMap contributors.




