
Plot 7 - Old School Close, Rowlands Gill, Gateshead, NE39
- PROPERTY TYPE
Plot
- SIZE
Ask agent
Key features
- Individual Building Plot
- Planning Approved
- Large Corner Plot
- Serviced
Description
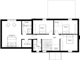
An invidivual building plot available with planning permission approved for a large four bedroom detached house with a double garage, situated on the Old School Close development at Highfield, Rowlands Gill. This particular plot is situated at the head of the cul-de-sac with a good size rear garden.
Old School Close is a superb new development of 13, three & four bedroomed detached houses, situated on the outskirts of Rowlands Gill.
All the properties are to be built in stone and have good size plots.
Rowlands Gill has good village facilities including shops, a Tesco supermarket and Gibside Hall and grounds. Nearby High Spen offers further village amenities including a butcher’s shop, a farm shop, a renowned tea room and a primary school. There is a local bus route to Newcastle and the Metro Centre (within 10 miles and 7 miles respectively), beautiful surrounding countryside and attractions that include Chopwell Woods, Garesfield Golf Club and the picturesque Derwent Walk – an area renowned for the majestic Red Kites. It is approximately 8 miles from Consett, 11 Miles from Newcastle and 17 miles from Durham
Each auction property is offered at a guide price and is also subject to a reserve price. The guide price is the level where the bidding will commence. The reserve price is the sellers minimum acceptable price at auction and the figure below which the auctioneer cannot sell. The reserve price, which may be up to 10% higher than the guide price, is not disclosed and remains confidential between the seller and the auctioneer. Both the guide price and the reserve price can be subject to change up to and including the day of the auction. The successful buyer pays a £2000+vat (Total £2400) Auction Administration Fee. OPTION 1.
PART A
Local Authority – Gateshead
Council Tax Band – To be Confirmed
Tenure – Freehold
PART B
Property Type – Detached
Property Construction – Standard modern stone construction
Number & Types of Rooms – Please refer to the details and floorplan, all measurements taken being the maximum dimensions available between internal walls
Gas Supply- Mains
Electricity supply – Mains
Water Supply – Mains (metered)
Sewerage – Mains
Heating – Gas fired central heating via radiators
Estimated Mobile phone coverage – Please refer to the Ofcom Website -
Estimated Broadband Download speeds – please refer to the Ofcom Website –
Parking- Off Street
PART C
Building Safety – (The Vendor is not aware of any Building Safety issues. However, we would recommend that the purchaser engages the services of a chartered surveyor to confirm)
Restrictions – Covenants which affect the property are contained within the Land Registry Title Register which is available for inspection.
Selective licencing area – no
Article 4 Planning Restricted area – NA
Conservation Area – NA
Rights & Easements- None
Flood risk – Rivers and seas: Very Low, Surface water: Very Low.
Coastal Erosion – N/A
Protected Trees - NA
Planning Permission – Approved for Detached house
Accessibility/Adaptations – NA
Mining Area – Coal Mining Reporting Area, further searches may be required.
No other Material Information disclosures have been made by the vendor. This information has been compiled in good faith using resources readily available online and by enquiry of the vendor prior to marketing. However, such information could change after compilation of the data, so J W Wood cannot be held liable for any changes post compilation or any accidental errors or omissions.
Furthermore, J W Wood are not legally qualified and conveyancing documents are often complicated, necessitating judgement on our part about which parts are “Material Information” to be disclosed. If any information provided, or other matter relating to the property, is of particular importance to you, please do seek verification from a legal advisor before committing to expenditure.
Brochures
Web DetailsPlot 7 - Old School Close, Rowlands Gill, Gateshead, NE39
NEAREST STATIONS
Distances are straight line measurements from the centre of the postcode- Blaydon Station3.6 miles
- Wylam Station4.3 miles
- MetroCentre Station4.6 miles
Notes
Disclaimer - Property reference CNS250745. The information displayed about this property comprises a property advertisement. Rightmove.co.uk makes no warranty as to the accuracy or completeness of the advertisement or any linked or associated information, and Rightmove has no control over the content. This property advertisement does not constitute property particulars. The information is provided and maintained by J W Wood, Consett. Please contact the selling agent or developer directly to obtain any information which may be available under the terms of The Energy Performance of Buildings (Certificates and Inspections) (England and Wales) Regulations 2007 or the Home Report if in relation to a residential property in Scotland.
Auction Fees: The purchase of this property may include associated fees not listed here, as it is to be sold via auction. To find out more about the fees associated with this property please call J W Wood, Consett on 01207 265924.
*Guide Price: An indication of a seller's minimum expectation at auction and given as a Guide Price or a range of Guide Prices. This is not necessarily the figure a property will sell for and is subject to change prior to the auction.
Reserve Price: Each auction property will be subject to a Reserve Price below which the property cannot be sold at auction. Normally the Reserve Price will be set within the range of Guide Prices or no more than 10% above a single Guide Price.
Map data ©OpenStreetMap contributors.








