
Vale Road, Portslade, BN41 1GE

- PROPERTY TYPE
End of Terrace
- BEDROOMS
4
- BATHROOMS
2
- SIZE
Ask agent
- TENUREDescribes how you own a property. There are different types of tenure - freehold, leasehold, and commonhold.Read more about tenure in our glossary page.
Freehold
Key features
- Stunning End Terrace Family Home
- Four Bedrooms
- En-Suite and Separate Shower Room
- Extended Kitchen Dining Room
- Living Room
- Utility Room with WC
- Beautiful Rear Garden
- Moments From Portslade Mainline Station
- Close to Parks, Schools and Shops
- Sought After Family Location
Description
INTERNAL/EXTERNAL
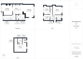
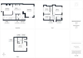
An attractive and beautifully extended end of terrace family home, ideally positioned in this popular south Portslade location, offering generous and versatile accommodation arranged over three floors and finished to a stylish, contemporary standard throughout.
The property is entered via a welcoming and well presented entrance hall, setting the tone for the rest of the home. To the front, a bright and comfortable living room provides an ideal space for relaxing and entertaining. To the middle and rear, the home truly comes into its own with an impressive extended kitchen/dining room, thoughtfully designed to suit modern family living. This superb space enjoys an abundance of natural light and features bi-folding doors that open seamlessly onto the rear garden, creating a wonderful indoor/outdoor flow. A separate utility room with WC adds further practicality to the ground floor.
On the first floor, there are three well proportioned bedrooms, all served by a modern family shower room. The top floor is dedicated to a generous double bedroom, benefitting from its own en-suite shower room, making it an ideal principal bedroom, guest suite or teenage retreat. NB the en-suite is currently disconnected and the owners have planning approved for a dormer extension.
Outside, the rear garden has been attractively landscaped and is well stocked, providing a private and inviting space for outdoor dining, entertaining and family enjoyment.
LOCATION
Vale Road is a particularly well regarded and convenient address within Portslade, offering easy access to everything needed for day to day living while remaining close to the coast and the vibrant city of Brighton & Hove. A variety of local shops, cafés and amenities can be found nearby, with further comprehensive shopping available at Boundary Road and the Holmbush Centre.
The area is well served by a selection of highly regarded primary and secondary schools, making it especially popular with families. Portslade mainline railway station is within easy reach, providing regular and direct services to Brighton, Gatwick Airport and London, ideal for commuters.
For those who enjoy the outdoors, several parks and green spaces are close at hand, including Vale Park and Easthill Park, both offering open recreational areas, children’s play facilities and pleasant walks. The seafront, South Downs and coastal paths are also easily accessible, providing excellent opportunities for leisure and exercise.
Regular bus services operate locally, offering convenient connections throughout Portslade, Hove and Brighton city centre. With its combination of excellent transport links, local amenities, schools and green spaces, this location perfectly balances practical living with a relaxed coastal lifestyle.
- COUNCIL TAXA payment made to your local authority in order to pay for local services like schools, libraries, and refuse collection. The amount you pay depends on the value of the property.Read more about council Tax in our glossary page.
- Band: C
- PARKINGDetails of how and where vehicles can be parked, and any associated costs.Read more about parking in our glossary page.
- Ask agent
- GARDENA property has access to an outdoor space, which could be private or shared.
- Private garden
- ACCESSIBILITYHow a property has been adapted to meet the needs of vulnerable or disabled individuals.Read more about accessibility in our glossary page.
- Ask agent
Energy performance certificate - ask agent
Vale Road, Portslade, BN41 1GE
Add an important place to see how long it'd take to get there from our property listings.
__mins driving to your place
Get an instant, personalised result:
- Show sellers you’re serious
- Secure viewings faster with agents
- No impact on your credit score
Your mortgage
Notes
Staying secure when looking for property
Ensure you're up to date with our latest advice on how to avoid fraud or scams when looking for property online.
Visit our security centre to find out moreDisclaimer - Property reference S1520935. The information displayed about this property comprises a property advertisement. Rightmove.co.uk makes no warranty as to the accuracy or completeness of the advertisement or any linked or associated information, and Rightmove has no control over the content. This property advertisement does not constitute property particulars. The information is provided and maintained by Jacobs Steel, Hove. Please contact the selling agent or developer directly to obtain any information which may be available under the terms of The Energy Performance of Buildings (Certificates and Inspections) (England and Wales) Regulations 2007 or the Home Report if in relation to a residential property in Scotland.
*This is the average speed from the provider with the fastest broadband package available at this postcode. The average speed displayed is based on the download speeds of at least 50% of customers at peak time (8pm to 10pm). Fibre/cable services at the postcode are subject to availability and may differ between properties within a postcode. Speeds can be affected by a range of technical and environmental factors. The speed at the property may be lower than that listed above. You can check the estimated speed and confirm availability to a property prior to purchasing on the broadband provider's website. Providers may increase charges. The information is provided and maintained by Decision Technologies Limited. **This is indicative only and based on a 2-person household with multiple devices and simultaneous usage. Broadband performance is affected by multiple factors including number of occupants and devices, simultaneous usage, router range etc. For more information speak to your broadband provider.
Map data ©OpenStreetMap contributors.





