4 bedroom mixed use property for sale
1, 1A & 1B Hitchin Street, Baldock, Hertfordshire, SG7 6AL
- SIZE
Ask agent
- SECTOR
4 bedroom mixed use property for sale
Description
**For Sale By Public Auction 28th January 2026 02:00 PM To inspect the legal documents for this property go to our website to download the legal pack**
A Mixed Use Corner Building Arranged to Provide 2 x Lower Ground and Ground Floor Commercial Units and 2 x First Floor Flats Fully Let Producing a Combined £26,500 Per Annum
Tenure
Freehold
Location
The property is situated on a mixed use road close to local shops and amenities. The open spaces of Avenue Park Baldock are within easy reach. Transport links are provided by Baldock rail station.
Description
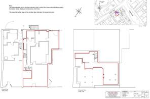
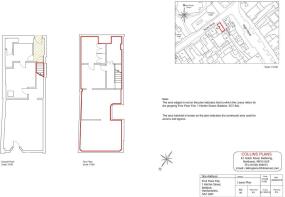
The property comprises a mixed use corner building arranged to provide 2 x lower ground and ground floor commercial units and 2 x first floor flats.
Accommodation & Tenancy Schedule
| Property | Floor | Accommodation | Tenancy Details | Current Rent |
| 1 Hitchin Street | Lower Ground and Ground | Commercial Unit G.I.A Approx 907 sq ft | Lease expiring 31st May 2025 (holding over - negotiations ongoing for new 5 year lease) | £5,500 Per Annum |
| Flat 1 Hitchin Street | First | Reception Room, Kitchen, Two Bedrooms, Bathroom G.I.A Approx 775 sq ft | Subject to a periodic tenancy (Please refer to the legal pack) | £9,000 Per Annum |
| 1a and 1b Hitchin Street | Lower Ground, Ground and First | Commercial Unit, three room Flat G.I.A Approx 603 sq ft - Residential only | Lease expiring 26th February 2030 | £12,000 Per Annum |
Current Rent Reserved Combined £26,500 Per Annum
Open to View During Normal Business Hours
Brochures
1, 1A & 1B Hitchin Street, Baldock, Hertfordshire, SG7 6AL
NEAREST STATIONS
Distances are straight line measurements from the centre of the postcode- Baldock Station0.2 miles
- Letchworth Station1.8 miles
- Hitchin Station4.1 miles
Notes
Disclaimer - Property reference 322350. The information displayed about this property comprises a property advertisement. Rightmove.co.uk makes no warranty as to the accuracy or completeness of the advertisement or any linked or associated information, and Rightmove has no control over the content. This property advertisement does not constitute property particulars. The information is provided and maintained by Auction House London, London. Please contact the selling agent or developer directly to obtain any information which may be available under the terms of The Energy Performance of Buildings (Certificates and Inspections) (England and Wales) Regulations 2007 or the Home Report if in relation to a residential property in Scotland.
Auction Fees: The purchase of this property may include associated fees not listed here, as it is to be sold via auction. To find out more about the fees associated with this property please call Auction House London, London on 020 7870 6217.
*Guide Price: An indication of a seller's minimum expectation at auction and given as a Guide Price or a range of Guide Prices. This is not necessarily the figure a property will sell for and is subject to change prior to the auction.
Reserve Price: Each auction property will be subject to a Reserve Price below which the property cannot be sold at auction. Normally the Reserve Price will be set within the range of Guide Prices or no more than 10% above a single Guide Price.
Map data ©OpenStreetMap contributors.





