4 bedroom penthouse for sale
London Road, Liverpool, Merseyside, L3

- PROPERTY TYPE
Penthouse
- BEDROOMS
4
- BATHROOMS
2
- SIZE
Ask agent
Key features
- Four Bedroom Penthouse
- No Onward Chain
- Modern Method of Auction Sale
- Reservation Fee + Sale Agreed Price
Description
This impressively spacious modern and extended, penthouse apartment provides easy access to Liverpool city centre, universities and hospitals making it ideal for those looking to Invest or live in Liverpool.
The property is also with in a short walk of excellent bars, restaurants, shops and supermarket making ideal for those that like things on there doorstep.
The home comprises; entrance hall, open-plan living/dining and kitchen area with four double bedrooms, a family bathroom, walk through shower room and en-suite to the main bedroom.
Externally the property offers a generous balcony and terrace that overlooks Liverpool's famous roof tops. Overall a must view apartment that could be a great home or look good in any investment portfolio.
Council Tax band - B
EPC Grade - E
Should you view, offer or bid on the property, your information will be shared with the Auctioneer, I AmSold.
This method of auction requires both parties to complete the transaction within 56 days of the draft contract for sale being received by the buyers solicitor. This additional time allows buyers to proceed with mortgage finance.
The buyer is required to sign a reservation agreement and make payment of a non-refundable Reservation Fee. This being 4.5% of the purchase price including VAT, subject to a minimum of £6,600.00 including VAT. The Reservation Fee is paid in addition to purchase price and will be considered as part of the chargeable consideration for the property in the calculation for stamp duty liability.
Buyers will be required to go through an identification verification process with I AmSold and provide proof of how the purchase would be funded.
This property has a Buyer Information Pack which is a collection of documents in relation to the property. The documents may not tell you everything you need to know about the property, so you are required to complete your own due diligence before bidding. A sample copy of the Reservation Agreement and terms and conditions are also contained within this pack.
The buyer will also make payment of £300.00 including VAT towards the preparation cost of the pack, where it has been provided by I Am Sold.
The property is subject to an undisclosed Reserve Price with both the Reserve Price and Starting Bid being subject to change.
Referral Arrangements
The Partner Agent and Auctioneer may recommend the services of third parties to you. Whilst these services are recommended as it is believed they will be of benefit; you are under no obligation to use any of these services and you should always consider your options before services are accepted.
Where services are accepted the Auctioneer or Partner Agent may receive payment for the recommendation and you will be informed of any referral arrangement and payment prior to any services being taken by you.
IMPORTANT NOTE TO POTENTIAL PURCHASERS & TENANTS: We endeavour to make our particulars accurate and reliable, however, they do not constitute or form part of an offer or any contract and none is to be relied upon as statements of representation or fact. The services, systems and appliances listed in this specification have not been tested by us and no guarantee as to their operating ability or efficiency is given. All photographs and measurements have been taken as a guide only and are not precise. Floor plans where included are not to scale and accuracy is not guaranteed. If you require clarification or further information on any points, please contact us, especially if you are traveling some distance to view. POTENTIAL PURCHASERS: Fixtures and fittings other than those mentioned are to be agreed with the seller. POTENTIAL TENANTS: All properties are available for a minimum length of time, with the exception of short term accommodation. Please contact the branch for details. A security deposit of at least one month’s rent is required. Rent is to be paid one month in advance. It is the tenant’s responsibility to insure any personal possessions. Payment of all utilities including water rates or metered supply and Council Tax is the responsibility of the tenant in most cases.
LIV250340/2
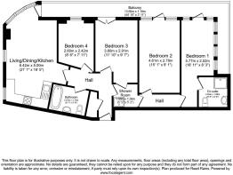
FOUR BEDROOM PENTHOUSE APARTMENT
EXTERNAL/COMMUNAL
Secure key code entrance to the building, stairs and lift to all floors.
FIFTH FLOOR APARTMENT
Hall
Entrance to the property, access to all four bedrooms, bathroom and living space.
Living/Dining/Kitchen
6.42m x 5m (21' 1" x 16' 5")
Open-plan living, dining and kitchen with fitted modern kitchen and access to balcony.
Bedroom 1
5.77m x 2.52m (18' 11" x 8' 3")
Main bedroom set in the extended part of the apartment, space for king size bed and glass façade.
En-suite
2.05m x 1.98m (6' 9" x 6' 6")
Three piece bathroom suite with shower cubicle, toilet and wash basin.
Bedroom 2
4.61m x 2.78m (15' 1" x 9' 1")
Secondary double bedroom, with space for king sized bed, wardrobe and drawers.
Bedroom 3
3.6m x 2.91m (11' 10" x 9' 7")
Third double bedroom, originally the main bedroom in the apartment.
Bedroom 4
2.6m x 2.42m (8' 6" x 7' 11")
Smaller double bedroom with window overlooking balcony.
Bathroom
2.47m x 1.75m (8' 1" x 5' 9")
Main family bathroom with bath and shower facilities, toilet and wash basin.
Shower Room
1.66m x 1.56m (5' 5" x 5' 1")
Unusual room with additional shower cubicle.
General Info
Lease: 125 years (less 10 days) from 17 February 2004 (103 years remaining approx) Service charges: £4320 Ground rent: £150 per annum
Brochures
Web DetailsFull Brochure PDF- COUNCIL TAXA payment made to your local authority in order to pay for local services like schools, libraries, and refuse collection. The amount you pay depends on the value of the property.Read more about council Tax in our glossary page.
- Band: B
- PARKINGDetails of how and where vehicles can be parked, and any associated costs.Read more about parking in our glossary page.
- Ask agent
- GARDENA property has access to an outdoor space, which could be private or shared.
- Ask agent
- ACCESSIBILITYHow a property has been adapted to meet the needs of vulnerable or disabled individuals.Read more about accessibility in our glossary page.
- Ask agent
London Road, Liverpool, Merseyside, L3
Add an important place to see how long it'd take to get there from our property listings.
__mins driving to your place
Get an instant, personalised result:
- Show sellers you’re serious
- Secure viewings faster with agents
- No impact on your credit score
Your mortgage
Notes
Staying secure when looking for property
Ensure you're up to date with our latest advice on how to avoid fraud or scams when looking for property online.
Visit our security centre to find out moreDisclaimer - Property reference LIV250340. The information displayed about this property comprises a property advertisement. Rightmove.co.uk makes no warranty as to the accuracy or completeness of the advertisement or any linked or associated information, and Rightmove has no control over the content. This property advertisement does not constitute property particulars. The information is provided and maintained by Reeds Rains, Liverpool. Please contact the selling agent or developer directly to obtain any information which may be available under the terms of The Energy Performance of Buildings (Certificates and Inspections) (England and Wales) Regulations 2007 or the Home Report if in relation to a residential property in Scotland.
Auction Fees: The purchase of this property may include associated fees not listed here, as it is to be sold via auction. To find out more about the fees associated with this property please call Reeds Rains, Liverpool on 0151 453 6482.
*Guide Price: An indication of a seller's minimum expectation at auction and given as a Guide Price or a range of Guide Prices. This is not necessarily the figure a property will sell for and is subject to change prior to the auction.
Reserve Price: Each auction property will be subject to a Reserve Price below which the property cannot be sold at auction. Normally the Reserve Price will be set within the range of Guide Prices or no more than 10% above a single Guide Price.
*This is the average speed from the provider with the fastest broadband package available at this postcode. The average speed displayed is based on the download speeds of at least 50% of customers at peak time (8pm to 10pm). Fibre/cable services at the postcode are subject to availability and may differ between properties within a postcode. Speeds can be affected by a range of technical and environmental factors. The speed at the property may be lower than that listed above. You can check the estimated speed and confirm availability to a property prior to purchasing on the broadband provider's website. Providers may increase charges. The information is provided and maintained by Decision Technologies Limited. **This is indicative only and based on a 2-person household with multiple devices and simultaneous usage. Broadband performance is affected by multiple factors including number of occupants and devices, simultaneous usage, router range etc. For more information speak to your broadband provider.
Map data ©OpenStreetMap contributors.




