
Bowling Alley, Crondall, Farnham, GU10

- PROPERTY TYPE
Detached
- BEDROOMS
4
- BATHROOMS
3
- SIZE
1,815 sq ft
169 sq m
- TENUREDescribes how you own a property. There are different types of tenure - freehold, leasehold, and commonhold.Read more about tenure in our glossary page.
Freehold
Key features
- +++ SHOW HOUSE OPENS 17th of January 2026 +++
- Thoughtfully Designed Open Plan Kitchen/Dining and Family Areas
- Bespoke Shaker Kitchen Fitted with Bosch Appliances
- Bespoke Wardrobes to Principal Bedrooms
- Zoned Underfloor Heating Throughout
- Electric Vehicle Charging Point
- Air Source Heat Pumps
- Photovoltaic Solar Panels Private Drainage
- 10 Year Structural Warranty
- Close to Crondall village.
Description
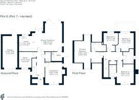
The ground floor offers an ideally shaped dining/day room at the heart of the home, complemented by a separate living room, study, and a well-appointed kitchen. A useful utility room with direct access to the outside makes everyday life easier ? particularly appealing for gardeners, dog owners or busy families.
Upstairs, the principal bedroom with en-suite sits above the garage, providing a peaceful retreat. Three further bedrooms are served by the family bathroom, completing the well-balanced layout.
Blending style, space and convenience, this home is perfectly suited to modern living.
Situation
Crondall is a village that lies in the beautiful countryside, only four miles from the market town of Farnham or the historic village of Odiham. The village itself has all you need for village life with its local shops, pubs, and beautiful walks. With Farnham, Hook, and Winchfield stations being less than a 15 minute drive, there are great train links which enable a commute to Central London possible in less than an hour.
The homes offer the very best in peaceful living, balanced with a host of renowned pubs, leisure facilities, schools, and shops within easy reach.
Please note the internal pictures are of the show house Plot No 5
Property Ref Number:
HAM-0071Additional Information
Estate charge TBC
Brochures
Brochure- COUNCIL TAXA payment made to your local authority in order to pay for local services like schools, libraries, and refuse collection. The amount you pay depends on the value of the property.Read more about council Tax in our glossary page.
- Band: TBC
- PARKINGDetails of how and where vehicles can be parked, and any associated costs.Read more about parking in our glossary page.
- Garage
- GARDENA property has access to an outdoor space, which could be private or shared.
- Patio,Private garden
- ACCESSIBILITYHow a property has been adapted to meet the needs of vulnerable or disabled individuals.Read more about accessibility in our glossary page.
- Ask agent
Bowling Alley, Crondall, Farnham, GU10
Add an important place to see how long it'd take to get there from our property listings.
__mins driving to your place
Get an instant, personalised result:
- Show sellers you’re serious
- Secure viewings faster with agents
- No impact on your credit score
Affordability
Notes
Staying secure when looking for property
Ensure you're up to date with our latest advice on how to avoid fraud or scams when looking for property online.
Visit our security centre to find out moreDisclaimer - Property reference a1nQ500000GLRjzIAH. The information displayed about this property comprises a property advertisement. Rightmove.co.uk makes no warranty as to the accuracy or completeness of the advertisement or any linked or associated information, and Rightmove has no control over the content. This property advertisement does not constitute property particulars. The information is provided and maintained by Hamptons, Farnham. Please contact the selling agent or developer directly to obtain any information which may be available under the terms of The Energy Performance of Buildings (Certificates and Inspections) (England and Wales) Regulations 2007 or the Home Report if in relation to a residential property in Scotland.
*This is the average speed from the provider with the fastest broadband package available at this postcode. The average speed displayed is based on the download speeds of at least 50% of customers at peak time (8pm to 10pm). Fibre/cable services at the postcode are subject to availability and may differ between properties within a postcode. Speeds can be affected by a range of technical and environmental factors. The speed at the property may be lower than that listed above. You can check the estimated speed and confirm availability to a property prior to purchasing on the broadband provider's website. Providers may increase charges. The information is provided and maintained by Decision Technologies Limited. **This is indicative only and based on a 2-person household with multiple devices and simultaneous usage. Broadband performance is affected by multiple factors including number of occupants and devices, simultaneous usage, router range etc. For more information speak to your broadband provider.
Map data ©OpenStreetMap contributors.








