4 bedroom town house for sale
Plot 10, Market Place, Hebden Bridge

- PROPERTY TYPE
Town House
- BEDROOMS
4
- BATHROOMS
2
- SIZE
1,387 sq ft
129 sq m
- TENUREDescribes how you own a property. There are different types of tenure - freehold, leasehold, and commonhold.Read more about tenure in our glossary page.
Freehold
Key features
- ICW 10 Year Warranty
- Vibrant location popular with tourists
- Central location close to train station and town centre
- Integral garage
- Formal living room
- Open plan kitchen diner
- House bathroom
- En suite to principal bedroom
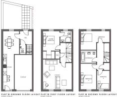
- 4 Bedroom townhouse
Description
*LAST 4 PLOTS REMAINING*
Set in the beautiful town of Hebden Bridge, Market Place is perfectly located to commute easily into Leeds and Manchester. With a selection of 3 & 4 bedroom new homes, there’s something for everyone to choose from, and young families will be delighted with the selection of schools on offer close by. Set within the heart of this vibrant town centre, popular with tourists, this brand new scheme is also close to Hebden Bridge train station.
This is a four bedroom END TOWNHOUSE property with an open plan kitchen diner on the ground floor and additional reception room on the first floor. This plot provides 4 bedrooms in total along with a house bathroom and en suite to the principal bedroom.
These homes feature hand Painted Kitchen from Exceptional British Kitchen Manufacturer Omega Based in Yorkshire. Kitchens to include shaker style cabinets, option to upgrade from laminate to quartz worktop, SMEG integrated appliances to include a washing machine, dishwasher, fridge freezer, oven, hob and cooker.
Tiled bathrooms to include ROCA porcelain and Porcelanosa tiles.
Additional specification finishes include Vado Brassware and Column radiators.
Externally this plot enjoys the largest garden and patio of the entire development to the rear and parking is provided via 1 x integral parking space.
Further specification details available on request.
FUNKIEST TOWN IN BRITAIN...
Hebden Bridge was recently termed the ‘funkiest town in Britain’ by an article in a magazine. This is an accurate description; Hebden Bridge enjoys and fosters the creativity and freedom of its community. There is a myriad of genres of cafes and restaurants. There is a good number of specialist shops; if ever you want to purchase a gift then Hebden Bridge is the place for you. There’s a theatre, a cinema and a live-music nightclub as well as good pubs and bars.
Wander the creative, bohemian streets of Hebden Bridge, and you can feel the influence of the writers and artists who flocked to the town around the 70s and 80s. From artisan shops and inspiring galleries to organic pavement cafés and charming picture houses, the town is justifiably proud of its artistic identity. Just a few minutes away you will find pretty wooded valleys and picturesque heather moorland.
Ref: Plot 10
Brochures
Hebden Bridge W Yorks v11.pdfBrochure 2Brochure- COUNCIL TAXA payment made to your local authority in order to pay for local services like schools, libraries, and refuse collection. The amount you pay depends on the value of the property.Read more about council Tax in our glossary page.
- Band: TBC
- PARKINGDetails of how and where vehicles can be parked, and any associated costs.Read more about parking in our glossary page.
- Yes
- GARDENA property has access to an outdoor space, which could be private or shared.
- Yes
- ACCESSIBILITYHow a property has been adapted to meet the needs of vulnerable or disabled individuals.Read more about accessibility in our glossary page.
- Ask agent
Plot 10, Market Place, Hebden Bridge
Add an important place to see how long it'd take to get there from our property listings.
__mins driving to your place
Get an instant, personalised result:
- Show sellers you’re serious
- Secure viewings faster with agents
- No impact on your credit score
Your mortgage
Notes
Staying secure when looking for property
Ensure you're up to date with our latest advice on how to avoid fraud or scams when looking for property online.
Visit our security centre to find out moreDisclaimer - Property reference 34368779. The information displayed about this property comprises a property advertisement. Rightmove.co.uk makes no warranty as to the accuracy or completeness of the advertisement or any linked or associated information, and Rightmove has no control over the content. This property advertisement does not constitute property particulars. The information is provided and maintained by Land & New Homes, Alwoodley. Please contact the selling agent or developer directly to obtain any information which may be available under the terms of The Energy Performance of Buildings (Certificates and Inspections) (England and Wales) Regulations 2007 or the Home Report if in relation to a residential property in Scotland.
*This is the average speed from the provider with the fastest broadband package available at this postcode. The average speed displayed is based on the download speeds of at least 50% of customers at peak time (8pm to 10pm). Fibre/cable services at the postcode are subject to availability and may differ between properties within a postcode. Speeds can be affected by a range of technical and environmental factors. The speed at the property may be lower than that listed above. You can check the estimated speed and confirm availability to a property prior to purchasing on the broadband provider's website. Providers may increase charges. The information is provided and maintained by Decision Technologies Limited. **This is indicative only and based on a 2-person household with multiple devices and simultaneous usage. Broadband performance is affected by multiple factors including number of occupants and devices, simultaneous usage, router range etc. For more information speak to your broadband provider.
Map data ©OpenStreetMap contributors.




