
Bridge Street, Middleton-In-Teesdale, Barnard Castle, Co Durham, DL12

- PROPERTY TYPE
Terraced
- BEDROOMS
6
- BATHROOMS
4
- SIZE
Ask agent
- TENUREDescribes how you own a property. There are different types of tenure - freehold, leasehold, and commonhold.Read more about tenure in our glossary page.
Freehold
Key features
- For sale with no onward chain
- Six bedrooms, two with ensuite shower rooms
- Pleasantly presented throughout
- Situated in the heart of a popular village
Description
An elegant six-bedroom terraced residence arranged over three floors, positioned in the heart of the highly regarded village of Middleton-in-Teesdale. With walks quite literally on your doorstep, this is an ideal setting for those seeking the very best of country living.
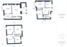
Stepping inside, the property immediately impresses with a welcoming entrance hall featuring an attractive turning staircase. The beautifully presented living room showcases period character, with a striking stone fireplace, traditional panelled walls and a large bay window allowing natural light to flood the space.
To the rear, the kitchen/dining room forms the heart of the home, centred around an Inglenook-style fireplace with a wood-burning stove, creating a warm and inviting atmosphere. The kitchen is compact yet thoughtfully designed and well equipped, while the dining area benefits from a practical understairs WC, also housing the central heating boiler. An external door provides access to the rear yard.
The first floor offers a superb principal bedroom with bay window and open views towards Kirk Carrion in the distance, complemented by a private en-suite shower room. A second double bedroom also enjoys the convenience of an en-suite, while a third bedroom overlooks the rear of the property. Completing this level is a generous family bathroom fitted with a bath and overhead shower, wash basin and WC.
The second floor provides three further well-proportioned double bedrooms, alongside an exceptionally spacious bathroom featuring a bath with shower over, wash basin and WC - ideal for larger families or visiting guests.
Externally, the property benefits from a forecourt frontage, with a gated archway providing access through to the rear. The enclosed rear yard accommodates the oil tank and offers a private outdoor space.
Offering substantial accommodation, period charm and a desirable village location, this impressive home is perfectly suited to families or those seeking versatile living space in a picturesque Teesdale setting.
Agent Note
Please note that a neighbouring property has a right of access through the gated passageway leading to their rear yard.
Material Information
Local Authority – Durham County Council Council Tax Band – C Tenure – Freehold Property Type – Terraced Property Construction – Standard Electricity supply – Mains Water Supply – Mains Sewerage – Mains Heating – Oil central heating Estimated Mobile phone coverage – EE: OK, Three: poor, 02: OK, Vodafone: poor Estimated Broadband Download speeds – Basic: 18mb, Superfast: 66mb, Ultrafast: 8500mb Rights & Easements – To be confirmed during the conveyancing process Flood risk – Very low Coastal Erosion – Not applicable Protected Trees – No Conservation area – Yes Planning Permission – No planning applications Accessibility – No accessibility features Mining Area – Situated in a former mining area Selective License Area – No
Anti-Money Laundering
In accordance with the Anti-Money Laundering Regulations, we are required to verify the identity of both the purchaser and seller of all properties. Seller identities must be checked prior to marketing and on acceptance of an offer, we will commence these checks for the buyer. There is a £30 (inc. VAT) fee, per individual, for these checks.
Free Valuation
If you're thinking about selling your property, take advantage of Ryan James Estate Agents' complimentary, no-obligation market appraisal service. Our expert team are dedicated to providing you with tailored advice to maximise your property's potential. Reach out to our Bishop Auckland team today to schedule your appointment!
Mortgage Advice
Ryan James Estate Agents are keen to stress the importance of seeking independent mortgage advice. If you need mortgage advice our team will be pleased to make you an appointment with an independent mortgage advisor. Remember your home is at risk if you do not keep up repayments on a mortgage or other loans secured on it.
Freehold
Ryan James Estate Agents believes the property is freehold but we always recommend verifying this with your solicitor should you decide to purchase the property. We endeavour to make our property particulars accurate and reliable, however, they do not constitute or form part of an offer or any contract and none is to be relied upon as statements of representation or fact. 1. Fixtures and fittings other than those included in the above details are to be agreed with the seller through separate negotiation. 2. Ryan James Estate Agents has not tested any services, appliances or heating and no warranty is given or implied as to their condition. 3. All measurements are approximate and intended as a guide only. All our measurements are carried out using a calibrated camera. 4. The floorplans that are provided are purely to give an idea of layout and as such should not be relied on for anything other than this. It is highly likely the plans do not show cupboards, indents, (truncated)
- COUNCIL TAXA payment made to your local authority in order to pay for local services like schools, libraries, and refuse collection. The amount you pay depends on the value of the property.Read more about council Tax in our glossary page.
- Band: C
- PARKINGDetails of how and where vehicles can be parked, and any associated costs.Read more about parking in our glossary page.
- Ask agent
- GARDENA property has access to an outdoor space, which could be private or shared.
- Yes
- ACCESSIBILITYHow a property has been adapted to meet the needs of vulnerable or disabled individuals.Read more about accessibility in our glossary page.
- Ask agent
Bridge Street, Middleton-In-Teesdale, Barnard Castle, Co Durham, DL12
Add an important place to see how long it'd take to get there from our property listings.
__mins driving to your place
Get an instant, personalised result:
- Show sellers you’re serious
- Secure viewings faster with agents
- No impact on your credit score

Affordability
Notes
Staying secure when looking for property
Ensure you're up to date with our latest advice on how to avoid fraud or scams when looking for property online.
Visit our security centre to find out moreDisclaimer - Property reference BPA250588. The information displayed about this property comprises a property advertisement. Rightmove.co.uk makes no warranty as to the accuracy or completeness of the advertisement or any linked or associated information, and Rightmove has no control over the content. This property advertisement does not constitute property particulars. The information is provided and maintained by Ryan James Estate Agents, Bishop Auckland. Please contact the selling agent or developer directly to obtain any information which may be available under the terms of The Energy Performance of Buildings (Certificates and Inspections) (England and Wales) Regulations 2007 or the Home Report if in relation to a residential property in Scotland.
*This is the average speed from the provider with the fastest broadband package available at this postcode. The average speed displayed is based on the download speeds of at least 50% of customers at peak time (8pm to 10pm). Fibre/cable services at the postcode are subject to availability and may differ between properties within a postcode. Speeds can be affected by a range of technical and environmental factors. The speed at the property may be lower than that listed above. You can check the estimated speed and confirm availability to a property prior to purchasing on the broadband provider's website. Providers may increase charges. The information is provided and maintained by Decision Technologies Limited. **This is indicative only and based on a 2-person household with multiple devices and simultaneous usage. Broadband performance is affected by multiple factors including number of occupants and devices, simultaneous usage, router range etc. For more information speak to your broadband provider.
Map data ©OpenStreetMap contributors.






