
St. Anns Hill Road, Chertsey, Surrey, KT16

Letting details
- Let available date:
- 30/03/2026
- Deposit:
- £30,461A deposit provides security for a landlord against damage, or unpaid rent by a tenant.Read more about deposit in our glossary page.
- Min. Tenancy:
- Ask agent How long the landlord offers to let the property for.Read more about tenancy length in our glossary page.
- Let type:
- Long term
- Furnish type:
- Part furnished
- Council Tax:
- Ask agent
- PROPERTY TYPE
Detached
- BEDROOMS
6
- BATHROOMS
5
- SIZE
11,069 sq ft
1,028 sq m
Key features
- 6 bedrooms
- 11 reception rooms
- 5 bathrooms
- 8.00 acres
- Detached
- Garden
Description
A rare opportunity to acquire an architectural piece of history in impeccable condition, set in award winning grounds with a magnificent modernist mansion designed in 1936 by the architect Sir Raymond McGrath.
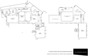
Accommodation comprises 5 reception rooms, 6 bedrooms, 5 bath/shower rooms. Separate coach house used as a creative work space, featuring a world class music studio, games room, offices, guest flat and triple garaging. Approximately 11,000 sq ft of living space, parking for 10 cars and 8 acres of grounds.
The main modernist “Round House” extends to approximately 6,500 sq ft with beautiful open plan spaces, a grand staircase and carefully planned rooms to create light and aspects that impress.
Set privately yet only 20 meters from the main house is the converted 19th century “Coach House” which provides 4,600 sq ft of sensitively created contemporary accommodation and a state of the art world class recording studio where many famous musical albums have been recorded. Both have been comprehensively and immaculately refurbished by the current owners, and only on a full inspection can the architecture, light, flow and space be appreciated. The property has been featured in numerous movies and TV series and is sought after by top photographers.
This short term lettings price is based upon a 3 month fixed term rental and is subject to negotiation based upon the terms put forward and is subject to contract.
Set in a semi-rural location 12 miles south west of central London, close to Windsor and the Great Park, Guards Polo, and Virginia Water with the world famous Wentworth Golf Club.
St Ann's is in Runnymede Borough, home of the site of the signing of the Magna Carta by King John in 1215. It has excellent transport links with the M25 easily accessible, leading to the M3 and M4.
Heathrow Terminal 5 can be reached in 10 minutes with access to Heathrow Express which takes a mere 20 minutes to Central London. The smaller Fairoaks Airport is even closer for private aircraft. Nearby train stations provide direct services to London Waterloo.
The nearby towns of Chertsey, Virginia Water, Ascot and Windsor offer a broad range of shopping and dining opportunities and the area is particularly renowned for its private schools (Eton College, Salesian, Sir William Perkins, Papplewick, Sunningdale and St John’s Beaumont).
(All distances and times are approximate.)
Brochures
More Details- COUNCIL TAXA payment made to your local authority in order to pay for local services like schools, libraries, and refuse collection. The amount you pay depends on the value of the property.Read more about council Tax in our glossary page.
- Band: H
- PARKINGDetails of how and where vehicles can be parked, and any associated costs.Read more about parking in our glossary page.
- Yes
- GARDENA property has access to an outdoor space, which could be private or shared.
- Yes
- ACCESSIBILITYHow a property has been adapted to meet the needs of vulnerable or disabled individuals.Read more about accessibility in our glossary page.
- Ask agent
Energy performance certificate - ask agent
St. Anns Hill Road, Chertsey, Surrey, KT16
Add an important place to see how long it'd take to get there from our property listings.
__mins driving to your place



Notes
Staying secure when looking for property
Ensure you're up to date with our latest advice on how to avoid fraud or scams when looking for property online.
Visit our security centre to find out moreDisclaimer - Property reference ASQ012523785. The information displayed about this property comprises a property advertisement. Rightmove.co.uk makes no warranty as to the accuracy or completeness of the advertisement or any linked or associated information, and Rightmove has no control over the content. This property advertisement does not constitute property particulars. The information is provided and maintained by Knight Frank - Lettings, Ascot & Virginia Water. Please contact the selling agent or developer directly to obtain any information which may be available under the terms of The Energy Performance of Buildings (Certificates and Inspections) (England and Wales) Regulations 2007 or the Home Report if in relation to a residential property in Scotland.
*This is the average speed from the provider with the fastest broadband package available at this postcode. The average speed displayed is based on the download speeds of at least 50% of customers at peak time (8pm to 10pm). Fibre/cable services at the postcode are subject to availability and may differ between properties within a postcode. Speeds can be affected by a range of technical and environmental factors. The speed at the property may be lower than that listed above. You can check the estimated speed and confirm availability to a property prior to purchasing on the broadband provider's website. Providers may increase charges. The information is provided and maintained by Decision Technologies Limited. **This is indicative only and based on a 2-person household with multiple devices and simultaneous usage. Broadband performance is affected by multiple factors including number of occupants and devices, simultaneous usage, router range etc. For more information speak to your broadband provider.
Map data ©OpenStreetMap contributors.






