3 bedroom end of terrace house for sale
Worsley Road, Swinton, Manchester, M27 0YF

- PROPERTY TYPE
End of Terrace
- BEDROOMS
3
- BATHROOMS
2
- SIZE
1,916 sq ft
178 sq m
- TENUREDescribes how you own a property. There are different types of tenure - freehold, leasehold, and commonhold.Read more about tenure in our glossary page.
Ask agent
Key features
- Guide Price £320,000-£330,000
- Charming Period Property
- No Chain
- Three generously sized bedrooms
- Versatile Loft room
- Nestled Perfectly Between The Highly Desirable Area's Of Worsley And Monton
- Full of Original Character
- Freehold
- Secure Garage
Description
Reference: CF1358 (quote for viewings)
Perfectly positioned for both convenience and lifestyle, this beautifully presented period property is ideally located just a short distance from the much-loved villages of Worsley and Monton. Commuters will appreciate the excellent transport links via the East Lancashire Road and M60 motorway, while those staying closer to home can enjoy an array of boutique shops, popular restaurants, highly regarded schools, scenic parks, and peaceful canal-side walks — all close at hand.
Stepping inside, you are welcomed by a charming entrance hall featuring tiled flooring, immediately setting the tone for the character and warmth found throughout the home. The property boasts two spacious reception rooms, offering flexible living accommodation perfectly suited to both entertaining and everyday family life. Original features and elegant period detailing are evident throughout, enhancing the timeless appeal of these inviting spaces.
To the rear, the well-proportioned kitchen provides ample space for cooking and dining, making it a practical and sociable hub of the home. Upstairs, there are three generous bedrooms, each offering a comfortable retreat. The principal bedroom benefits from the added luxury of a private en-suite, while a modern family bathroom serves the remaining bedrooms.
The loft room offers a versatile additional space, ideal for a home office, hobby room, or occasional room, allowing buyers to adapt the property to suit their individual lifestyle needs.
Externally, the property continues to impress with a low-maintenance garden, perfect for relaxing or enjoying a morning coffee, along with a secure garage providing valuable parking and storage.
Combining classic period charm with modern practicality and an enviable location, this delightful home represents a fantastic opportunity for buyers seeking character, space, and lifestyle convenience. Early viewing is highly recommended to fully appreciate everything this property has to offer.
EPC Rating: E
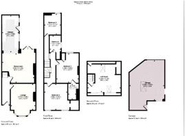
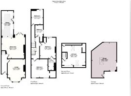
Room Measurements
Kitchen: 2.51m x 5.56m
Lounge 1: 4.84m x 4.29m
Lounge 2: 3.73m x 3.93m
Bedroom 1: 2.51m x 3.13m
Bathroom: 1.71m x 2.50m
Bedroom 2: 3.39m x 4.55m
Bedroom 3: 3.49m x 3.94m
En Suite: 1.18m x 2.42m
Loft Room: 5.28m x 6.02m
- COUNCIL TAXA payment made to your local authority in order to pay for local services like schools, libraries, and refuse collection. The amount you pay depends on the value of the property.Read more about council Tax in our glossary page.
- Ask agent
- PARKINGDetails of how and where vehicles can be parked, and any associated costs.Read more about parking in our glossary page.
- Garage
- GARDENA property has access to an outdoor space, which could be private or shared.
- Yes
- ACCESSIBILITYHow a property has been adapted to meet the needs of vulnerable or disabled individuals.Read more about accessibility in our glossary page.
- Ask agent
Worsley Road, Swinton, Manchester, M27 0YF
Add an important place to see how long it'd take to get there from our property listings.
__mins driving to your place
Get an instant, personalised result:
- Show sellers you’re serious
- Secure viewings faster with agents
- No impact on your credit score
Your mortgage
Notes
Staying secure when looking for property
Ensure you're up to date with our latest advice on how to avoid fraud or scams when looking for property online.
Visit our security centre to find out moreDisclaimer - Property reference S1527004. The information displayed about this property comprises a property advertisement. Rightmove.co.uk makes no warranty as to the accuracy or completeness of the advertisement or any linked or associated information, and Rightmove has no control over the content. This property advertisement does not constitute property particulars. The information is provided and maintained by eXp UK, Yorkshire and The Humber. Please contact the selling agent or developer directly to obtain any information which may be available under the terms of The Energy Performance of Buildings (Certificates and Inspections) (England and Wales) Regulations 2007 or the Home Report if in relation to a residential property in Scotland.
*This is the average speed from the provider with the fastest broadband package available at this postcode. The average speed displayed is based on the download speeds of at least 50% of customers at peak time (8pm to 10pm). Fibre/cable services at the postcode are subject to availability and may differ between properties within a postcode. Speeds can be affected by a range of technical and environmental factors. The speed at the property may be lower than that listed above. You can check the estimated speed and confirm availability to a property prior to purchasing on the broadband provider's website. Providers may increase charges. The information is provided and maintained by Decision Technologies Limited. **This is indicative only and based on a 2-person household with multiple devices and simultaneous usage. Broadband performance is affected by multiple factors including number of occupants and devices, simultaneous usage, router range etc. For more information speak to your broadband provider.
Map data ©OpenStreetMap contributors.




