
2 bedroom flat for sale
Hare Lane, Claygate, KT10

- PROPERTY TYPE
Flat
- BEDROOMS
2
- BATHROOMS
1
- SIZE
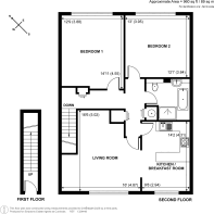
960 sq ft
89 sq m
Key features
- Two double bedrooms with views on Claygate Village
- A large, bright lounge with field views
- Contemporary eat-in kitchen/breakfast room
- Fully furnished including king size beds, beddings and kitchenware
- Refurbished throughout
- Family bathroom with separate bath and walk in shower
- Private allocated parking & Garage to rent by separate negotiation
- Loft storage space
- Farrow & Ball paint throughout
- Prime location just moments from Claygate Station
Description
Situated just moments from Claygate Station, this immaculate two-bedroom apartment offers the perfect blend of style, comfort, and convenience. Newly refurbished to a high standard, the property is fully fitted and move-in ready, complete with quality furniture, stylish fixtures and fittings, and all essential beddings.
The accommodation features a spacious and bright lounge with delightful open views over fields to the rear, creating a serene backdrop rarely found in such a central location. The modern eat-in kitchen/breakfast room is well-appointed with brand new Bosch integrated appliances and ample space for dining and entertaining.
Both excellent size double bedrooms are well-proportioned, offering generous storage space and comfortable furnishings. A large loft space provides additional storage or potential for further use, subject to permissions.
The bright bathroom provides a standalone bath and separate walk-in shower, WC & wash basin.
The property also benefits from a private parking space, ample storage, excellent security features, and a peaceful residential setting, all while being just a short stroll from the shops, cafes, and transport links of Claygate village.
Brochures
Particulars- COUNCIL TAXA payment made to your local authority in order to pay for local services like schools, libraries, and refuse collection. The amount you pay depends on the value of the property.Read more about council Tax in our glossary page.
- Band: C
- PARKINGDetails of how and where vehicles can be parked, and any associated costs.Read more about parking in our glossary page.
- Yes
- GARDENA property has access to an outdoor space, which could be private or shared.
- Ask agent
- ACCESSIBILITYHow a property has been adapted to meet the needs of vulnerable or disabled individuals.Read more about accessibility in our glossary page.
- Ask agent
Hare Lane, Claygate, KT10
Add an important place to see how long it'd take to get there from our property listings.
__mins driving to your place
Get an instant, personalised result:
- Show sellers you’re serious
- Secure viewings faster with agents
- No impact on your credit score


Your mortgage
Notes
Staying secure when looking for property
Ensure you're up to date with our latest advice on how to avoid fraud or scams when looking for property online.
Visit our security centre to find out moreDisclaimer - Property reference CER250372. The information displayed about this property comprises a property advertisement. Rightmove.co.uk makes no warranty as to the accuracy or completeness of the advertisement or any linked or associated information, and Rightmove has no control over the content. This property advertisement does not constitute property particulars. The information is provided and maintained by Curchods Estate Agents, Esher. Please contact the selling agent or developer directly to obtain any information which may be available under the terms of The Energy Performance of Buildings (Certificates and Inspections) (England and Wales) Regulations 2007 or the Home Report if in relation to a residential property in Scotland.
*This is the average speed from the provider with the fastest broadband package available at this postcode. The average speed displayed is based on the download speeds of at least 50% of customers at peak time (8pm to 10pm). Fibre/cable services at the postcode are subject to availability and may differ between properties within a postcode. Speeds can be affected by a range of technical and environmental factors. The speed at the property may be lower than that listed above. You can check the estimated speed and confirm availability to a property prior to purchasing on the broadband provider's website. Providers may increase charges. The information is provided and maintained by Decision Technologies Limited. **This is indicative only and based on a 2-person household with multiple devices and simultaneous usage. Broadband performance is affected by multiple factors including number of occupants and devices, simultaneous usage, router range etc. For more information speak to your broadband provider.
Map data ©OpenStreetMap contributors.





