Granville Drive, Forest Hall, NE12

- PROPERTY TYPE
Semi-Detached
- BEDROOMS
2
- BATHROOMS
1
- SIZE
894 sq ft
83 sq m
- TENUREDescribes how you own a property. There are different types of tenure - freehold, leasehold, and commonhold.Read more about tenure in our glossary page.
Freehold
Key features
- Beautifully presented, two bedroom, semi-detached family home.
- Stylish modern kitchen and bathroom.
- Paved driveway offering private parking for multiple vehicles.
- Within walking distance to local Schools, amenities and transport links.
Description
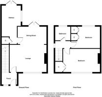
The accommodation briefly comprises an entrance porch leading into a spacious open plan living and dining area, featuring double doors opening onto the rear garden. This flows seamlessly through to a bright and airy modern fitted kitchen. To the first floor, there are two well proportioned bedrooms and a contemporary family bathroom.
Externally, the property benefits from a private, low maintenance driveway to the front, providing off-street parking for multiple vehicles. To the rear is a beautifully maintained garden, ideal for outdoor entertaining and family use.
Forest Hall is a well-established suburb named after the Victorian mansion that once stood in the area. This leafy neighbourhood offers a mix of properties, local shops, cafés such as Sands of Tyne Coffee Shop & Bar, and supermarkets, complemented by nearby green spaces. Benton Metro Station and road links via the A19 and A1 provide straightforward commuting. Families are well served by schools including Forest Hall Primary and Ivy Road Primary, alongside nearby secondary schools. With its combination of character, amenities, and green surroundings, Forest Hall remains a highly desirable area for residents of all ages.
Brochures
Granville Drive, Forest Hall, NE12Brochure- COUNCIL TAXA payment made to your local authority in order to pay for local services like schools, libraries, and refuse collection. The amount you pay depends on the value of the property.Read more about council Tax in our glossary page.
- Band: A
- PARKINGDetails of how and where vehicles can be parked, and any associated costs.Read more about parking in our glossary page.
- Yes
- GARDENA property has access to an outdoor space, which could be private or shared.
- Yes
- ACCESSIBILITYHow a property has been adapted to meet the needs of vulnerable or disabled individuals.Read more about accessibility in our glossary page.
- Ask agent
Granville Drive, Forest Hall, NE12
Add an important place to see how long it'd take to get there from our property listings.
__mins driving to your place
Get an instant, personalised result:
- Show sellers you’re serious
- Secure viewings faster with agents
- No impact on your credit score
Your mortgage
Notes
Staying secure when looking for property
Ensure you're up to date with our latest advice on how to avoid fraud or scams when looking for property online.
Visit our security centre to find out moreDisclaimer - Property reference 34364315. The information displayed about this property comprises a property advertisement. Rightmove.co.uk makes no warranty as to the accuracy or completeness of the advertisement or any linked or associated information, and Rightmove has no control over the content. This property advertisement does not constitute property particulars. The information is provided and maintained by Alexander Hudson Estates, Newcastle. Please contact the selling agent or developer directly to obtain any information which may be available under the terms of The Energy Performance of Buildings (Certificates and Inspections) (England and Wales) Regulations 2007 or the Home Report if in relation to a residential property in Scotland.
*This is the average speed from the provider with the fastest broadband package available at this postcode. The average speed displayed is based on the download speeds of at least 50% of customers at peak time (8pm to 10pm). Fibre/cable services at the postcode are subject to availability and may differ between properties within a postcode. Speeds can be affected by a range of technical and environmental factors. The speed at the property may be lower than that listed above. You can check the estimated speed and confirm availability to a property prior to purchasing on the broadband provider's website. Providers may increase charges. The information is provided and maintained by Decision Technologies Limited. **This is indicative only and based on a 2-person household with multiple devices and simultaneous usage. Broadband performance is affected by multiple factors including number of occupants and devices, simultaneous usage, router range etc. For more information speak to your broadband provider.
Map data ©OpenStreetMap contributors.




