
Woolstone Road, London

- PROPERTY TYPE
Apartment
- BEDROOMS
2
- BATHROOMS
1
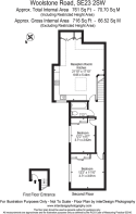
- SIZE
732 sq ft
68 sq m
Key features
- CHAIN-FREE
- GUIDE PRICE £375,000 to £400,000
- LEASEHOLD
- PERIOD CONVERSION
- TOP-FLOOR
- OPEN-PLAN LIVING ROOM/KITCHEN
- TWO DOUBLE BEDROOMS
- In Proximity of Shops, Restaurants and Amenities
- In Proximity of Schools and Transport Links
- In Proximity of Parks and Green Spaces
Description
CHAIN-FREE
GUIDE PRICE £375,000 to £400,000
New to the market is this well-proportioned two-bedroom apartment on this sought-after road in Forest Hill.
This period conversion offers approximately 760 sqft of living space and boasts plenty of character. Situated on the second floor and offering two double bedrooms, an open-plan reception room/kitchen and a family bathroom the property represents an ideal opportunity for a First-Time buyer or young family looking for a home.
Forest Hill offers a plethora of shops, restaurants, amenities, great transport links, schools, parks and green spaces.
EPC C
COUNCIL TAX BAND C
LEASEHOLD
CHAIN-FREE
GUIDE PRICE £375,000 to £400,000
New to the market is this well-proportioned two-bedroom apartment on this sought-after road in Forest Hill.
This period conversion offers approximately 760 sqft of living space and boasts plenty of character. Situated on the second floor and offering two double bedrooms, an open-plan reception room/kitchen and a family bathroom the property represents an ideal opportunity for a First-Time buyer or young family looking for a home.
Forest Hill offers a plethora of shops, restaurants, amenities, great transport links, schools, parks and green spaces.
The property has been a happy home for the owner for many years and here is what she had to say:
The property offers an open space living room with a glass brick wall for maximum light, generously sized two bedrooms and low noise levels as flat is facing backyard.
In terms of renovations the owner has stated she has done following:
The roof was renewed in Jan 2022, rendering, chimney and flashing works in June 2025, newly refurbished bathroom and new floor heating in bathroom, new flooring throughout, newly painted, boiler new in July 2023.
The property is located approximately 0.6 miles from the main hub of Forest Hill which offers many cafés, restaurants and recreational facilities.
Forest Hill station provides transport via the East London Line with links to many London Stations including London Bridge in Approximately 15 minutes.
The following schools are offered locally:
Kilmorie - Ofsted Rated Outstanding
Dalmain - Ofsted Rating Good
Eliot Bank - Ofsted Rating Good
Fairlawn - Ofsted Rating Good
The property is also less than a mile from the open space of Blythe Hill fields and its panoramic views over Canary Wharf, the City, Kent and Surrey.
For those residents who don’t know the area so well here is a summary of transport and recreation found locally.
Three train stations are located approximately 0.5 to 0.8 miles from the property and offer some of the following travel times to central London stations:
Charing Cross in approximately 22 minutes
St Pancras in approximately 32 minutes
Canary Wharf in approximately 32 minutes
Blackfriars in approximately 22 minutes
Bus routes are available along the road and for late night travellers, night bus N171 runs from Tottenham Court Road through Waterloo, Elephant & Castle . The 75 bus runs through Woolstone Road linking Lewisham and Croydon.
Local high streets include Honor Oak, Forest Hill and Catford, where you will find Sainsbury's, Tesco, your choice of boutique cafés, restaurants and trendy gastro pubs, as well as leisure centres, libraries and even the odd cocktail bar...
Catford town centre is approximately 0.8 miles away but if you ever fancied a greater selection of shops, eateries and social activity there are travel connections to the adjoining towns of Lewisham and Bromley both of which have shopping centres and high streets with many well-known brand name shops and restaurants.
Locally, there are numerous points of interest and some of the most popular include:
The Horniman Museum and Gardens with regular events such as a farmer’s market, live music and seasonal festivals to name a few.
Blythe Hill Fields is also located in the local area and offers recreational facilities such as the "Trim trails" which is an exercise trail. It also hosts local events where the residents of SE23 and SE6 get to know each other better and enjoy the community spirit.
Some of the eateries nearby we know well are the award-winning Babur Indian restaurant. There's also the popular Le Querce - run by a Sardinian family serving traditional dishes.
The Honor Oak pub (approximately 0.1 miles way) was refurbished a year or so ago and is now a popular gastropub with a beer garden out the back.
Additional conveniences include the NHS doctors' surgery on Woolstone Road with a handy chemist located opposite.
Please contact Hunters to arrange your viewing.
Hunters estate agents Forest Hill have sold several houses and flats on Woolstone Road in SE23 over the last 10 years. The stats from a sale include:
•Offers received for 100% of the guide price
•10 viewings
•2 offers received (20% of offers were received compared to viewings!)
•Offers received in 12 days of going to market
•Offer accepted on the 18th day of going to market
•Hunters also let and manage properties on Woolstone Road
Verified Material Information
Council Tax band: C
Tenure: Leasehold
Lease length: 109 years remaining
Service charge: £150 per month
Property type: Flat
Property construction: There is a significant Portion of flat roof because the flat is a conversion and extention
Energy Performance rating: C
Number and types of room: 2 bedrooms, 1 bathroom, 1 reception
Electricity supply: Mains electricity
Solar Panels: No
Other electricity sources: No
Water supply: Mains water supply
Sewerage: Mains
Heating: Mains gas-powered central heating is installed.
Heating features: Double glazing and Underfloor heating
Broadband: FTTP (Fibre to the Premises)
Mobile coverage: O2 - Good, Vodafone - Great, Three - Good, EE - Good
Parking: On Street
Building safety issues: No
Restrictions - Listed Building: No
Restrictions - Conservation Area: No
Restrictions - Tree Preservation Orders: None
Public right of way: No
Long-term area flood risk: No
Historical flooding: No
Flood defences: No
Coastal erosion risk: No
Planning permission issues: No
Accessibility and adaptations: None
Coal mining area: No
Non-coal mining area: No
Brochures
Woolstone Road, London- COUNCIL TAXA payment made to your local authority in order to pay for local services like schools, libraries, and refuse collection. The amount you pay depends on the value of the property.Read more about council Tax in our glossary page.
- Band: C
- PARKINGDetails of how and where vehicles can be parked, and any associated costs.Read more about parking in our glossary page.
- On street,No disabled parking
- GARDENA property has access to an outdoor space, which could be private or shared.
- Yes
- ACCESSIBILITYHow a property has been adapted to meet the needs of vulnerable or disabled individuals.Read more about accessibility in our glossary page.
- Ask agent
Woolstone Road, London
Add an important place to see how long it'd take to get there from our property listings.
__mins driving to your place
Get an instant, personalised result:
- Show sellers you’re serious
- Secure viewings faster with agents
- No impact on your credit score
Your mortgage
Notes
Staying secure when looking for property
Ensure you're up to date with our latest advice on how to avoid fraud or scams when looking for property online.
Visit our security centre to find out moreDisclaimer - Property reference 34373852. The information displayed about this property comprises a property advertisement. Rightmove.co.uk makes no warranty as to the accuracy or completeness of the advertisement or any linked or associated information, and Rightmove has no control over the content. This property advertisement does not constitute property particulars. The information is provided and maintained by Hunters, Forest Hill. Please contact the selling agent or developer directly to obtain any information which may be available under the terms of The Energy Performance of Buildings (Certificates and Inspections) (England and Wales) Regulations 2007 or the Home Report if in relation to a residential property in Scotland.
*This is the average speed from the provider with the fastest broadband package available at this postcode. The average speed displayed is based on the download speeds of at least 50% of customers at peak time (8pm to 10pm). Fibre/cable services at the postcode are subject to availability and may differ between properties within a postcode. Speeds can be affected by a range of technical and environmental factors. The speed at the property may be lower than that listed above. You can check the estimated speed and confirm availability to a property prior to purchasing on the broadband provider's website. Providers may increase charges. The information is provided and maintained by Decision Technologies Limited. **This is indicative only and based on a 2-person household with multiple devices and simultaneous usage. Broadband performance is affected by multiple factors including number of occupants and devices, simultaneous usage, router range etc. For more information speak to your broadband provider.
Map data ©OpenStreetMap contributors.





