Lonsdale Road, Scarborough, North Yorkshire

- PROPERTY TYPE
House
- BEDROOMS
6
- BATHROOMS
3
- SIZE
Ask agent
- TENUREDescribes how you own a property. There are different types of tenure - freehold, leasehold, and commonhold.Read more about tenure in our glossary page.
Freehold
Key features
- SUBSTANTIAL PERIOD PROPERTY
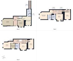
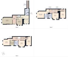
- THREE STOREY BUILDING
- GENEROUS ACCOMMODATION
- NEWLY INSTALLED DOUBLE GLAZED WINDOWS
- NEWLY TILED ROOF
- FULLY RENOVATED THROUGHOUT
Description
The home has been meticulously updated with a new tiled roof, double-glazed windows, a modern boiler and water tank, and a complete re-wire with a new fuse board. Fire doors throughout, along with new flooring and carpets, add to the safety and comfort, ensuring a seamless move-in experience. The ground floor features a welcoming lounge, a separate dining room, a well-equipped kitchen, a utility room, and a convenient WC, perfect for both daily living and entertaining. The first and second floors house six bedrooms, including one with an en-suite, and two additional bathrooms, providing plenty of space for everyone. Outside, there's a low-maintenance rear space, ideal for easy yet cosy outdoor enjoyment. Located near the Esplanade, South Bay, town centre, local shops, schools, and the university campus, this charming period home combines a prime residential location with easy access to Scarborough’s best amenities.
We highly recommend scheduling a viewing to fully appreciate the size, condition, and prime location of this exceptional property. Contact our friendly sales team today to arrange your visit!
HMRC DISCLAIMER:
If you have an offer accepted on this property, we are obliged by HMRC to conduct mandatory Anti Money Laundering Checks. We outsource these checks to our compliance partners at IAmProperty/Movebutler. They charge a fee for this service. For further information, please contact our office.
- COUNCIL TAXA payment made to your local authority in order to pay for local services like schools, libraries, and refuse collection. The amount you pay depends on the value of the property.Read more about council Tax in our glossary page.
- Ask agent
- PARKINGDetails of how and where vehicles can be parked, and any associated costs.Read more about parking in our glossary page.
- Ask agent
- GARDENA property has access to an outdoor space, which could be private or shared.
- Ask agent
- ACCESSIBILITYHow a property has been adapted to meet the needs of vulnerable or disabled individuals.Read more about accessibility in our glossary page.
- Ask agent
Energy performance certificate - ask agent
Lonsdale Road, Scarborough, North Yorkshire
Add an important place to see how long it'd take to get there from our property listings.
__mins driving to your place
Get an instant, personalised result:
- Show sellers you’re serious
- Secure viewings faster with agents
- No impact on your credit score
Affordability
Notes
Staying secure when looking for property
Ensure you're up to date with our latest advice on how to avoid fraud or scams when looking for property online.
Visit our security centre to find out moreDisclaimer - Property reference LSB-29356846. The information displayed about this property comprises a property advertisement. Rightmove.co.uk makes no warranty as to the accuracy or completeness of the advertisement or any linked or associated information, and Rightmove has no control over the content. This property advertisement does not constitute property particulars. The information is provided and maintained by Liam Darrell Estate Agents, Scarborough. Please contact the selling agent or developer directly to obtain any information which may be available under the terms of The Energy Performance of Buildings (Certificates and Inspections) (England and Wales) Regulations 2007 or the Home Report if in relation to a residential property in Scotland.
*This is the average speed from the provider with the fastest broadband package available at this postcode. The average speed displayed is based on the download speeds of at least 50% of customers at peak time (8pm to 10pm). Fibre/cable services at the postcode are subject to availability and may differ between properties within a postcode. Speeds can be affected by a range of technical and environmental factors. The speed at the property may be lower than that listed above. You can check the estimated speed and confirm availability to a property prior to purchasing on the broadband provider's website. Providers may increase charges. The information is provided and maintained by Decision Technologies Limited. **This is indicative only and based on a 2-person household with multiple devices and simultaneous usage. Broadband performance is affected by multiple factors including number of occupants and devices, simultaneous usage, router range etc. For more information speak to your broadband provider.
Map data ©OpenStreetMap contributors.




