
5 bedroom terraced house for sale
Kingsway Road, Burnham-on-Sea, Somerset, TA8

- PROPERTY TYPE
Terraced
- BEDROOMS
5
- BATHROOMS
2
- SIZE
Ask agent
- TENUREDescribes how you own a property. There are different types of tenure - freehold, leasehold, and commonhold.Read more about tenure in our glossary page.
Freehold
Key features
- Charming five bedroom period terraced property
- Period features
- Private garden
- Close to High Street and Beach
- Gas central heating
Description
This exquisite property boasts 5 generously sized bedrooms, perfect for a growing family or those who appreciate extra space. The house features a beautifully landscaped garden, ideal for relaxing and entertaining. The interior is elegantly designed with high-quality finishes throughout, showcasing a perfect blend of modern amenities and traditional charm. Private parking with EV charging facility available, ensuring convenience for residents. Situated within close proximity to local amenities, schools, and transport links, this property offers the perfect balance of comfort and convenience. Don't miss the opportunity to make this stunning house your new home. Contact us today to arrange a viewing and secure your future in this delightful property.
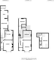
Entrance - Accessed through a large solid wooden door. Wooden panelling to the walls, tiled flooring and a decorative stained glass door leading through to the main Entrance Hall.
Entrance Hall - Decorative coved ceiling. First Floor Landing with radiator.
Wall mounted Hive smart thermostat and wood effect parquet style vinyl flooring.
Lounge - Double glazed bay fronted windows and window shutters. Feature fireplace with a cast iron log burner on a granite hearth with built in display shelving to both recesses and storage, picture rail and cornicing.
Kitchen - A rear aspect room with a UPVC double glazed door leading out to the side terrace and rear garden area. The Kitchen has been fitted with a comprehensive range of base and eye level units with wooden square edge work surfaces. Integrated appliances throughout.
Cloaks Cupboard - A walk-in cloaks cupboard housing the boiler and space for a shelving unit.
Dining Room - UPVC double glazed French doors leading out to the terrace and rear garden area, exposed ceiling beams, 2 brick wall features, LVT parquet flooring effect, radiator, leading through to the 2nd lounge.
2nd Lounge - UPVC double glazed window to the side and an opening to rear leading to the Utility Room. Oak wooden flooring, and a vertical radiator.
Utility Room - Built in units with a wooden square edge work surface, space and plumbing for a washing machine, space for a tumble dryer.
First Floor Landing - A galleried landing area with picture rails, loft hatch giving access to roof space, staircase leading to bedroom 5.
Bedroom 1 - A lovely light and airy front aspect room with UPVC double glazed bay fronted windows (installed 2023), ceiling light, picture rails, radiator, built in double and triple wardrobes.
Bedroom 2 - A rear aspect room with UPVC double glazed window, ceiling light and a radiator.
Bedroom 3 - Rear aspect room with UPVC double glazed window and a radiator.
Bedroom 4 - A front aspect room with a UPVC double glazed window, ceiling light and a radiator.
Family Bathroom - Low-level WC, pedestal wash hand basin with a chrome mixer tap and a P-shaped panel enclosed bath with a mixer tap over a glazed shower screen.
Second Floor Landing - Wooden double glazed Velux roof light, ceiling light and a door through to Bedroom 5.
Bedroom 5 - A lovely light and spacious room with a wooden double glazed Velux rooflight to the front and rear. Vaulted ceiling with a ceiling light, 2 radiators, a useful walk-in eaves storage area and a door to the en-suite shower room.
En-Suite - Low-level WC, pedestal wash hand basin with twin taps and a good sixed glazed and tiled shower enclosure.
Outside To The Front - There is a decorative tiled walkway leading up to the front door and a low maintenance shingled stone garden enclosed with brick walls to all sides.
Outside To The Rear - Patio pathway leads on to a astro turf rear garden with mature plants, flowers and shrubs, patio area, timber built outbuilding/storage shed. Gated access to off road parking space for one car with an electric V charging point.
SERVICES & OUTGOINGS
We understand that mains electric, gas, water and drainage are connected to the property. Gas fired central heating. Council Tax: Somerset Council Band ‘B’
AGENTS NOTE: A recent full re-felt and batten on the roof and new fascia boards have been added to the property.
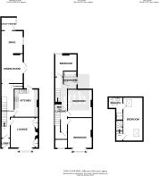
Entrance Hall - Decorative coved ceiling. First Floor Landing with radiator.
Wall mounted Hive smart thermostat and wood effect parquet style vinyl flooring.
Lounge - Double glazed bay fronted windows and window shutters. Feature fireplace with a cast iron log burner on a granite hearth with built in display shelving to both recesses and storage, picture rail and cornicing.
Kitchen - A rear aspect room with a UPVC double glazed door leading out to the side terrace and rear garden area. The Kitchen has been fitted with a comprehensive range of base and eye level units with wooden square edge work surfaces. Integrated appliances throughout.
Cloaks Cupboard - A walk-in cloaks cupboard housing the boiler and space for a shelving unit.
Dining Room - UPVC double glazed French doors leading out to the terrace and rear garden area, exposed ceiling beams, 2 brick wall features, LVT parquet flooring effect, radiator, leading through to the 2nd lounge.
2nd Lounge - UPVC double glazed window to the side and an opening to rear leading to the Utility Room. Oak wooden flooring, and a vertical radiator.
Utility Room - Built in units with a wooden square edge work surface, space and plumbing for a washing machine, space for a tumble dryer.
First Floor Landing - A galleried landing area with picture rails, loft hatch giving access to roof space, staircase leading to bedroom 5.
Bedroom 1 - A lovely light and airy front aspect room with UPVC double glazed bay fronted windows (newly installed), ceiling light, picture rails, radiator built in double and triple wardrobes.
Bedroom 2 - A rear aspect room with UPVC double glazed window, ceiling light and a radiator.
Bedroom 3 - Rear aspect room with UPVC double glazed window and a radiator.
Bedroom 4 - A front aspect room with a UPVC double glazed window, ceiling light and a radiator.
Family Bathroom - Low-level WC, pedestal wash hand basin with a chrome mixer tap and a P-shaped panel enclosed bath with a mixer tap over a glazed shower screen.
Second Floor Landing - With a wooden double glazed Velux roof light, ceiling light and a door through to the Bedroom 5.
Bedroom 5 - A lovely light and spacious room with a wooden double glazed Velux rooflight to the front and rear. Vaulted ceiling with a ceiling light, 2 radiators, a useful walk-in eaves storage area and a door to the en-suite shower room.
En-Suite - Lw-level WC, pedestal wash hand basin with twin taps and a good sixed glazed and tiled shower enclosure.
Outside To The Front - There is a decorative tiled walkway leading up to the front door and a low maintenance shingled stone garden enclosed with brick walls to all sides.
Outside To The Rear - Patiopathway leads on to a astro turf rear garden with mature plants, flowers and shrubs, patio area, timber built outbuilding/storage shed. Gated access to off road parking space for one car with an electric V charging point.
Standing in a central location and being approximately 300 to 400 yards from the High Street and seafront. Burnham-on-Sea town centre provides various shopping and a banking facilities together with other amenities including churches, schools, library, hospital, doctor's surgery, hotels, restaurants and public houses, all of which are within easy reach. There are also various sports facilities in the surrounding area in particular Burnham Swimming Pool/Academy and Burnham Bowls Club which are closeby. Access to the M5 interchange at Edithmead, Junction 22. Mainline railway station in Highbridge.
Brochures
Particulars- COUNCIL TAXA payment made to your local authority in order to pay for local services like schools, libraries, and refuse collection. The amount you pay depends on the value of the property.Read more about council Tax in our glossary page.
- Band: B
- PARKINGDetails of how and where vehicles can be parked, and any associated costs.Read more about parking in our glossary page.
- Yes
- GARDENA property has access to an outdoor space, which could be private or shared.
- Yes
- ACCESSIBILITYHow a property has been adapted to meet the needs of vulnerable or disabled individuals.Read more about accessibility in our glossary page.
- Ask agent
Kingsway Road, Burnham-on-Sea, Somerset, TA8
Add an important place to see how long it'd take to get there from our property listings.
__mins driving to your place
Get an instant, personalised result:
- Show sellers you’re serious
- Secure viewings faster with agents
- No impact on your credit score



Your mortgage
Notes
Staying secure when looking for property
Ensure you're up to date with our latest advice on how to avoid fraud or scams when looking for property online.
Visit our security centre to find out moreDisclaimer - Property reference BUR240294. The information displayed about this property comprises a property advertisement. Rightmove.co.uk makes no warranty as to the accuracy or completeness of the advertisement or any linked or associated information, and Rightmove has no control over the content. This property advertisement does not constitute property particulars. The information is provided and maintained by Greenslade Taylor Hunt, Burnham-On-Sea. Please contact the selling agent or developer directly to obtain any information which may be available under the terms of The Energy Performance of Buildings (Certificates and Inspections) (England and Wales) Regulations 2007 or the Home Report if in relation to a residential property in Scotland.
*This is the average speed from the provider with the fastest broadband package available at this postcode. The average speed displayed is based on the download speeds of at least 50% of customers at peak time (8pm to 10pm). Fibre/cable services at the postcode are subject to availability and may differ between properties within a postcode. Speeds can be affected by a range of technical and environmental factors. The speed at the property may be lower than that listed above. You can check the estimated speed and confirm availability to a property prior to purchasing on the broadband provider's website. Providers may increase charges. The information is provided and maintained by Decision Technologies Limited. **This is indicative only and based on a 2-person household with multiple devices and simultaneous usage. Broadband performance is affected by multiple factors including number of occupants and devices, simultaneous usage, router range etc. For more information speak to your broadband provider.
Map data ©OpenStreetMap contributors.





