Plot for sale
Land at 34-42 Upperthorpe Road, Sheffield, South Yorkshire, S6 3EB
- PROPERTY TYPE
Plot
- SIZE
Ask agent
Key features
- For sale by online auction
- Register at tcpa.co.uk
- Prime Development opportunity
- Planning granted
- Brownfield land
- Excellent Location
Description
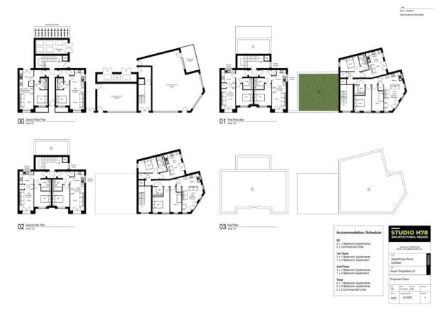
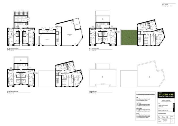
Development Opportunity With Planning
Description
0.14 Acres of land with planning permission granted. This land is part leasehold, with 101 years remaining ( 200 years from 1927 ). With the service charge only being £25 per annum, and no ground rent applicable. Planning was submitted and accepted in May 2025 for the erection of 2 three-storey buildings and a single-storey building to form :
10x residential apartments (8x one-bedroomed and 2x two-bedroomed)
and 2x ground-floor commercial units with residential bin storage areas,
bike storage, commercial bin storage areas and landscaping works. Offering potential for some incredible returns, whether you develop to let or develop to flip.
Located in a sought-after and well-connected area of Sheffield, just minutes from the city centre and the University of Sheffield. This location benefits from strong demand for modern rental accommodation from students and young professionals, offering excellent potential yields.
** PLANNING REF 25/01379/FUL **
Legal PackA legal pack is a collaboration of important documents of the property or land that is going to be sold at auction. To review the legal pack, click the Legal Documents button at the bottom of this advert or visit tcpa.co.uk.
Auction Information.
To view the auction information, click the Online Bidding button at the bottom of this advert or visit tcpa.co.uk.
UNCONDITIONAL LOT Buyers Premium Applies Upon the fall of the hammer, the Purchaser shall pay a 5% deposit and a %+VAT (subject to a minimum of £5,000+VAT) buyers premium and contracts are exchanged. The purchaser is legally bound to buy and the vendor is legally bound to sell the Property/Lot. The auction conditions require a full legal completion 28 days following the auction (unless otherwise stated).The seller of this property may consider a pre-auction offer prior to the auction date. All auction conditions will remain the same for pre-auction offers which include but are not limited to, the special auction conditions which can be viewed within the legal pack, the Buyer's Premium, and the deposit. To make a pre-auction offer we will require two forms of ID, proof of your ability to purchase the property and complete our auction registration processes online. To find out more information or to make a pre-auction offer please contact us.Special Conditions
Any additional costs will be listed in the Special Conditions within the legal pack and these costs will be payable on completion. The legal pack is available to download free of charge under the LEGAL DOCUMENTS'. Any stamp duty and/or government taxes are not included within the Special Conditions within the legal pack and all potential buyers must make their own investigations.
Brochures
Legal DocumentsOnline BiddingLand at 34-42 Upperthorpe Road, Sheffield, South Yorkshire, S6 3EB
NEAREST STATIONS
Distances are straight line measurements from the centre of the postcode- Infirmary Road Tram Stop0.3 miles
- Shalesmoor Tram Stop0.4 miles
- Netherthorpe Road Tram Stop0.4 miles
Notes
Disclaimer - Property reference 323789. The information displayed about this property comprises a property advertisement. Rightmove.co.uk makes no warranty as to the accuracy or completeness of the advertisement or any linked or associated information, and Rightmove has no control over the content. This property advertisement does not constitute property particulars. The information is provided and maintained by Town & Country Property Auctions, Wrexham - Auctions. Please contact the selling agent or developer directly to obtain any information which may be available under the terms of The Energy Performance of Buildings (Certificates and Inspections) (England and Wales) Regulations 2007 or the Home Report if in relation to a residential property in Scotland.
Auction Fees: The purchase of this property may include associated fees not listed here, as it is to be sold via auction. To find out more about the fees associated with this property please call Town & Country Property Auctions, Wrexham - Auctions on 01978 803835.
*Guide Price: An indication of a seller's minimum expectation at auction and given as a Guide Price or a range of Guide Prices. This is not necessarily the figure a property will sell for and is subject to change prior to the auction.
Reserve Price: Each auction property will be subject to a Reserve Price below which the property cannot be sold at auction. Normally the Reserve Price will be set within the range of Guide Prices or no more than 10% above a single Guide Price.
Map data ©OpenStreetMap contributors.




