2 bedroom coach house for sale
Eaton Avenue, Slough, SL1

- PROPERTY TYPE
Coach House
- BEDROOMS
2
- BATHROOMS
2
- SIZE
Ask agent
- TENUREDescribes how you own a property. There are different types of tenure - freehold, leasehold, and commonhold.Read more about tenure in our glossary page.
Freehold
Key features
- Two Bedroom Coach House for Sale in Slough (SL1 6EZ)
- Spacious Open-Plan Living & Kitchen Area
- Top-Floor Master Bedroom with En-Suite & Fitted Wardrobes
- Modern Bathroom & Excellent Condition Throughout
- Allocated Parking for Two Cars
- Close to Slough Station, Elizabeth Line & Major Motorway Links
Description
A modern coach house that offers flexible living, strong commuter credentials and off-street parking is always going to be an attractive proposition. Set within a popular residential location, this is a home that makes complete sense for buyers looking for style, convenience and a property they can move straight into.
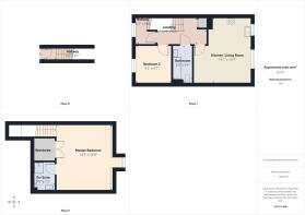
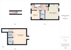
This well-presented two bedroom coach house delivers contemporary living across a thoughtfully arranged layout. The main living accommodation centres around a bright open-plan living and kitchen space, creating a versatile and sociable area ideal for both everyday life and entertaining. Also on this level is a well-proportioned second bedroom and a modern family bathroom, both finished to a high standard.
Occupying the top floor, the principal bedroom feels like a true retreat, complete with fitted wardrobes and its own en-suite shower room, offering privacy and separation from the main living space. The property is presented in excellent condition throughout, ensuring a smooth and stress-free move for the next owner.
Externally, buyers will appreciate the benefit of allocated parking for two vehicles — a particularly desirable feature in this location.
Eaton Avenue is well placed for commuters, with Slough railway station nearby providing fast and frequent services into London Paddington and access to the Elizabeth Line. Excellent road connections via the M4, M25 and M40 further enhance the appeal, making this a superb option for those needing flexibility and connectivity.
- COUNCIL TAXA payment made to your local authority in order to pay for local services like schools, libraries, and refuse collection. The amount you pay depends on the value of the property.Read more about council Tax in our glossary page.
- Band: D
- PARKINGDetails of how and where vehicles can be parked, and any associated costs.Read more about parking in our glossary page.
- Allocated
- GARDENA property has access to an outdoor space, which could be private or shared.
- Ask agent
- ACCESSIBILITYHow a property has been adapted to meet the needs of vulnerable or disabled individuals.Read more about accessibility in our glossary page.
- Ask agent
Eaton Avenue, Slough, SL1
Add an important place to see how long it'd take to get there from our property listings.
__mins driving to your place
Get an instant, personalised result:
- Show sellers you’re serious
- Secure viewings faster with agents
- No impact on your credit score

Your mortgage
Notes
Staying secure when looking for property
Ensure you're up to date with our latest advice on how to avoid fraud or scams when looking for property online.
Visit our security centre to find out moreDisclaimer - Property reference S1529682. The information displayed about this property comprises a property advertisement. Rightmove.co.uk makes no warranty as to the accuracy or completeness of the advertisement or any linked or associated information, and Rightmove has no control over the content. This property advertisement does not constitute property particulars. The information is provided and maintained by Who Property, Maidenhead. Please contact the selling agent or developer directly to obtain any information which may be available under the terms of The Energy Performance of Buildings (Certificates and Inspections) (England and Wales) Regulations 2007 or the Home Report if in relation to a residential property in Scotland.
*This is the average speed from the provider with the fastest broadband package available at this postcode. The average speed displayed is based on the download speeds of at least 50% of customers at peak time (8pm to 10pm). Fibre/cable services at the postcode are subject to availability and may differ between properties within a postcode. Speeds can be affected by a range of technical and environmental factors. The speed at the property may be lower than that listed above. You can check the estimated speed and confirm availability to a property prior to purchasing on the broadband provider's website. Providers may increase charges. The information is provided and maintained by Decision Technologies Limited. **This is indicative only and based on a 2-person household with multiple devices and simultaneous usage. Broadband performance is affected by multiple factors including number of occupants and devices, simultaneous usage, router range etc. For more information speak to your broadband provider.
Map data ©OpenStreetMap contributors.




