
West End, Wilburton, Cambridgeshire

- PROPERTY TYPE
Cottage
- BEDROOMS
2
- BATHROOMS
1
- SIZE
926 sq ft
86 sq m
- TENUREDescribes how you own a property. There are different types of tenure - freehold, leasehold, and commonhold.Read more about tenure in our glossary page.
Freehold
Key features
- Chain Free
- Private & Secluded Location With Off Street Parking For Two Cars
- Two Bedrooms & Family Bathroom
- Generous Kitchen/Diner & Spacious Living Room
- Private Rear Garden Split Into Two Sections
- Virtual Tour Available
- Period Property Dating Back to 1880
- Popular Village Location With Picturesque Countryside Views
- Previous Planning Permission 16/01439/FUL
Description
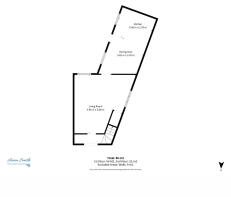
From the outside, the cottage gives little away. Once inside, the space unfolds nicely, beginning with a generous living room that feels both cosy and comfortable, with ample room for everyday furniture and entertaining alike. The layout flows naturally through the ground floor, giving the house a welcoming and easy-to-live-in feel.
To the rear of the property sits a large kitchen/dining room, which is a real strength of the house. This is a bright, functional space with extensive fitted units, plenty of worktop space and room for a dining table, making it ideal for family meals or relaxed entertaining. The kitchen also benefits from direct access to the garden, creating a natural link between indoor and outdoor space.
Upstairs, the cottage offers two well-proportioned double bedrooms, both of which are comfortably sized, along with a family bathroom positioned off the landing. The layout upstairs is straightforward and practical, with good room sizes throughout.
Outside, the garden provides a private and manageable outdoor space, ideal for enjoying without excessive upkeep. The property also benefits from off-road parking, which is a valuable feature for a village location.
Overall, this is a warm, characterful home that offers more space than first expected and will appeal to buyers looking for a period property with sensible proportions, village charm and the added benefit of no onward chain.
Additional Information:
The property is in a Conservation Area.
Council Tax authority is East Cambs District Council - Band C
Oil Fired Central Heating
Planning Permission was previously given on the property for an extension for a 3rd bedroom over the kitchen - this has now lapsed but would likely be granted again if desired.
- COUNCIL TAXA payment made to your local authority in order to pay for local services like schools, libraries, and refuse collection. The amount you pay depends on the value of the property.Read more about council Tax in our glossary page.
- Ask agent
- PARKINGDetails of how and where vehicles can be parked, and any associated costs.Read more about parking in our glossary page.
- Yes
- GARDENA property has access to an outdoor space, which could be private or shared.
- Yes
- ACCESSIBILITYHow a property has been adapted to meet the needs of vulnerable or disabled individuals.Read more about accessibility in our glossary page.
- Ask agent
West End, Wilburton, Cambridgeshire
Add an important place to see how long it'd take to get there from our property listings.
__mins driving to your place
Get an instant, personalised result:
- Show sellers you’re serious
- Secure viewings faster with agents
- No impact on your credit score
Your mortgage
Notes
Staying secure when looking for property
Ensure you're up to date with our latest advice on how to avoid fraud or scams when looking for property online.
Visit our security centre to find out moreDisclaimer - Property reference RX705190. The information displayed about this property comprises a property advertisement. Rightmove.co.uk makes no warranty as to the accuracy or completeness of the advertisement or any linked or associated information, and Rightmove has no control over the content. This property advertisement does not constitute property particulars. The information is provided and maintained by iad, Nationwide. Please contact the selling agent or developer directly to obtain any information which may be available under the terms of The Energy Performance of Buildings (Certificates and Inspections) (England and Wales) Regulations 2007 or the Home Report if in relation to a residential property in Scotland.
*This is the average speed from the provider with the fastest broadband package available at this postcode. The average speed displayed is based on the download speeds of at least 50% of customers at peak time (8pm to 10pm). Fibre/cable services at the postcode are subject to availability and may differ between properties within a postcode. Speeds can be affected by a range of technical and environmental factors. The speed at the property may be lower than that listed above. You can check the estimated speed and confirm availability to a property prior to purchasing on the broadband provider's website. Providers may increase charges. The information is provided and maintained by Decision Technologies Limited. **This is indicative only and based on a 2-person household with multiple devices and simultaneous usage. Broadband performance is affected by multiple factors including number of occupants and devices, simultaneous usage, router range etc. For more information speak to your broadband provider.
Map data ©OpenStreetMap contributors.






