2 bedroom flat for sale
Hill Road, Carlow Court, CR8

- PROPERTY TYPE
Flat
- BEDROOMS
2
- BATHROOMS
1
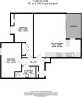
- SIZE
700 sq ft
65 sq m
Key features
- Constructed in 2021
- Third Floor Apartment
- Two Double Bedroom
- Private Balcony
- 0.5 Mile to Purley Train Station
- Remainder of 10 Year Warranty
Description
This beautifully presented two bedroom apartment, built in 2021, is ideally situated in Purley and is located on the third floor, the top floor of the building, offering a sense of privacy and space throughout.
The accommodation comprises a welcoming entrance hall with two storage cupboards, leading through to a bright and spacious open-plan kitchen, living and dining area. The modern kitchen is fitted with a range of sleek units and fully integrated appliances, making it both stylish and practical. The living space enjoys direct access to a large covered balcony, perfect for outdoor dining or relaxing.
There are two well proportioned double bedrooms, with the master bedroom benefiting from fitted wardrobes and additional eaves storage. A contemporary family bathroom completes the accommodation, featuring a modern three piece suite.
Further benefits include high ceilings throughout the apartment, enhancing the sense of light and space, and the advantage of being positioned on the top floor of this modern development.
Tenure: Leasehold
Service Charge: £1524.56 per annum
Ground Rent: £0
EPC: Rating B
Council Tax: Band D
Location
Hill Road is a popular residential location ideal due to its close proximity to local shops, schools, transport links as well as Gatwick and Heathrow Airports which are easily accessible via the M25/M23.
Purley train station is just a short walk away and provides fast regular connections into London Bridge, London Victoria and Gatwick. There are also several bus routes nearby linking Purley with Caterham, Croydon town centre and Sutton.
Purley and its surrounding area, is renowned for its excellent choice of schools, including St David’s and Cumnor House Preparatory Schools, Whitgift, Trinity, Caterham, Croydon High, John Fisher, Riddlesdown Collegiate, along with various grammar schools (Wallington Boys/Girls and Wilson’s).
Purley town centre offers an array of shops, cafes and restaurants to relax and socialise. As well as various sports and leisure facilities, including Purley Sports Club with its squash, cricket, tennis and paddle courts. Also locally are several prestigious golf clubs such as Purley Downs, Croham Hurst and Woodcote.
Nearby, Riddlesdown Common provides the perfect space for dog-walking and leisurely afternoon strolls.
EPC Rating: B
- COUNCIL TAXA payment made to your local authority in order to pay for local services like schools, libraries, and refuse collection. The amount you pay depends on the value of the property.Read more about council Tax in our glossary page.
- Band: D
- PARKINGDetails of how and where vehicles can be parked, and any associated costs.Read more about parking in our glossary page.
- Ask agent
- GARDENA property has access to an outdoor space, which could be private or shared.
- Communal garden
- ACCESSIBILITYHow a property has been adapted to meet the needs of vulnerable or disabled individuals.Read more about accessibility in our glossary page.
- Ask agent
Energy performance certificate - ask agent
Hill Road, Carlow Court, CR8
Add an important place to see how long it'd take to get there from our property listings.
__mins driving to your place
Get an instant, personalised result:
- Show sellers you’re serious
- Secure viewings faster with agents
- No impact on your credit score
Your mortgage
Notes
Staying secure when looking for property
Ensure you're up to date with our latest advice on how to avoid fraud or scams when looking for property online.
Visit our security centre to find out moreDisclaimer - Property reference 9e4f729e-b85e-4fa7-a5af-f932916bbf97. The information displayed about this property comprises a property advertisement. Rightmove.co.uk makes no warranty as to the accuracy or completeness of the advertisement or any linked or associated information, and Rightmove has no control over the content. This property advertisement does not constitute property particulars. The information is provided and maintained by Move Revolution, Covering Surrey/Sussex. Please contact the selling agent or developer directly to obtain any information which may be available under the terms of The Energy Performance of Buildings (Certificates and Inspections) (England and Wales) Regulations 2007 or the Home Report if in relation to a residential property in Scotland.
*This is the average speed from the provider with the fastest broadband package available at this postcode. The average speed displayed is based on the download speeds of at least 50% of customers at peak time (8pm to 10pm). Fibre/cable services at the postcode are subject to availability and may differ between properties within a postcode. Speeds can be affected by a range of technical and environmental factors. The speed at the property may be lower than that listed above. You can check the estimated speed and confirm availability to a property prior to purchasing on the broadband provider's website. Providers may increase charges. The information is provided and maintained by Decision Technologies Limited. **This is indicative only and based on a 2-person household with multiple devices and simultaneous usage. Broadband performance is affected by multiple factors including number of occupants and devices, simultaneous usage, router range etc. For more information speak to your broadband provider.
Map data ©OpenStreetMap contributors.





