Childcare facility to lease
Longshaw Road, London, E4
- SIZE AVAILABLE
7,116 sq ft
661 sq m
- SECTOR
Childcare facility to lease
- USE CLASSUse class orders: Class F1
F1
Lease details
- Lease available date:
- Ask agent
Key features
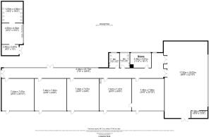
- Self contained area within a primary school
- F1 Use Class - Ideal for educational occupiers, with scope for nursery provision subject to obtaining the necessary consent
- Well-maintained and ready for immediate continuation of Educational use
- Approximately 7,116 sq. ft
- Multiple classrooms with dedicated outdoor space and WC facilities
- Located in a well-established residential area, offering good transport links and access to local amenities.
Description
The accommodation extends to approximately 7,116 sq ft and is well maintained throughout, allowing for the immediate continuation of educational use. The layout comprises a number of generously sized classrooms arranged around a central corridor, supported by WC facilities, storage areas and dedicated outdoor space located directly off the main teaching rooms.
The configuration offers flexibility for a variety of educational settings, including specialist teaching areas or early-years provision.
The property is situated within a well-established residential neighbourhood and benefits from strong transport links and convenient access to local amenities, providing a practical and accessible location for staff, pupils and visitors.
Brochures
Longshaw Road, London, E4
NEAREST STATIONS
Distances are straight line measurements from the centre of the postcode- Highams Park Station0.8 miles
- Chingford Station0.9 miles
- Woodford Station1.6 miles
Notes
Disclaimer - Property reference AMP4483. The information displayed about this property comprises a property advertisement. Rightmove.co.uk makes no warranty as to the accuracy or completeness of the advertisement or any linked or associated information, and Rightmove has no control over the content. This property advertisement does not constitute property particulars. The information is provided and maintained by Alex Martin Commercial Ltd, London. Please contact the selling agent or developer directly to obtain any information which may be available under the terms of The Energy Performance of Buildings (Certificates and Inspections) (England and Wales) Regulations 2007 or the Home Report if in relation to a residential property in Scotland.
Map data ©OpenStreetMap contributors.





