3 bedroom bungalow for sale
Patricks Close, NORTH KELSEY

- PROPERTY TYPE
Bungalow
- BEDROOMS
3
- BATHROOMS
1
- SIZE
Ask agent
- TENUREDescribes how you own a property. There are different types of tenure - freehold, leasehold, and commonhold.Read more about tenure in our glossary page.
Freehold
Key features
- Well Appointed, Proportioned and Presented
- Spacious Lounge
- Open Fire
- Dining Kitchen
- Conservatory
- Three Bedrooms
- Off Road Parking
- Detached Garage
- Front & Rear Gardens
- Desirable Village Location
Description
LOCATION
North Kelsey is a sought after village location benefiting from local amenities such as a post office and a public house. The village has its own primary school and is within easy travelling distance from the market town of Brigg and access to the motorway system and the A15 to Lincoln. Catchment area for Caistor Grammar School.
ACCOMMODATION
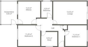
Arranged over the ground floor.
HALLWAY
Enter the property via a composite door located to the side of the bungalow into a spacious hallway having two pendant lights and loft access to the ceiling with the loft having lighting and a Slingsby pull down ladder for easy access. There is a central heating radiator, carpeted flooring and a fully shelved built in airing cupboard housing the hot water tank.
LOUNGE 5.25m (17' 3") x 3.64m (11' 11")
Situated to the front of the bungalow enjoying uPVC double glazed sliding doors to the South facing front garden. There is an open fire with slate surround and back boiler, a pendant light to the ceiling, a double central heating radiator and carpeted flooring.
KITCHEN 3.62m (11' 11") x 3.47m (11' 5")
A country shaker style kitchen provides a range of wall and base units fitted with butcher block effect worktops having tiled splash backs and incorporates a composite sink with chrome mixer tap and a built in extractor hood. Space for a free standing electric cooker, an under counter recess for a fridge as well as space and plumbing for a dishwasher. There is a uPVC double glazed window to the rear aspect, a light fitting to the ceiling, a central heating radiator and wood effect cushion flooring. The floor standing oil fired boiler is located here.
CONSERVATORY/UTILITY ROOM 3.71m (12' 2") x 2.48m (8' 2")
A uPVC double glazed conservatory with thermal glazing roofing is fitted with a base unit having a recess and plumbing for the washing machine, and space for a freezer, a central heating radiator, wall lighting, cushion flooring and a uPVC external door to the rear garden.
BEDROOM ONE 3.29m (10' 10") x 3.39m (11' 1")
Located to the front of the property, having a triple glazed uPVC window, a pendant light to the ceiling, a central heating radiator and carpeted flooring.
BEDROOM TWO 3.30m (10' 10") x 2.82m (9' 3")
Providing a large built in wardrobe having a uPVC double glazed window to the rear aspect, a pendant light to the ceiling, a central heating radiator and carpeted flooring.
BEDROOM THREE 2.30m (7' 7") x 2.36m (7' 9") floor space
Providing a range of built in wardrobes fitted with sliding doors, a pendant light to the ceiling, a uPVC double glazed window to the side aspect, a central heating radiator and carpeted flooring.
BATHROOM 2.56m (8' 5") x 1.73m (5' 8")
A white three piece bathroom suite provides a bath with mains shower and tiled surround, a wall mounted wash basin with storage under and a low flush WC. There is a uPVC obscure double glazed window to the side aspect, a light fitting to the ceiling, a central heating radiator and cushion flooring.
OUTSIDE
The property enjoys front and rear garden with a pathway running the perimeter. The front garden is south facing, mainly laid to lawn having multiple mature shrubs and bushes. The long driveway provides ample off road parking and leads to the detached sectional garage and rear garden. The garage has an up and over door, lighting, power and a timber framed window and side access door. The private and fully enclosed, well established rear garden is also laid to lawn with a flagged patio area.
SERVICES (not tested)
Mains electric, water and drainage are all understood to be connected to the property with oil fired central heating. Fibre Broadband Connection and sufficient power points throughout. There is external sensor lighting to the front door and garage door and an outside cold water tap.
COUNCIL TAX
The Council Tax Band for this property is Band B as confirmed by West Lindsey District.
Brochures
PDF brochure- COUNCIL TAXA payment made to your local authority in order to pay for local services like schools, libraries, and refuse collection. The amount you pay depends on the value of the property.Read more about council Tax in our glossary page.
- Band: B
- PARKINGDetails of how and where vehicles can be parked, and any associated costs.Read more about parking in our glossary page.
- Garage
- GARDENA property has access to an outdoor space, which could be private or shared.
- Yes
- ACCESSIBILITYHow a property has been adapted to meet the needs of vulnerable or disabled individuals.Read more about accessibility in our glossary page.
- Ask agent
Patricks Close, NORTH KELSEY
Add an important place to see how long it'd take to get there from our property listings.
__mins driving to your place
Get an instant, personalised result:
- Show sellers you’re serious
- Secure viewings faster with agents
- No impact on your credit score
Your mortgage
Notes
Staying secure when looking for property
Ensure you're up to date with our latest advice on how to avoid fraud or scams when looking for property online.
Visit our security centre to find out moreDisclaimer - Property reference BWC1B2601. The information displayed about this property comprises a property advertisement. Rightmove.co.uk makes no warranty as to the accuracy or completeness of the advertisement or any linked or associated information, and Rightmove has no control over the content. This property advertisement does not constitute property particulars. The information is provided and maintained by Bell Watson & Co, Brigg. Please contact the selling agent or developer directly to obtain any information which may be available under the terms of The Energy Performance of Buildings (Certificates and Inspections) (England and Wales) Regulations 2007 or the Home Report if in relation to a residential property in Scotland.
*This is the average speed from the provider with the fastest broadband package available at this postcode. The average speed displayed is based on the download speeds of at least 50% of customers at peak time (8pm to 10pm). Fibre/cable services at the postcode are subject to availability and may differ between properties within a postcode. Speeds can be affected by a range of technical and environmental factors. The speed at the property may be lower than that listed above. You can check the estimated speed and confirm availability to a property prior to purchasing on the broadband provider's website. Providers may increase charges. The information is provided and maintained by Decision Technologies Limited. **This is indicative only and based on a 2-person household with multiple devices and simultaneous usage. Broadband performance is affected by multiple factors including number of occupants and devices, simultaneous usage, router range etc. For more information speak to your broadband provider.
Map data ©OpenStreetMap contributors.







