Crawford Drive, Shotts, Lanarkshire, ML7

- PROPERTY TYPE
Semi-Detached
- BEDROOMS
3
- BATHROOMS
3
- SIZE
1,023 sq ft
95 sq m
- TENUREDescribes how you own a property. There are different types of tenure - freehold, leasehold, and commonhold.Read more about tenure in our glossary page.
Freehold
Key features
- Town House
- Double Driveway
- Private Garden
- Quiet and Popular Development
- 3 Double Bedrooms
- Ensuite and Family Bathroom
Description
In summary, the property comprises of a spacious lounge, fully fitted kitchen with dining area, 3 double bedrooms, downstairs W/C, family bathroom and ensuite.
Situated on a generous and private plot, the property boasts a driveway and private lawned rear garden - ideal for entertaining guests.
Crawford Drive is located in the new Bertamfarm Keepmoat development located on the outskirts of Shotts. No.7 is a 'Roxburgh' design by Keepmoat Townhouse and was bult in 2022. The property is ideally located for commuting as well as access to local amenities located within Shotts.
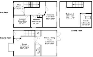
Entrance Hallway: Step into a warm and welcoming hallway providing access to the lounge and upper levels.
Lounge (3.7m x 3.4m) : Positioned at the front of the home, this inviting lounge is ideal for unwinding. A charming bay window floods the room with natural light, creating a bright and homely atmosphere.
Kitchen and dining area (2.7m x 4.5m): A stylish, contemporary kitchen fitted with white high-gloss wall and base units offering ample storage. Integrated appliances include an electric oven, gas hob, fridge/freezer, and dishwasher. The dining area sits beside French doors leading directly to the rear garden - perfect for family meals or entertaining.
Downstairs W/C (1.9m x 1m): Conveniently located between the lounge and kitchen, complete with toilet and wash hand basin.
Primary Bedroom (Top Floor) (5.5m x 4.5m): Occupying the entire top floor, the spacious primary bedroom is one of the standout features of this home. Complete with ensuite and generous floor space, it easily accommodates additional bedroom furniture.
Ensuite (2m x 2.4m): A sleek and modern ensuite fitted with W/C, wash hand basin, and shower enclosure, along with access to useful storage space.
Bedroom 2 (2.7m x 4.5m): (1st floor): A bright and airy double bedroom overlooking the rear garden, complete with built-in wardrobe.
Bedroom 3 (2.9m x 2.3m) (1st Floor): Another well-proportioned double bedroom offering flexibility - ideal as a bedroom, playroom, or hobby space.
Study space (1.8m x 2.1m): Located at the foot of the stairs to the top floor, this dedicated study nook is perfect for a home office, offering privacy while keeping all three bedrooms free for use.
Family Bathroom (2m x 2.3m): A modern three-piece bathroom featuring built-in WC and wash hand basin, full-sized bath, and overhead shower.
Exterior
Front
The property is approached via a private mono-block driveway with space for two cars, complemented by a neat lawned area creating an inviting first impression.
Rear
The fully enclosed rear garden is designed for both relaxation and entertainment, featuring a mix of lawn and slabbed patio - ideal for summer barbecues or unwinding with family and friends.
Additional Features
* Gas central heating
* Move-in condition with neutral décor throughout
* Excellent storage on ground and first floors
* Solar panels
* EV Charger
Council Tax Band - D
EPC Rating - B (84)
Local Amenities -
Shotts is ideally located for accessing commuting links to both Edinburgh and Glasgow via the M8. Local amenities including shops, bars, restaurants and cafes can be found within Shotts town. Larger supermarkets can be found a short drive away in Newmains, Wishaw, Whitburn or Bathgate.
Transport Links
Regular bus services run from Springhill Road to Whitburn, Lanark and Hamilton. Shotts Train Station also provides access by rail to both Edinburgh and Glasgow.
School Catchment
Crawford Drive falls under the catchment area for Stane Primary or St Patrick Primary School for Primary aged pupils with Calderhead High School and St Aidan's High for secondary aged pupils.
All viewings of this property are strictly by appointment only. Viewings can be arranged by calling or by emailing
Property Misdescription Act
All information provided within this advertisement have been prepared and based on information provided by the seller. All sizes are recorded by an electronic measuring device and provide an approximate size only. This advertisement and schedule does not intend to, or form any contract.
It is recommended that potential purchasers make their own enquiries on the information provided within the advertisement.
Any notes of interest should be submitted either verbally or in writing by your appointed solicitor along with any offers. These can be submitted by calling or emailing
Registered Office Address
Time2Move (Scotland) Ltd
Regus, Fairways Business Park,
8 Deer Park Avenue, Livingston,
West Lothian, EH54 8AF
- COUNCIL TAXA payment made to your local authority in order to pay for local services like schools, libraries, and refuse collection. The amount you pay depends on the value of the property.Read more about council Tax in our glossary page.
- Ask agent
- PARKINGDetails of how and where vehicles can be parked, and any associated costs.Read more about parking in our glossary page.
- Driveway,EV charging,Private
- GARDENA property has access to an outdoor space, which could be private or shared.
- Front garden,Private garden,Enclosed garden,Back garden
- ACCESSIBILITYHow a property has been adapted to meet the needs of vulnerable or disabled individuals.Read more about accessibility in our glossary page.
- Ask agent
Energy performance certificate - ask agent
Crawford Drive, Shotts, Lanarkshire, ML7
Add an important place to see how long it'd take to get there from our property listings.
__mins driving to your place
Get an instant, personalised result:
- Show sellers you’re serious
- Secure viewings faster with agents
- No impact on your credit score

Your mortgage
Notes
Staying secure when looking for property
Ensure you're up to date with our latest advice on how to avoid fraud or scams when looking for property online.
Visit our security centre to find out moreDisclaimer - Property reference 7CD. The information displayed about this property comprises a property advertisement. Rightmove.co.uk makes no warranty as to the accuracy or completeness of the advertisement or any linked or associated information, and Rightmove has no control over the content. This property advertisement does not constitute property particulars. The information is provided and maintained by Time2Move, West Lothian. Please contact the selling agent or developer directly to obtain any information which may be available under the terms of The Energy Performance of Buildings (Certificates and Inspections) (England and Wales) Regulations 2007 or the Home Report if in relation to a residential property in Scotland.
*This is the average speed from the provider with the fastest broadband package available at this postcode. The average speed displayed is based on the download speeds of at least 50% of customers at peak time (8pm to 10pm). Fibre/cable services at the postcode are subject to availability and may differ between properties within a postcode. Speeds can be affected by a range of technical and environmental factors. The speed at the property may be lower than that listed above. You can check the estimated speed and confirm availability to a property prior to purchasing on the broadband provider's website. Providers may increase charges. The information is provided and maintained by Decision Technologies Limited. **This is indicative only and based on a 2-person household with multiple devices and simultaneous usage. Broadband performance is affected by multiple factors including number of occupants and devices, simultaneous usage, router range etc. For more information speak to your broadband provider.
Map data ©OpenStreetMap contributors.




