
Overing Avenue, Great Waldingfield, Sudbury, Suffolk, CO10

- PROPERTY TYPE
Terraced
- BEDROOMS
2
- BATHROOMS
1
- SIZE
Ask agent
- TENUREDescribes how you own a property. There are different types of tenure - freehold, leasehold, and commonhold.Read more about tenure in our glossary page.
Ask agent
Key features
- Allocated parking
- Ground floor cloakroom
- Ideal for first-time buyers
- Modern interior
- Village location
- Popular estate
Description
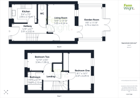
The entrance door leads to the hallway which has a staircase rising to the first floor and gives access to the kitchen, cloakroom and living room.
The kitchen has space for a washing machine and fridge/freezer, a built-in oven with four ring hob and overhead extractor fan, sink with drainer and a window to the front. The cloakroom comprises a WC and wash hand basin.
The living room has an understairs storage cupboard, a radiator and French doors leading to the conservatory which has a further set of French doors leading to the rear garden.
On the first floor there are two bedrooms and the family bathroom and the landing gives access to the airing cupboard which is shelved.
Bedroom one has built-in wardrobes with sliding mirrored doors and two windows to the rear. Bedroom two has a window to the front.
The family bathroom has tiled walls and comprises a panelled bath with overhead shower attachment, low level WC, wash hand basin and a window to the front.
Outside
To the front of the property is a path leading to the front door with shingled areas.
The rear garden is mostly laid to lawn with a pathway to the rear garden which in turn leads to a walkway and the allocated parking space.
Location
The village of Great Waldingfield is situated 2 miles from the thriving market town of Sudbury and is a sought-after residential village with good local amenities such as public house, general store/post office and a primary school.
The location of the village means it is popular with people who need to have regular access into Sudbury or Colchester via the A134 where there is a mainline railway station to London. The superb medieval village of Lavenham is some 5 miles to the north with its fine collection of historic houses, pubs, restaurants etc.
Directions
Please use postcode CO10 0RJ for Satnav.
Important Information
Council Tax Band – B EPC Rating - C
Services - We understand that mains water, gas, drainage and electricity are connected to the property.
Tenure - Freehold
Our ref - SUD250279
Agent's note
There is an Estate Management Charge of approximately £160 per year these charges are for the current year and maybe subject to change, all information should be checked by your solicitor.
Brochures
Particulars- COUNCIL TAXA payment made to your local authority in order to pay for local services like schools, libraries, and refuse collection. The amount you pay depends on the value of the property.Read more about council Tax in our glossary page.
- Ask agent
- PARKINGDetails of how and where vehicles can be parked, and any associated costs.Read more about parking in our glossary page.
- Yes
- GARDENA property has access to an outdoor space, which could be private or shared.
- Yes
- ACCESSIBILITYHow a property has been adapted to meet the needs of vulnerable or disabled individuals.Read more about accessibility in our glossary page.
- Ask agent
Overing Avenue, Great Waldingfield, Sudbury, Suffolk, CO10
Add an important place to see how long it'd take to get there from our property listings.
__mins driving to your place
Get an instant, personalised result:
- Show sellers you’re serious
- Secure viewings faster with agents
- No impact on your credit score
Your mortgage
Notes
Staying secure when looking for property
Ensure you're up to date with our latest advice on how to avoid fraud or scams when looking for property online.
Visit our security centre to find out moreDisclaimer - Property reference SUD250279. The information displayed about this property comprises a property advertisement. Rightmove.co.uk makes no warranty as to the accuracy or completeness of the advertisement or any linked or associated information, and Rightmove has no control over the content. This property advertisement does not constitute property particulars. The information is provided and maintained by Fenn Wright, Sudbury. Please contact the selling agent or developer directly to obtain any information which may be available under the terms of The Energy Performance of Buildings (Certificates and Inspections) (England and Wales) Regulations 2007 or the Home Report if in relation to a residential property in Scotland.
*This is the average speed from the provider with the fastest broadband package available at this postcode. The average speed displayed is based on the download speeds of at least 50% of customers at peak time (8pm to 10pm). Fibre/cable services at the postcode are subject to availability and may differ between properties within a postcode. Speeds can be affected by a range of technical and environmental factors. The speed at the property may be lower than that listed above. You can check the estimated speed and confirm availability to a property prior to purchasing on the broadband provider's website. Providers may increase charges. The information is provided and maintained by Decision Technologies Limited. **This is indicative only and based on a 2-person household with multiple devices and simultaneous usage. Broadband performance is affected by multiple factors including number of occupants and devices, simultaneous usage, router range etc. For more information speak to your broadband provider.
Map data ©OpenStreetMap contributors.






