Springwell Road, Durham, Durham, DH1 4LR

- PROPERTY TYPE
Detached Bungalow
- BEDROOMS
4
- BATHROOMS
2
- SIZE
Ask agent
- TENUREDescribes how you own a property. There are different types of tenure - freehold, leasehold, and commonhold.Read more about tenure in our glossary page.
Freehold
Key features
- Great Location
- No Chain
- Private Garden
- Driveway and Garage
- Great Position and Plot
- Four Bedrooms
Description
The property is entered through the front door to a welcoming and spacious hallway, setting the tone for the accommodation throughout. The hall provides access to the principal ground floor rooms and offers storage solutions ideal for coats and boots.
Situated to the front of the property, the main living room is generously proportioned, featuring an attractive bay window that allows an abundance of natural light to flood the room. This inviting space with the benefit of a feature fireplace, is ideal for both everyday living and entertaining.
Positioned to the rear of the property, the modern fitted kitchen is well equipped with a range of contemporary wall and base units, with generous worktop space that is set as a breakfast bar. With space for freestanding appliances, and a sink unit that overlooks the rear garden. The kitchen opens seamlessly into the dining area, which is enhanced by a striking semi-vaulted ceiling, skylight and patio doors leading directly to the rear garden. This superb open-plan space is perfect for family dining and social gatherings. A large utility room provides additional storage and worktop area, along with plumbing for appliances, keeping the kitchen clutter-free.
The ground floor offers two generous double bedrooms, both of which benefit from flexible use depending on buyer requirements. These rooms could equally serve as guest accommodation, home office or additional reception rooms. Bedroom 2, has a beautiful box bay window that perfectly sets the tranquility of the room.
A stylish and contemporary bathroom completes the ground floor, fitted with a modern three-piece suite comprising WC, hand basin and P-shape bath with waterfall shower over, finished to a high standard and fully tiled.
A wrought iron and oak banister leads up the L-shape staircase to the first floor landing that provides access to the remaining accommodation and enjoys a light and airy feel.
The main bedroom has a particularly impressive space, featuring skylights that allow natural light to pour in, creating a bright and tranquil retreat. The room offers excellent proportions and versatility.
A further well-proportioned double bedroom, ideal for family members or guests, offering ample space for bedroom furniture.
The first-floor family bathroom is beautifully presented and fitted with a modern suite, providing a stylish and practical space to serve the upper floor. With a part built in bathtub with tiled surround, that has a mixer tap and shower head, a toilet and pedestal hand basin.
Externally, to the front of the property, a private driveway provides generous off-street parking for a few cars and leads to the double garage, offering further storage or secure parking.
To the rear, the property enjoys a low-maintenance garden lines with fencing and mature trees. Thoughtfully designed, with a combination of paved and decked areas, offering the perfect setting for outdoor dining, entertaining and relaxation whilst maintaining privacy.
Springwell Road is ideally located within comfortable walking distance of historic Durham City, offering access to a comprehensive range of professional, retail and recreational amenities. The area benefits from excellent transport links, including the regional rail network, and falls within the catchment area of several highly regarded primary and secondary schools, including Durham Johnston School and St Leonard’s.
This outstanding home offers spacious, flexible accommodation in one of Durham’s most desirable residential locations and represents an excellent opportunity for families and discerning purchasers alike.
Council Tax Band: E
Tenure: Freehold
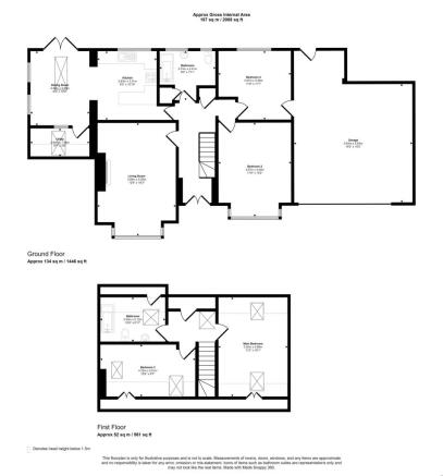
Entrance Hall
Enter through UPVC door into the entrance hallway, with tiled flooring, gas centrally heated radiator and access into the living room, kitchen, bathroom, bedrooms two and four and upstairs.
Living Room
5.55m x 3.85m
Spacious and cosy living room, with square bay window to the front elevation. Laminate flooring, gas centrally heated radiator and feature fireplace.
Kitchen
3.31m x 2.83m
Well-equipped kitchen with top and base units, new freestanding cooker and hob, new dishwasher, double glazed window overlooking the rear garden. The kitchen opens out into the dining room. Tiled flooring, colourful tiled backsplash.
Dining Room
3.65m x 2.99m
Spacious dining room with skylight, large doors opening out into the garden, and access into the utility. Gas centrally heated radiator and tiled flooring.
Utility Room
2.92m x 1.38m
Handy utility room, with washing machine and dryer, skylight, top and base units and laminate flooring.
Bathroom
2.74m x 2.41m
Modern bathroom with three piece suite, comprising of WC, hand basin and bath with shower over. Fully tiled floor and walls, along with two windows to the rear elevation and a gas centrally heated towel radiator.
Bedroom 2
4.62m x 3.57m
Huge double bedroom to the front of the property on the ground floor, with square bay window to the front elevation, carpet to the floor, gas centrally heated radiator.
Bedroom Four / Office
3.57m x 2.39m
Double bedroom to the back of the property, laminate flooring and access into the garage. Gas centrally heated radiator and window to the rear elevation.
Garage
5.83m x 5.83m
Huge garage with electric up and over. Access into the rear garden.
Bedroom One
4.89m x 3.4m
Large double bedroom with two skylights, laminate flooring and gas centrally heated radiator. Access into the eaves storage.
Bedroom Three
4.72m x 2.61m
Generously sized bedroom to the front of the property, with two skylights, laminate flooring, gas centrally heated radiator and access into the eaves storage.
Bathroom Two
3.2m x 2.12m
Three piece bathroom suite with skylight to the back of the property, gas centrally heated radiator, and tiled flooring. Tiled backsplash to the bath and sink.
Garden
Private and low-maintenance garden, thoughtfully laid out with a combination of paved and decked areas, offering the perfect setting for outdoor dining, entertaining and relaxation. To the front, the driveway provides generous off-street parking and leads to the double garage, offering further storage or secure parking.
Brochures
Brochure- COUNCIL TAXA payment made to your local authority in order to pay for local services like schools, libraries, and refuse collection. The amount you pay depends on the value of the property.Read more about council Tax in our glossary page.
- Band: E
- PARKINGDetails of how and where vehicles can be parked, and any associated costs.Read more about parking in our glossary page.
- Yes
- GARDENA property has access to an outdoor space, which could be private or shared.
- Yes
- ACCESSIBILITYHow a property has been adapted to meet the needs of vulnerable or disabled individuals.Read more about accessibility in our glossary page.
- Ask agent
Energy performance certificate - ask agent
Springwell Road, Durham, Durham, DH1 4LR
Add an important place to see how long it'd take to get there from our property listings.
__mins driving to your place
Get an instant, personalised result:
- Show sellers you’re serious
- Secure viewings faster with agents
- No impact on your credit score

Your mortgage
Notes
Staying secure when looking for property
Ensure you're up to date with our latest advice on how to avoid fraud or scams when looking for property online.
Visit our security centre to find out moreDisclaimer - Property reference 489770. The information displayed about this property comprises a property advertisement. Rightmove.co.uk makes no warranty as to the accuracy or completeness of the advertisement or any linked or associated information, and Rightmove has no control over the content. This property advertisement does not constitute property particulars. The information is provided and maintained by Pattinson Estate Agents, Gilesgate. Please contact the selling agent or developer directly to obtain any information which may be available under the terms of The Energy Performance of Buildings (Certificates and Inspections) (England and Wales) Regulations 2007 or the Home Report if in relation to a residential property in Scotland.
*This is the average speed from the provider with the fastest broadband package available at this postcode. The average speed displayed is based on the download speeds of at least 50% of customers at peak time (8pm to 10pm). Fibre/cable services at the postcode are subject to availability and may differ between properties within a postcode. Speeds can be affected by a range of technical and environmental factors. The speed at the property may be lower than that listed above. You can check the estimated speed and confirm availability to a property prior to purchasing on the broadband provider's website. Providers may increase charges. The information is provided and maintained by Decision Technologies Limited. **This is indicative only and based on a 2-person household with multiple devices and simultaneous usage. Broadband performance is affected by multiple factors including number of occupants and devices, simultaneous usage, router range etc. For more information speak to your broadband provider.
Map data ©OpenStreetMap contributors.



