3 bedroom semi-detached house for sale
North Street, Rotherfield, Crowborough, TN6 3LZ

- PROPERTY TYPE
Semi-Detached
- BEDROOMS
3
- BATHROOMS
2
- SIZE
Ask agent
- TENUREDescribes how you own a property. There are different types of tenure - freehold, leasehold, and commonhold.Read more about tenure in our glossary page.
Freehold
Key features
- PLEASE QUOTE REFERENCE JW0477 ON ALL ENQUIRIES
- EXTENDED VICTORIAN HOME
- CLOSE TO LOCAL AMENITIES
- HOME OFFICE
- WORKSHOP
- CONTEMPORARY & CHARACTER FEATURES
- OFF STREET PARKING
- TWO BATHROOMS
Description
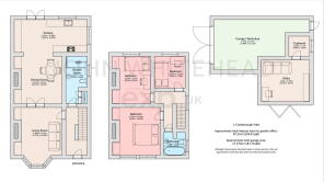
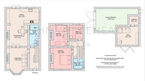
Introducing this stunning three-bedroom semi-detached house, with an external home office and workshop, situated within close proximity to some fantastic local amenities on the high street. The property is within a short drive to Crowborough train station, boasts off street parking and is perfectly positioned for the excellent village school.
This beautifully presented Victorian home has an abundance of character with very stylish decor, whilst still delivering family-friendly living. The house has been finished to an impressive standard throughout, extended to the rear on the ground floor and would make a fantastic first-time purchase or family home. The accommodation comprises an impressive living room which oozes comfort, featuring a gorgeous bay-fronted window and a fireplace with a log burner for the cold winter evenings. The centre of the house has a wonderful and enticing open-plan dining space for entertaining friends which leads into a modern light kitchen. On the ground floor is a contemporary downstairs shower room.
Stairs rise to the first floor from the entrance hallway where the high standard of internal decoration is continued throughout. To the front of the house you will find a good size master bedroom, a second double bedroom is positioned directly behind, you will also find a single bedroom/office and a modern bathroom on this floor.
Externally there is a beautiful long landscaped garden which leads to a fantastic home office with bi-fold doors, you will also find a superb workshop/garage to the rear as well as an off-street parking space. This house has it all!
To truly appreciate this fabulous home viewing is strongly recommended!
PLEASE QUOTE REFERENCE JW0477 ON ALL ENQUIRIES
Important Information on Anti-Money Laundering Check
We are required by law to conduct Anti-Money Laundering checks on all parties involved in the sale or purchase of a property. We take the responsibility of this seriously in line with HMRC guidance in ensuring the accuracy and continuous monitoring of these checks. Our compliance partner, Move Butler, will carry out the initial checks on our behalf. They will contact you and where possible, a biometric check will be sent to you electronically only once your offer has been accepted.
As an applicant, you will be charged a non-refundable fee of £30 (inclusive of VAT) per buyer for these checks. The fee covers data collection, manual checking, and monitoring. You will need to pay this amount directly to Move Butler and complete all Anti-Money Laundering checks before your offer can be formally accepted.
You will also be required to provide evidence of how you intend to finance your purchase prior to formal acceptance of any offer.
Brochures
Brochure 1- COUNCIL TAXA payment made to your local authority in order to pay for local services like schools, libraries, and refuse collection. The amount you pay depends on the value of the property.Read more about council Tax in our glossary page.
- Band: D
- PARKINGDetails of how and where vehicles can be parked, and any associated costs.Read more about parking in our glossary page.
- Garage
- GARDENA property has access to an outdoor space, which could be private or shared.
- Yes
- ACCESSIBILITYHow a property has been adapted to meet the needs of vulnerable or disabled individuals.Read more about accessibility in our glossary page.
- Ask agent
North Street, Rotherfield, Crowborough, TN6 3LZ
Add an important place to see how long it'd take to get there from our property listings.
__mins driving to your place
Get an instant, personalised result:
- Show sellers you’re serious
- Secure viewings faster with agents
- No impact on your credit score
Your mortgage
Notes
Staying secure when looking for property
Ensure you're up to date with our latest advice on how to avoid fraud or scams when looking for property online.
Visit our security centre to find out moreDisclaimer - Property reference S899507. The information displayed about this property comprises a property advertisement. Rightmove.co.uk makes no warranty as to the accuracy or completeness of the advertisement or any linked or associated information, and Rightmove has no control over the content. This property advertisement does not constitute property particulars. The information is provided and maintained by John Whitehead Property, Powered by eXp UK, Tunbridge Wells & Tonbridge. Please contact the selling agent or developer directly to obtain any information which may be available under the terms of The Energy Performance of Buildings (Certificates and Inspections) (England and Wales) Regulations 2007 or the Home Report if in relation to a residential property in Scotland.
*This is the average speed from the provider with the fastest broadband package available at this postcode. The average speed displayed is based on the download speeds of at least 50% of customers at peak time (8pm to 10pm). Fibre/cable services at the postcode are subject to availability and may differ between properties within a postcode. Speeds can be affected by a range of technical and environmental factors. The speed at the property may be lower than that listed above. You can check the estimated speed and confirm availability to a property prior to purchasing on the broadband provider's website. Providers may increase charges. The information is provided and maintained by Decision Technologies Limited. **This is indicative only and based on a 2-person household with multiple devices and simultaneous usage. Broadband performance is affected by multiple factors including number of occupants and devices, simultaneous usage, router range etc. For more information speak to your broadband provider.
Map data ©OpenStreetMap contributors.




