
4 bedroom semi-detached house for sale
Sheridan Road, Worthing, BN14 8ET

- PROPERTY TYPE
Semi-Detached
- BEDROOMS
4
- BATHROOMS
2
- SIZE
Ask agent
- TENUREDescribes how you own a property. There are different types of tenure - freehold, leasehold, and commonhold.Read more about tenure in our glossary page.
Freehold
Key features
- Ample Off Road Parking
- Large South Facing Rear Garden
- Close To Local Shops, Amenities & Mainline Train Station
- Dual Aspect Loft Conversion
- Two Contemporary Bathroom Suites
- Substantial Rear Extension With Open Plan Kitchen/Diner
- Very Well Presented Throughout
- Ground Floor W/C
- Four Bedrooms
- Extended Semi Detached Family Home
Description
We are delighted to offer for sale this extremely well presented and rarely available semi detached family home, situated in the highly sought after area of Broadwater close to local shops, amenities, schools and mainline train station. The property boasts four generously sized bedrooms, a large open plan kitchen/diner with separate living room, ground floor w/c, two contemporary bathroom suites, substantial south facing rear garden and ample off road parking.
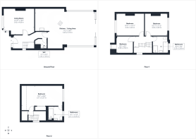
Internal The covered front door opens into a welcoming entrance hall, providing access to all ground-floor rooms, stairs rising to the first floor, and a convenient area for hanging coats and storing shoes. Positioned at the front of the property is the bay-fronted living room, which is separate from the open-plan space and features a log burner, creating a cosy snug during the winter months. Situated at the rear of the property and measuring a substantial 17'2" x 30'1", is the open-plan kitchen/diner. This space has been thoughtfully designed to serve as the home’s main entertaining hub. The kitchen features a range of blue floor-mounted units paired with white gloss wall units, along with integrated appliances including an oven, microwave, dishwasher, fridge-freezer, and an induction hob situated on the island. The island has been strategically positioned at the edge of where living room furniture would sit, allowing you to cook while comfortably chatting with guests. The extension benefits from a self-cleaning glass roof, maximising the south-facing aspect and providing ample space for large living or dining room furniture. The ground-floor W/C includes a toilet and hand wash basin, as well as a cupboard discreetly housing the washing machine. To the first floor are three bedrooms: two generous doubles and a third that accommodates a large single bed or can be set up as a home office. The principal family bathroom is also located on this floor and features a contemporary four-piece suite, including a walk-in shower, bath, toilet, and floating hand wash basin. The second floor comprises the main bedroom, measuring 10'2" x 20'6", along with an en suite. This bedroom benefits from dual-aspect views and access to eaves storage cupboards. The en suite is fitted with a walk-in shower and a vanity unit incorporating a toilet and hand wash basin.
External To the front of this imposing home is a newly finished resin driveway, accessed via a dropped kerb and providing off road parking for multiple vehicles. The front is enclosed on both sides of the boundaries by hedged walls. The property boasts a substantial rear garden which faces south and has been cleverly designed to allow for different areas of usage. The top of the garden has a curved decked area with a pergola for outdoor seating, the bottom of the garden also has a raised decked area giving an ideal spot to host a BBQ, with the rest of the garden being laid to lawn and all enclosed with fences lining both boundaries.
Situated Positioned in this extremely desirable road in the Willmore Phillips district of Broadwater, this family home is approximately 0.7 miles to Worthing town centre with its comprehensive shopping amenities, restaurants, pubs, cinemas, theatres and leisure facilities. East Worthing and Worthing mainline train stations are both approximately half a mile away. Bus services run nearby and is positioned within a good school catchment area. Offering easy access to the A27 and A24, this accessible and convenient location is highly desirable.
Council Tax Band D
- COUNCIL TAXA payment made to your local authority in order to pay for local services like schools, libraries, and refuse collection. The amount you pay depends on the value of the property.Read more about council Tax in our glossary page.
- Band: D
- PARKINGDetails of how and where vehicles can be parked, and any associated costs.Read more about parking in our glossary page.
- Yes
- GARDENA property has access to an outdoor space, which could be private or shared.
- Yes
- ACCESSIBILITYHow a property has been adapted to meet the needs of vulnerable or disabled individuals.Read more about accessibility in our glossary page.
- Ask agent
Energy performance certificate - ask agent
Sheridan Road, Worthing, BN14 8ET
Add an important place to see how long it'd take to get there from our property listings.
__mins driving to your place
Get an instant, personalised result:
- Show sellers you’re serious
- Secure viewings faster with agents
- No impact on your credit score
Your mortgage
Notes
Staying secure when looking for property
Ensure you're up to date with our latest advice on how to avoid fraud or scams when looking for property online.
Visit our security centre to find out moreDisclaimer - Property reference S1531635. The information displayed about this property comprises a property advertisement. Rightmove.co.uk makes no warranty as to the accuracy or completeness of the advertisement or any linked or associated information, and Rightmove has no control over the content. This property advertisement does not constitute property particulars. The information is provided and maintained by Jacobs Steel, Worthing. Please contact the selling agent or developer directly to obtain any information which may be available under the terms of The Energy Performance of Buildings (Certificates and Inspections) (England and Wales) Regulations 2007 or the Home Report if in relation to a residential property in Scotland.
*This is the average speed from the provider with the fastest broadband package available at this postcode. The average speed displayed is based on the download speeds of at least 50% of customers at peak time (8pm to 10pm). Fibre/cable services at the postcode are subject to availability and may differ between properties within a postcode. Speeds can be affected by a range of technical and environmental factors. The speed at the property may be lower than that listed above. You can check the estimated speed and confirm availability to a property prior to purchasing on the broadband provider's website. Providers may increase charges. The information is provided and maintained by Decision Technologies Limited. **This is indicative only and based on a 2-person household with multiple devices and simultaneous usage. Broadband performance is affected by multiple factors including number of occupants and devices, simultaneous usage, router range etc. For more information speak to your broadband provider.
Map data ©OpenStreetMap contributors.






