
6 bedroom detached house for sale
Station Gardens, Scholes, Leeds, West Yorkshire, LS15

- PROPERTY TYPE
Detached
- BEDROOMS
6
- BATHROOMS
3
- SIZE
2,200 sq ft
204 sq m
- TENUREDescribes how you own a property. There are different types of tenure - freehold, leasehold, and commonhold.Read more about tenure in our glossary page.
Freehold
Key features
- Prestigious Arncliffe Homes Development
- Six Bedroom Detached Family Home
- Three Bathrooms Including Master En-Suite
- Driveway & Double Garage
- Award Winning Location 'In Bloom'
- Cul-De-Sac Position
Description
Tucked away in a peaceful corner of a quiet cul-de-sac, this stunning six-bedroom detached home offers space, privacy, and executive living in one of Scholes’ most desirable locations. Built by the highly regarded Arncliffe Homes as part of an exclusive development of just ten bespoke properties, this substantial family home spans approximately 2,200 sq ft across three well-designed floors. With a thoughtful layout and high-quality finish throughout, it’s a rare opportunity to own a spacious, modern home in a charming and award-winning village.
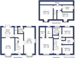
The ground floor boasts a welcoming entrance hall, a generous sitting room, a separate family room, and a large open-plan kitchen diner that is perfect for entertaining. A utility room completes the practical ground floor layout. The first floor offers four bedrooms, including a luxurious master bedroom with en-suite and walk in wardrobe, two further double bedrooms, a versatile fourth bedroom/study, and a stylish house bathroom. On the second floor, you'll find a large double bedroom, a further good-sized bedroom, and a modern shower room ideal for guests or growing teens.
This home is perfectly positioned in a quiet, private plot that is not overlooked to the rear, ensuring peace and seclusion. It also enjoys excellent transport links to Leeds and York, as well as quick access to the A64 and motorway network. Families will appreciate being in the catchment area for highly regarded local schools, including Scholes (Elmet) Primary School, Boston Spa Academy, and Tadcaster Grammar School. This is a home that truly caters to every stage of family life.
The village of Scholes is renowned for its community spirit and superb amenities, including a library, children’s playground, tennis courts, a sports pavilion, bowling and cricket clubs, churches, and a lively village hall. Community groups for all ages help create a welcoming and active environment. With its well-maintained surroundings and multiple “In Bloom” awards, Scholes is not just a place to live, it’s a lifestyle. This beautiful home presents a unique opportunity to become part of this thriving and picturesque village.
Local Authority & Council Tax Band:
• Leeds City Council,
• Council Tax Band F
Tenure, Services & Parking:
• Freehold
• All mains services are installed
• Driveway & Double Garage
Internet & Mobile Coverage:
For information on Internet and Mobile coverage access the Ofcom website from this link
Flooding:
For information on flood risks please use this link Check for flooding in England - GOV.UK
Brochures
Particulars- COUNCIL TAXA payment made to your local authority in order to pay for local services like schools, libraries, and refuse collection. The amount you pay depends on the value of the property.Read more about council Tax in our glossary page.
- Band: F
- PARKINGDetails of how and where vehicles can be parked, and any associated costs.Read more about parking in our glossary page.
- Garage,Driveway
- GARDENA property has access to an outdoor space, which could be private or shared.
- Ask agent
- ACCESSIBILITYHow a property has been adapted to meet the needs of vulnerable or disabled individuals.Read more about accessibility in our glossary page.
- Ask agent
Station Gardens, Scholes, Leeds, West Yorkshire, LS15
Add an important place to see how long it'd take to get there from our property listings.
__mins driving to your place
Get an instant, personalised result:
- Show sellers you’re serious
- Secure viewings faster with agents
- No impact on your credit score
Your mortgage
Notes
Staying secure when looking for property
Ensure you're up to date with our latest advice on how to avoid fraud or scams when looking for property online.
Visit our security centre to find out moreDisclaimer - Property reference RIP250182. The information displayed about this property comprises a property advertisement. Rightmove.co.uk makes no warranty as to the accuracy or completeness of the advertisement or any linked or associated information, and Rightmove has no control over the content. This property advertisement does not constitute property particulars. The information is provided and maintained by Dacre Son & Hartley, Wetherby. Please contact the selling agent or developer directly to obtain any information which may be available under the terms of The Energy Performance of Buildings (Certificates and Inspections) (England and Wales) Regulations 2007 or the Home Report if in relation to a residential property in Scotland.
*This is the average speed from the provider with the fastest broadband package available at this postcode. The average speed displayed is based on the download speeds of at least 50% of customers at peak time (8pm to 10pm). Fibre/cable services at the postcode are subject to availability and may differ between properties within a postcode. Speeds can be affected by a range of technical and environmental factors. The speed at the property may be lower than that listed above. You can check the estimated speed and confirm availability to a property prior to purchasing on the broadband provider's website. Providers may increase charges. The information is provided and maintained by Decision Technologies Limited. **This is indicative only and based on a 2-person household with multiple devices and simultaneous usage. Broadband performance is affected by multiple factors including number of occupants and devices, simultaneous usage, router range etc. For more information speak to your broadband provider.
Map data ©OpenStreetMap contributors.







