
45, Sunningdale Drive, Onchan

- PROPERTY TYPE
Semi-Detached
- BEDROOMS
3
- BATHROOMS
1
- SIZE
Ask agent
- TENUREDescribes how you own a property. There are different types of tenure - freehold, leasehold, and commonhold.Read more about tenure in our glossary page.
Ask agent
Key features
- Beautifully refurbished traditional semi detached home which has been extensively refurbished in 2025 and is offered for sale with no onward chain
- Situated in a convenient location of Onchan
- Walking distance to local shops, Port Jack Glen and centre of Onchan
- The property benefits from the following works completed in 2025 re-wired, re-plastered, new kitchen, new bathroom, new separate WC, new carpets and herringbone flooring
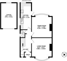
- Entrance porch with access to a welcoming entrance hallway complemented by a storage cupboard and a cloakroom (WC)
- 2 Separate reception rooms both enjoying feature curved bay windows and a comprise a living room and a dining/family room
- Modern separate kitchen and a shower room
- 3 Bedrooms, large boarded attic space (scope for conversion to a fourth bedrooms as some neighbouring properties have subject to all required regulations and planning permissions)
- Externally the rear garden is mainly laid to lawn with a large patio area and a greenhouse
- Extensive driveway with parking for multiple cars in tandem and access to a good size detached garage
Description
This beautifully refurbished traditional semi-detached home has been extensively renovated in 2025 and is offered for sale with no onward chain, providing a superb turnkey opportunity for buyers seeking a character property finished to a high modern standard.
Situated in a convenient and popular location in Onchan, the property is within walking distance of local shops, Port Jack Glen and the centre of the village, making it ideal for families and professionals alike. The comprehensive refurbishment works completed in 2025 include full re-wiring, re-plastering, a new kitchen, new bathroom, new separate WC, new carpets and herringbone flooring.
The accommodation begins with an entrance porch leading into a welcoming entrance hallway, complemented by a storage cupboard and cloakroom (WC). There are two elegant reception rooms, both enjoying feature curved bay windows, comprising a stylish living room and a dining/family room, ideal for entertaining and everyday living.
There is a modern separate kitchen and a contemporary shower room. There are three bedrooms, along with loft access to a large boarded attic space, offering excellent potential for conversion into a fourth bedroom, as seen in neighbouring properties (subject to the necessary consents).
Externally, the property boasts a generous rear garden, mainly laid to lawn with a large patio area and greenhouse. To the front/side, an extensive driveway provides parking for multiple cars in tandem and leads to a good-sized detached garage.
A superbly presented period home combining character, quality and future potential, all within a highly convenient Onchan location.
Inclusions All fitted floor coverings
Appliances Oven and 4 ring induction hob
Tenure Freehold
Rates Treasury tel - and Onchan Commissioners tel -
Heating Gas
Windows uPVC double glazing
- COUNCIL TAXA payment made to your local authority in order to pay for local services like schools, libraries, and refuse collection. The amount you pay depends on the value of the property.Read more about council Tax in our glossary page.
- Ask agent
- PARKINGDetails of how and where vehicles can be parked, and any associated costs.Read more about parking in our glossary page.
- Yes
- GARDENA property has access to an outdoor space, which could be private or shared.
- Yes
- ACCESSIBILITYHow a property has been adapted to meet the needs of vulnerable or disabled individuals.Read more about accessibility in our glossary page.
- Ask agent
Energy performance certificate - ask agent
45, Sunningdale Drive, Onchan
Add an important place to see how long it'd take to get there from our property listings.
__mins driving to your place
Get an instant, personalised result:
- Show sellers you’re serious
- Secure viewings faster with agents
- No impact on your credit score
Your mortgage
Notes
Staying secure when looking for property
Ensure you're up to date with our latest advice on how to avoid fraud or scams when looking for property online.
Visit our security centre to find out moreDisclaimer - Property reference 7072. The information displayed about this property comprises a property advertisement. Rightmove.co.uk makes no warranty as to the accuracy or completeness of the advertisement or any linked or associated information, and Rightmove has no control over the content. This property advertisement does not constitute property particulars. The information is provided and maintained by Garforth Gray, Isle of Man. Please contact the selling agent or developer directly to obtain any information which may be available under the terms of The Energy Performance of Buildings (Certificates and Inspections) (England and Wales) Regulations 2007 or the Home Report if in relation to a residential property in Scotland.
*This is the average speed from the provider with the fastest broadband package available at this postcode. The average speed displayed is based on the download speeds of at least 50% of customers at peak time (8pm to 10pm). Fibre/cable services at the postcode are subject to availability and may differ between properties within a postcode. Speeds can be affected by a range of technical and environmental factors. The speed at the property may be lower than that listed above. You can check the estimated speed and confirm availability to a property prior to purchasing on the broadband provider's website. Providers may increase charges. The information is provided and maintained by Decision Technologies Limited. **This is indicative only and based on a 2-person household with multiple devices and simultaneous usage. Broadband performance is affected by multiple factors including number of occupants and devices, simultaneous usage, router range etc. For more information speak to your broadband provider.
Map data ©OpenStreetMap contributors.






