
4 bedroom detached house for sale
Balvaird Avenue, Scone, Perth, PH2

- PROPERTY TYPE
Detached
- BEDROOMS
4
- SIZE
Ask developer
- TENUREDescribes how you own a property. There are different types of tenure - freehold, leasehold, and commonhold.Read more about tenure in our glossary page.
Ask developer
Key features
- Single integral garage with tiled roof
- Front aspect lounge with bright triple window
- Open plan kitchen/dining room
- Access from the kitchen/dining room to the rear garden
- Central cupboard storage from kitchen/dining room
- Separate rear door exit from utility room
- Cloakroom includes obscure opening window
- En suite shower room to bedroom 1
Description
The Leith is a superb four-bedroom detached family home offering great value for money. There's a spacious utility room, downstairs cloakroom, en suite master bedroom and a single garage included in the layout. The large kitchen/dining area lends itself to family meals as well as entertaining friends, with French doors opening onto the rear garden.
Additional Information
- Tenure: Heritable
- Council tax band: Not made available by local authority until post-occupation
Parking - Single Garage
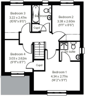
Room Dimensions
- Kitchen/Dining room - 5.06 x 2.94 metre
- Living room - 3.22 x 5.06 metre
- Bedroom 1 - 2.77 x 4.34 metre
- Bedroom 2 - 2.6 x 3.38 metre
- Bedroom 3 - 2.47 x 3.22 metre
- Bedroom 4 - 2.62 x 3.03 metre
- COUNCIL TAXA payment made to your local authority in order to pay for local services like schools, libraries, and refuse collection. The amount you pay depends on the value of the property.Read more about council Tax in our glossary page.
- Ask developer
- PARKINGDetails of how and where vehicles can be parked, and any associated costs.Read more about parking in our glossary page.
- Yes
- GARDENA property has access to an outdoor space, which could be private or shared.
- Yes
- ACCESSIBILITYHow a property has been adapted to meet the needs of vulnerable or disabled individuals.Read more about accessibility in our glossary page.
- Ask developer
Energy performance certificate - ask developer
Balvaird Avenue, Scone, Perth, PH2
Add an important place to see how long it'd take to get there from our property listings.
__mins driving to your place
Get an instant, personalised result:
- Show sellers you’re serious
- Secure viewings faster with agents
- No impact on your credit score
Development features
- Excellent transport links
- Easy amenities
- Beautiful rural setting
About Persimmon Homes North Scotland
Welcome to Palace View ? enjoy village charm with woodland views
Set on the edge of the historic village of Scone near Perth, Palace View offers an exciting range of two, three and four-bedroom new homes. With tree-lined streets, countryside views and excellent links to nearby cities, this is the perfect setting for first-time buyers, families and downsizers alike.
Everyday life made easy in Perth and Kinross
Palace View brings you the balance of peaceful village living with everyday essentials close by. Just across the River Tay in Perth, you?ll find popular supermarkets including Marks & Spencer and Asda, along with a wide choice of shops, cafés and services. The community atmosphere of Scone makes it an inviting place to put down roots, while nearby schools and leisure facilities add to the convenience.
Easy travel links to Dundee, Edinburgh and Glasgow
With the new Cross Tay Link Road, plus the A93 and A94, travelling by car is straightforward for daily commuting. Perth train station is just a 15-minute drive away, offering services across Scotland, while regular buses from Scone keep local travel simple. Dundee, Edinburgh and Glasgow are all within easy reach.
Scone: a location full of history and nature
Living here means you?ll have the magnificent Scone Palace on your doorstep, offering stunning grounds and woodland walks to enjoy year-round. The nearby Murrayshall Golf Course & Country Estate is another highlight, perfect for weekend recreation. Whether you?re looking for fresh air, history or relaxation, this location gives you it all.
This development offers the following schemes:
- Part Exchange your Home
- Home Change
- Early Bird Scheme
- Deposit Boost: 5% Deposit Contribution Scheme
- Own New Rate Reducer Scheme
Schemes are available on selected plots only, subject to status, terms and conditions apply. Contact the development for latest information.
Your mortgage
Notes
Staying secure when looking for property
Ensure you're up to date with our latest advice on how to avoid fraud or scams when looking for property online.
Visit our security centre to find out moreDisclaimer - Property reference 4_40. The information displayed about this property comprises a property advertisement. Rightmove.co.uk makes no warranty as to the accuracy or completeness of the advertisement or any linked or associated information, and Rightmove has no control over the content. This property advertisement does not constitute property particulars. The information is provided and maintained by Persimmon Homes North Scotland. Please contact the selling agent or developer directly to obtain any information which may be available under the terms of The Energy Performance of Buildings (Certificates and Inspections) (England and Wales) Regulations 2007 or the Home Report if in relation to a residential property in Scotland.
*This is the average speed from the provider with the fastest broadband package available at this postcode. The average speed displayed is based on the download speeds of at least 50% of customers at peak time (8pm to 10pm). Fibre/cable services at the postcode are subject to availability and may differ between properties within a postcode. Speeds can be affected by a range of technical and environmental factors. The speed at the property may be lower than that listed above. You can check the estimated speed and confirm availability to a property prior to purchasing on the broadband provider's website. Providers may increase charges. The information is provided and maintained by Decision Technologies Limited. **This is indicative only and based on a 2-person household with multiple devices and simultaneous usage. Broadband performance is affected by multiple factors including number of occupants and devices, simultaneous usage, router range etc. For more information speak to your broadband provider.
Map data ©OpenStreetMap contributors.






