3 bedroom semi-detached house for sale
Plots 78 and 79, Rye Mews, Waterbeach, Cambs, Waterbeach, Cambridge, Cambridgeshire, CB25 9PG

- PROPERTY TYPE
Semi-Detached
- BEDROOMS
3
- BATHROOMS
2
- SIZE
Ask agent
Key features
- Integral Garage
- Air Source Heat Pump
- Fitted kitchen with built in oven, hob and extractor
- En-Suite to master bedroom
- Fitted floor coverings throughout
- Terrace Garden
Description
Shares available from 25% to 75%.
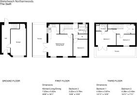
The Swift is a contemporary three bedroom house offering flexible living. On the ground floor you will find a single garage and hallway giving access to the first floor.
The first floor includes an open plan kitchen/dining/living room with double doors to a terrace garden. Also on the first floor is a double bedroom, family bathroom and storage cupboard.
On the second floor is the Master Bedroom with en-suite, a single bedroom and storage cupboard.
Shared Ownership
Shared ownership provides an affordable way for you to become a homeowner, by buying a share in a new home and paying a subsidised rent on the remaining share. You can then purchase further shares in your home, up to 100%, which we call "staircasing". As further shares are purchased the rent reduces accordingly.
The rent payable based on a 10% share would be £1,124.06 pm (based on a Full Market Value of £545,000). Plus, you will pay an estimated service charge of £66.06 pm.
You will need a minimum 5% deposit for mortgage purposes and funds to pay for solicitor fees, moving costs & furnishings.
Location
Located in an area which allows you to discover the beauty of England's countryside, where amazing architecture blends effortlessly with luscious landscapes.
Whether walking or cycling is your thing, this is a place you just have to explore. Waterbeach - inspired by the former barracks and airfields it sits upon – is a development built for the future.
Also boasting a rich heritage, the area has one of the most prestigious universities in the country, and the River Cam winds its way through the county which is a captivating destination for all.
With ecology at its heart, Waterbeach has a 23- acre lake, wetlands and allotments. Dedicated pathways have been created to allow you to enjoy wildlife in its natural habitats.
Blessed with transport links, Waterbeach has been designed with sustainability in mind. Whether walking, cycling, or the sustainable travel hub, you’re connected to it all.
The local sports hall and studio has everything from football to yoga, while there's an annual summer event to showcase work from artists of all abilities as well as pop-up food festivals. Waterbeach has something for everyone.
Setting up home in the Waterbeach community will present lots of opportunities for young minds to grow, with three new primary schools planned for the site, as well as a secondary
school.
These homes are advertised on behalf of Amplius. Images show view home. Specification is subject to change. The site plan is for plot location purposes only. Eligibility rules apply. A reservation fee is payable if you are offered a home. Images used for the flooring banner are not plot specific and are intended as a demonstration only.
Estimated Council Tax Band - D
Brochures
Brochure 1- COUNCIL TAXA payment made to your local authority in order to pay for local services like schools, libraries, and refuse collection. The amount you pay depends on the value of the property.Read more about council Tax in our glossary page.
- Ask agent
- PARKINGDetails of how and where vehicles can be parked, and any associated costs.Read more about parking in our glossary page.
- Yes
- GARDENA property has access to an outdoor space, which could be private or shared.
- Yes
- ACCESSIBILITYHow a property has been adapted to meet the needs of vulnerable or disabled individuals.Read more about accessibility in our glossary page.
- Ask agent
Plots 78 and 79, Rye Mews, Waterbeach, Cambs, Waterbeach, Cambridge, Cambridgeshire, CB25 9PG
Add an important place to see how long it'd take to get there from our property listings.
__mins driving to your place
Get an instant, personalised result:
- Show sellers you’re serious
- Secure viewings faster with agents
- No impact on your credit score
Your mortgage
Notes
Staying secure when looking for property
Ensure you're up to date with our latest advice on how to avoid fraud or scams when looking for property online.
Visit our security centre to find out moreDisclaimer - Property reference TSOS001290. The information displayed about this property comprises a property advertisement. Rightmove.co.uk makes no warranty as to the accuracy or completeness of the advertisement or any linked or associated information, and Rightmove has no control over the content. This property advertisement does not constitute property particulars. The information is provided and maintained by The Shared Ownership Shop, Horton. Please contact the selling agent or developer directly to obtain any information which may be available under the terms of The Energy Performance of Buildings (Certificates and Inspections) (England and Wales) Regulations 2007 or the Home Report if in relation to a residential property in Scotland.
*This is the average speed from the provider with the fastest broadband package available at this postcode. The average speed displayed is based on the download speeds of at least 50% of customers at peak time (8pm to 10pm). Fibre/cable services at the postcode are subject to availability and may differ between properties within a postcode. Speeds can be affected by a range of technical and environmental factors. The speed at the property may be lower than that listed above. You can check the estimated speed and confirm availability to a property prior to purchasing on the broadband provider's website. Providers may increase charges. The information is provided and maintained by Decision Technologies Limited. **This is indicative only and based on a 2-person household with multiple devices and simultaneous usage. Broadband performance is affected by multiple factors including number of occupants and devices, simultaneous usage, router range etc. For more information speak to your broadband provider.
Map data ©OpenStreetMap contributors.




