
Primrose Lane, Newcastle Upon Tyne, NE13 9ET

- PROPERTY TYPE
Detached
- BEDROOMS
3
- SIZE
Ask developer
- TENUREDescribes how you own a property. There are different types of tenure - freehold, leasehold, and commonhold.Read more about tenure in our glossary page.
Freehold
Key features
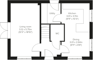
- Open plan kitchen/dining room
- Utility room
- Spacious living room with French doors to garden
- Downstairs WC
- En suite to bedroom one
- Family bathroom
- Storage space
- Energy efficient
Description
A thoughtfully-designed three-bedroom family home with much to offer, the Barndale has a bright and modern open plan kitchen/dining room leading to a handy utility room. The spacious living room has French doors leading into the garden. The inner hallway, downstairs WC and cupboards take care of everyday storage. Plus there’s an en suite to bedroom one and a family bathroom.
Additional Information
- Tenure: Freehold
- Council tax band: Not made available by local authority until post-occupation
Parking - Single Garage
Room Dimensions
- Kitchen - 3.01 x 3.11 metre
- Dining - 3.01 x 2.64 metre
- Living room - 3.12 x 5.75 metre
- Bedroom 1 - 2.88 x 3.75 metre
- Bedroom 2 - 4.19 x 2.96 metre
- Bedroom 3 - 3.14 x 2.7 metre
- COUNCIL TAXA payment made to your local authority in order to pay for local services like schools, libraries, and refuse collection. The amount you pay depends on the value of the property.Read more about council Tax in our glossary page.
- Ask developer
- PARKINGDetails of how and where vehicles can be parked, and any associated costs.Read more about parking in our glossary page.
- Yes
- GARDENA property has access to an outdoor space, which could be private or shared.
- Yes
- ACCESSIBILITYHow a property has been adapted to meet the needs of vulnerable or disabled individuals.Read more about accessibility in our glossary page.
- Ask developer
Energy performance certificate - ask developer
- Choice of 3, 4 and 5 bedroom homes
- Choice of 2, 3, 4 and 5-bedroom houses, and 2-bedroom apartments
- Excellent range of schools nearby
- Proximity to Newcastle city centre and transport links
Primrose Lane, Newcastle Upon Tyne, NE13 9ET
Add an important place to see how long it'd take to get there from our property listings.
__mins driving to your place
Get an instant, personalised result:
- Show sellers you’re serious
- Secure viewings faster with agents
- No impact on your credit score
About Persimmon Homes
Make your move to The Maples – modern new houses for sale in Newcastle Great Park
Set within the welcoming community of Newcastle Great Park, The Maples offers a collection of two, three and four-bedroom stylish new homes. With energy-efficient designs, green open space and a family-friendly feel, it’s a place where everyday life feels easy, connected and full of possibility.
New builds in Newcastle
These thoughtfully designed homes are surrounded by nature, with open green space, a large play area and peaceful walking routes on your doorstep. Whether it’s morning strolls or after-school adventures, The Maples brings a sense of calm while keeping you close to everything you need for busy modern life.
Excellent transport links to Newcastle upon Tyne and beyond
Perfectly placed for travel, The Maples sits close to the A1, offering easy connections across the region. Newcastle upon Tyne city centre is within easy reach, while Newcastle International Airport is just 10 minutes away, making these houses for sale in Newcastle ideal for both commuting and getting away.
Everything you need on your doorstep
From supermarkets and cafés to local schools and leisure facilities, nearby Gosforth offers plenty of choice. There's an even greater choice of amenities a stone's throw away in Newcastle city centre, giving you the best of both worlds.
Explore the outdoors in Newcastle Great Park
Nature is never far from these new builds in Newcastle. Enjoy nearby green spaces like Gosforth Nature Reserve and Weetslade Country Park, or plan a day by the sea at Whitley Bay, just 30 minutes away. It’s the perfect setting to unwind, explore and make the most of your weekends.
Ready to make your move?
To discover more about our houses for sale in Newcastle and explore your options at The Maples, speak to one of our friendly sales advisors today and start your new build journey.
This development offers the following schemes:
- Part Exchange your home
- Home Change
- Own New Rate Reducer Scheme
- New Build Boost
Schemes are available on selected plots only, subject to status, terms and conditions apply. Contact the development for latest information.
Affordability
Notes
Staying secure when looking for property
Ensure you're up to date with our latest advice on how to avoid fraud or scams when looking for property online.
Visit our security centre to find out moreDisclaimer - Property reference 3_403. The information displayed about this property comprises a property advertisement. Rightmove.co.uk makes no warranty as to the accuracy or completeness of the advertisement or any linked or associated information, and Rightmove has no control over the content. This property advertisement does not constitute property particulars. The information is provided and maintained by Persimmon Homes. Please contact the selling agent or developer directly to obtain any information which may be available under the terms of The Energy Performance of Buildings (Certificates and Inspections) (England and Wales) Regulations 2007 or the Home Report if in relation to a residential property in Scotland.
*This is the average speed from the provider with the fastest broadband package available at this postcode. The average speed displayed is based on the download speeds of at least 50% of customers at peak time (8pm to 10pm). Fibre/cable services at the postcode are subject to availability and may differ between properties within a postcode. Speeds can be affected by a range of technical and environmental factors. The speed at the property may be lower than that listed above. You can check the estimated speed and confirm availability to a property prior to purchasing on the broadband provider's website. Providers may increase charges. The information is provided and maintained by Decision Technologies Limited. **This is indicative only and based on a 2-person household with multiple devices and simultaneous usage. Broadband performance is affected by multiple factors including number of occupants and devices, simultaneous usage, router range etc. For more information speak to your broadband provider.
Map data ©OpenStreetMap contributors.






