
4 bedroom flat for sale
3 Bryanita Court, Church Road, Tiptree, Colchester, Essex CO5 0SU

- PROPERTY TYPE
Flat
- BEDROOMS
4
- BATHROOMS
2
- SIZE
Ask agent
Key features
- Popular Tiptree Village Location
- over 1000 sq ft of floor space with own entrance door
- 4 bedrooms (3 Doubles)
- 2 allocated parking spaces
- Cash Buyers only - 63 year Lease
- Possible split into 2 flats Subject to all necessary consents
- Guide price: £150,000
- For sale by livestream auction
- Unless previously sold or withdrawn prior
- 10:00am, Wednesday 11th February 2026
Description
FOR SALE BY LIVESTREAM AUCTION ON WEDNESDAY 11th FEBRUARY 2026 AT 10:00AM
TO REGISTER FOR LEGAL PACKS AND BIDDING INSTRUCTIONS PLEASE VISIT OUR WEBSITE
Of interest to cash buyers only, a deceptively large four bedroomed vacant leasehold first floor flat.
Situated in a village central location within a mixed use development this large flat offers over 1000 sq. ft of floorspace. the property requires some improvement/redecoration. The Lease has approximately 63 years remaining.
The property benefits from 2 allocated parking spaces.
The property may be suitable for conversion into two separate flats subject to all necessary consents
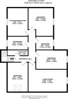
Ground Floor Entrance Door hall and stairs leading to
First Floor Landing witth doors off to
Lounge 19'9 x 15'1"
Kitchen/Diner 14'6" x 10'
Bedroom 1 14'6" x 12'9
Bedroom 2 15'1" x 10'7"
Bedroom 3 15'111" x 9'9"
Bedroom 4 9' x 6'10"
Bathroom/WC 10' x 7'3"
Shower Room 10' x 2'8"
Externally 2 Allocated Car Parking paces within communal car park
Leasehold information Term : 99 years from 1 October 1989 (63 years remaining)
Council Tax Band B
Tenure: Leasehold
Lease Details: 99 years from 1 October 1989
EPC Rating: E
Administration Fee: £1200 inc VAT payable on exchange of contracts.
Buyer's Premium Fee: £1560 inc VAT payable on exchange of contracts.
Disbursements: Please see the legal pack for any disbursements listed that may become payable by the purchaser on completion.
- COUNCIL TAXA payment made to your local authority in order to pay for local services like schools, libraries, and refuse collection. The amount you pay depends on the value of the property.Read more about council Tax in our glossary page.
- Band: B
- PARKINGDetails of how and where vehicles can be parked, and any associated costs.Read more about parking in our glossary page.
- Yes
- GARDENA property has access to an outdoor space, which could be private or shared.
- Ask agent
- ACCESSIBILITYHow a property has been adapted to meet the needs of vulnerable or disabled individuals.Read more about accessibility in our glossary page.
- Ask agent
Energy performance certificate - ask agent
3 Bryanita Court, Church Road, Tiptree, Colchester, Essex CO5 0SU
Add an important place to see how long it'd take to get there from our property listings.
__mins driving to your place
Get an instant, personalised result:
- Show sellers you’re serious
- Secure viewings faster with agents
- No impact on your credit score


Your mortgage
Notes
Staying secure when looking for property
Ensure you're up to date with our latest advice on how to avoid fraud or scams when looking for property online.
Visit our security centre to find out moreDisclaimer - Property reference 202412091430sq_w0ai_copy_2026-01-09_124743. The information displayed about this property comprises a property advertisement. Rightmove.co.uk makes no warranty as to the accuracy or completeness of the advertisement or any linked or associated information, and Rightmove has no control over the content. This property advertisement does not constitute property particulars. The information is provided and maintained by Auction House, East Anglia. Please contact the selling agent or developer directly to obtain any information which may be available under the terms of The Energy Performance of Buildings (Certificates and Inspections) (England and Wales) Regulations 2007 or the Home Report if in relation to a residential property in Scotland.
Auction Fees: The purchase of this property may include associated fees not listed here, as it is to be sold via auction. To find out more about the fees associated with this property please call Auction House, East Anglia on 01603 361653.
*Guide Price: An indication of a seller's minimum expectation at auction and given as a Guide Price or a range of Guide Prices. This is not necessarily the figure a property will sell for and is subject to change prior to the auction.
Reserve Price: Each auction property will be subject to a Reserve Price below which the property cannot be sold at auction. Normally the Reserve Price will be set within the range of Guide Prices or no more than 10% above a single Guide Price.
*This is the average speed from the provider with the fastest broadband package available at this postcode. The average speed displayed is based on the download speeds of at least 50% of customers at peak time (8pm to 10pm). Fibre/cable services at the postcode are subject to availability and may differ between properties within a postcode. Speeds can be affected by a range of technical and environmental factors. The speed at the property may be lower than that listed above. You can check the estimated speed and confirm availability to a property prior to purchasing on the broadband provider's website. Providers may increase charges. The information is provided and maintained by Decision Technologies Limited. **This is indicative only and based on a 2-person household with multiple devices and simultaneous usage. Broadband performance is affected by multiple factors including number of occupants and devices, simultaneous usage, router range etc. For more information speak to your broadband provider.
Map data ©OpenStreetMap contributors.





