Radnor Park Crescent, Folkestone

- PROPERTY TYPE
Ground Flat
- BEDROOMS
2
- BATHROOMS
1
- SIZE
Ask agent
Key features
- Lease 992 years remaining with a share of the freehold
- EPC C
- Council tax band A
- Service charge £1000.00 per annum
- Ground rent £0.00 per annum
- Two bedrooms
- Private garden
- No chain
- Cellar storage
- Walking distance to the station
Description
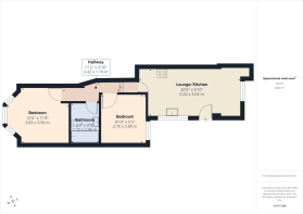
LOUNGE/KITCHEN 20' 5" x 9' 10" (6.22m x 3m)
BEDROOM 12' 6" x 11' 8" (3.81m x 3.56m)
BEDROOM 8' 10" x 9' 5" (2.69m x 2.87m)
SHOWER ROOM 5' 7" x 8' 0" (1.7m x 2.44m)
TENURE: We have been informed by our Vendor that the lease FOR THE PROPERTY has approximately 992 years remaining with a share of the freehold.
SERVICE CHARGE: We have been informed by our Vendor that the service charge is £1000.00 per annum.
GROUND RENT: We have been informed by our Vendor that the ground rent is £0.00 per annum.
COUNCIL TAX BAND: A
EPC: C
MONEY LAUNDERING REGULATIONS: Intended Buyers will be asked to produce photographic ID as well as a recent proof of address and we would ask for your cooperation in order that there will be no delay in agreeing the sale (subject to contract)
IMPORTANT NOTE TO BUYERS: Whilst we endeavour to make our sales details accurate and reliable, if there is any point which is of particular importance to you, please contact the office and we will be pleased to check the information. Do so, particularly if contemplating travelling some distance to view the property.
All measurements have been taken using a sonic / laser tape measure and therefore, may be subject to a small margin of error. All Measurements are Approximate. The mention of any appliances and/or services within these Sales Particulars does not imply they are in full and efficient working order.
Our team of highly qualified Financial Consultants can provide you with up to the minute information on many of the rates available. To arrange an appointment, telephone this office. YOUR HOME IS AT RISK IF YOU DO NOT KEEP UP REPAYMENTS ON A MORTGAGE OR OTHER LOANS SECURED ON IT. Full written quotation available on request. A suitable life policy may be required. Loans subject to status. Minimum age 18
- COUNCIL TAXA payment made to your local authority in order to pay for local services like schools, libraries, and refuse collection. The amount you pay depends on the value of the property.Read more about council Tax in our glossary page.
- Band: A
- PARKINGDetails of how and where vehicles can be parked, and any associated costs.Read more about parking in our glossary page.
- Ask agent
- GARDENA property has access to an outdoor space, which could be private or shared.
- Yes
- ACCESSIBILITYHow a property has been adapted to meet the needs of vulnerable or disabled individuals.Read more about accessibility in our glossary page.
- Ask agent
Radnor Park Crescent, Folkestone
Add an important place to see how long it'd take to get there from our property listings.
__mins driving to your place
Get an instant, personalised result:
- Show sellers you’re serious
- Secure viewings faster with agents
- No impact on your credit score
Your mortgage
Notes
Staying secure when looking for property
Ensure you're up to date with our latest advice on how to avoid fraud or scams when looking for property online.
Visit our security centre to find out moreDisclaimer - Property reference 100593006331. The information displayed about this property comprises a property advertisement. Rightmove.co.uk makes no warranty as to the accuracy or completeness of the advertisement or any linked or associated information, and Rightmove has no control over the content. This property advertisement does not constitute property particulars. The information is provided and maintained by Martin & Co, Folkestone. Please contact the selling agent or developer directly to obtain any information which may be available under the terms of The Energy Performance of Buildings (Certificates and Inspections) (England and Wales) Regulations 2007 or the Home Report if in relation to a residential property in Scotland.
*This is the average speed from the provider with the fastest broadband package available at this postcode. The average speed displayed is based on the download speeds of at least 50% of customers at peak time (8pm to 10pm). Fibre/cable services at the postcode are subject to availability and may differ between properties within a postcode. Speeds can be affected by a range of technical and environmental factors. The speed at the property may be lower than that listed above. You can check the estimated speed and confirm availability to a property prior to purchasing on the broadband provider's website. Providers may increase charges. The information is provided and maintained by Decision Technologies Limited. **This is indicative only and based on a 2-person household with multiple devices and simultaneous usage. Broadband performance is affected by multiple factors including number of occupants and devices, simultaneous usage, router range etc. For more information speak to your broadband provider.
Map data ©OpenStreetMap contributors.




