
Massey Street, Alderley Edge

- PROPERTY TYPE
Apartment
- BEDROOMS
2
- BATHROOMS
1
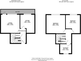
- SIZE
730 sq ft
68 sq m
Description
DESCRIPTION
Located at the very heart of Alderley Edge Village, this generously proportioned and incredibly affordable property offers an excellent opportunity for a wide range of buyers. Whether you are a first-time buyer, downsizer, or investor, this home allows you to enjoy the lifestyle and convenience that central Alderley Edge has to offer.
The accommodation is arranged over two floors, with the property's private entrance situated on the first floor of the development. Access is via a secure communal entrance with staircase leading to the first floor.
Upon entering the property, there is a private entrance hall with a useful storage cupboard. This leads through to a generous lounge, which benefits from a door opening onto a westerly-facing balcony enjoying pleasant views over the communal gardens. The well-appointed kitchen offers ample storage and workspace, with a number of freestanding appliances available by separate negotiation.
To the upper floor, the property provides two generous double bedrooms and a well-appointed bathroom.
A further point of interest is the addition of an external storage cupboard, offering valuable extra space for belongings and residents parking is available.
The property is offered for sale with no onward chain and presents well-proportioned, well-presented accommodation in an exceptionally convenient central village location.
Brochures
Brochure.pdf- COUNCIL TAXA payment made to your local authority in order to pay for local services like schools, libraries, and refuse collection. The amount you pay depends on the value of the property.Read more about council Tax in our glossary page.
- Band: C
- PARKINGDetails of how and where vehicles can be parked, and any associated costs.Read more about parking in our glossary page.
- Yes
- GARDENA property has access to an outdoor space, which could be private or shared.
- Ask agent
- ACCESSIBILITYHow a property has been adapted to meet the needs of vulnerable or disabled individuals.Read more about accessibility in our glossary page.
- Ask agent
Massey Street, Alderley Edge
Add an important place to see how long it'd take to get there from our property listings.
__mins driving to your place
Get an instant, personalised result:
- Show sellers you’re serious
- Secure viewings faster with agents
- No impact on your credit score
Affordability
Notes
Staying secure when looking for property
Ensure you're up to date with our latest advice on how to avoid fraud or scams when looking for property online.
Visit our security centre to find out moreDisclaimer - Property reference 1038811. The information displayed about this property comprises a property advertisement. Rightmove.co.uk makes no warranty as to the accuracy or completeness of the advertisement or any linked or associated information, and Rightmove has no control over the content. This property advertisement does not constitute property particulars. The information is provided and maintained by Gascoigne Halman, Alderley Edge. Please contact the selling agent or developer directly to obtain any information which may be available under the terms of The Energy Performance of Buildings (Certificates and Inspections) (England and Wales) Regulations 2007 or the Home Report if in relation to a residential property in Scotland.
*This is the average speed from the provider with the fastest broadband package available at this postcode. The average speed displayed is based on the download speeds of at least 50% of customers at peak time (8pm to 10pm). Fibre/cable services at the postcode are subject to availability and may differ between properties within a postcode. Speeds can be affected by a range of technical and environmental factors. The speed at the property may be lower than that listed above. You can check the estimated speed and confirm availability to a property prior to purchasing on the broadband provider's website. Providers may increase charges. The information is provided and maintained by Decision Technologies Limited. **This is indicative only and based on a 2-person household with multiple devices and simultaneous usage. Broadband performance is affected by multiple factors including number of occupants and devices, simultaneous usage, router range etc. For more information speak to your broadband provider.
Map data ©OpenStreetMap contributors.





