2 bedroom detached bungalow for sale
Crewe Road, Sandbach, CW11 4NU

- PROPERTY TYPE
Detached Bungalow
- BEDROOMS
2
- BATHROOMS
1
- SIZE
Ask agent
- TENUREDescribes how you own a property. There are different types of tenure - freehold, leasehold, and commonhold.Read more about tenure in our glossary page.
Freehold
Key features
- Detached bungalow with a brilliant layout for easy day to day living
- Two genuine double bedrooms
- Stylish modern kitchen diner with space to sit and eat together
- Spacious living room with patio door through to the garden
- Attic room with stairs, ideal home office, hobby room or excellent storage
- Smart shower room
- Generous gravel driveway providing off road parking
- Private, established rear garden with seating areas and mature planting
- Shed for a workshop or garden room potential
- Walking distance to Sandbach town centre for shops, cafés and amenities
Description
There is a certain feeling you get with a great bungalow, easy living, everything you need on one level, and a layout that just works. This freehold home on Crewe Road nails that feeling, and then adds an extra layer of flexibility with a loft room reached via a staircase, giving you valuable space for modern life.
From the moment you arrive, you will notice how well the home sits back from the road, with a smart gravel driveway providing off road parking. Step inside, and the sense of light and space continues. The living room is a superb size, with the patio doors letting in plenty of natural daylight as well as the warmth of the fireplace. It is a room that works beautifully for relaxing evenings, but it is also perfect for entertaining when friends and family pop over.
The kitchen diner is the heart of the home, modern, stylish and designed for real living. There is excellent worktop space and storage, integrated appliances, and plenty of room for a dining table, so cooking and catching up can happen in the same space without feeling cramped.
Both bedrooms are genuine doubles, which makes a huge difference day to day; you have the space here. The shower room is smart and practical, positioned perfectly for both bedrooms and everyday use.
Upstairs, the loft room is a real bonus. It is ideal as a home office, a hobby room, a quiet snug, or simply brilliant storage that stops the main rooms from becoming cluttered. That extra space changes how the bungalow lives, and buyers always feel the difference.
Outside, side access leads through to the rear garden, which feels established and private, with a mix of planting, seating areas and useful timber outbuildings. Whether you want a workshop, extra storage, or a space for gardening projects, it is all here.
Location wise, Crewe Road is brilliantly placed for town. Being able to walk into Sandbach town centre is one of those things that sounds simple, but it genuinely upgrades everyday life. Coffee, shops, meet ups, errands, it is all close enough to do on foot, which feels like freedom.
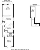
Room sizes from the floor plan include
Living Room 4.20m x 4.36m
Kitchen Diner 4.25m x 4.36m max
Bedroom 1 3.89m x 3.35m
Bedroom 2 2.43m x 3.43m max
Shower Room 1.72m x 2.35m
Loft Room 4.21m x 1.71m
Brochures
Brochure 1Full Details- COUNCIL TAXA payment made to your local authority in order to pay for local services like schools, libraries, and refuse collection. The amount you pay depends on the value of the property.Read more about council Tax in our glossary page.
- Band: C
- PARKINGDetails of how and where vehicles can be parked, and any associated costs.Read more about parking in our glossary page.
- Driveway,Off street
- GARDENA property has access to an outdoor space, which could be private or shared.
- Private garden
- ACCESSIBILITYHow a property has been adapted to meet the needs of vulnerable or disabled individuals.Read more about accessibility in our glossary page.
- Ask agent
Energy performance certificate - ask agent
Crewe Road, Sandbach, CW11 4NU
Add an important place to see how long it'd take to get there from our property listings.
__mins driving to your place
Get an instant, personalised result:
- Show sellers you’re serious
- Secure viewings faster with agents
- No impact on your credit score
Your mortgage
Notes
Staying secure when looking for property
Ensure you're up to date with our latest advice on how to avoid fraud or scams when looking for property online.
Visit our security centre to find out moreDisclaimer - Property reference S1549234. The information displayed about this property comprises a property advertisement. Rightmove.co.uk makes no warranty as to the accuracy or completeness of the advertisement or any linked or associated information, and Rightmove has no control over the content. This property advertisement does not constitute property particulars. The information is provided and maintained by eXp UK, North West. Please contact the selling agent or developer directly to obtain any information which may be available under the terms of The Energy Performance of Buildings (Certificates and Inspections) (England and Wales) Regulations 2007 or the Home Report if in relation to a residential property in Scotland.
*This is the average speed from the provider with the fastest broadband package available at this postcode. The average speed displayed is based on the download speeds of at least 50% of customers at peak time (8pm to 10pm). Fibre/cable services at the postcode are subject to availability and may differ between properties within a postcode. Speeds can be affected by a range of technical and environmental factors. The speed at the property may be lower than that listed above. You can check the estimated speed and confirm availability to a property prior to purchasing on the broadband provider's website. Providers may increase charges. The information is provided and maintained by Decision Technologies Limited. **This is indicative only and based on a 2-person household with multiple devices and simultaneous usage. Broadband performance is affected by multiple factors including number of occupants and devices, simultaneous usage, router range etc. For more information speak to your broadband provider.
Map data ©OpenStreetMap contributors.




