
2 bedroom flat for sale
Southbourne

- PROPERTY TYPE
Flat
- BEDROOMS
2
- BATHROOMS
2
- SIZE
Ask agent
Key features
- Brand New Show Apartment Available
- Modern Kitchen & Bathrooms
- Close to Tuckton, Hengistbury Head & the River
- 2 Bedroom Ground Floor Apartment
- Ready for Occupation, Reserve Today!
Description
SHOW APARTMENT AVAILABLE TO VIEW - This brand new development of 12 modern one and two bedroom apartments and a 2 bedroom Lodge is currently under construction and located just a short walk to the shops at Tuckton. Also within easy reach are the shops, bars and cafes along Southbourne Grove, whilst river walks, Hengistbury Head and Christchurch are also close by.
This development comprises 6 one bedroom apartments and 6 two bedroom apartments plus a two bedroom maisonette (The Lodge) which has its own private entrance and patio area.
Ready for Occupation, Reserve Today!
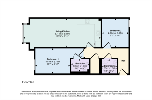
This luxury two bedroom ground floor flat comprises a lounge/kitchen, double bedroom with en-suite shower room, 2nd bedroom, bathroom and allocated off road parking
Fittings include:
Kitchens - integrated induction hob, electric oven, extractor hood, fridge/freezer, dishwasher and washing machine. There will also be task-lighting beneath the high level wall units.
Bathrooms: contemporary white sanitary ware, porcelain wall and floor tiling, under sink vanity unit, chrome towel rails, rain shower head with separate handheld shower, wall mounted controls.
Also within the apartments are Amtico (or similar) flooring in hallways, bathrooms and kitchen/living areas. The bedrooms will be carpeted. Energy efficient LED lighting in the kitchens and bedrooms. Sky+ connectivity in the living room and master bedroom. Video entryphone for all apartments. Double glazed windows. Ecostand, smart-ceramic electric heating. The Lodge will have its own private entrance and patio.
Call today to book in a visit to the Show Apartment
Additional Information
Tenure: Share of Freehold
Lease: Brand New Leases Will Be Created
Ground Rent: N/A
Service Charge: £1363.88 pa
Parking: Parking for most of the 2 Bedroom Apartments only
Utilities: Mains Electricity/Mains Water
Drainage: Mains Drainage
Broadband: Refer to ofcom website
Mobile Signal: Refer to ofcom website
Flood Risk: For more information refer to gov.uk, check long term flood risk
Council Tax Band: TBC
DRAFT DETAILS
We are awaiting verification of these details by the seller(s).
Important Notice: The artist's impression, floor plans, configurations and layouts are included for guidance only. The Developer and Agent therefore gives notice to prospective purchasers that none of the material issued or visual depictions of any kind made on behalf of the Developer and Agent can be relied upon as accurately describing any particular or proposed dwelling or development. All such matters must be treated as intended only as a single illustration and guidance. They are subject to change from time to time without notice and their accuracy is not guaranteed, nor do they constitute part of a contract or a warranty. The fixtures, fittings, services and appliances have not been tested and therefore no guarantee can be given that they are in working order. All measurements are approximate. Prospective purchasers are requested to check before entering into negotiations as to whether the specification has changed.
ALL MEASUREMENTS QUOTED ARE APPROX. AND FOR GUIDANCE ONLY. THE FIXTURES, FITTINGS & APPLIANCES HAVE NOT BEEN TESTED AND THEREFORE NO GUARANTEE CAN BE GIVEN THAT THEY ARE IN WORKING ORDER. YOU ARE ADVISED TO CONTACT THE LOCAL AUTHORITY FOR DETAILS OF COUNCIL TAX. PHOTOGRAPHS ARE REPRODUCED FOR GENERAL INFORMATION AND IT CANNOT BE INFERRED THAT ANY ITEM SHOWN IS INCLUDED.
Solicitors are specifically requested to verify the details of our sales particulars in the pre-contract enquiries, in particular the price, local and other searches, in the event of a sale.
VIEWING
Strictly through the vendors agents GOADSBY
OPENING HOURS
MON - FRI 8:45AM - 5:30PM, SAT 8:45AM - 5:00PM
Brochures
Brochure- COUNCIL TAXA payment made to your local authority in order to pay for local services like schools, libraries, and refuse collection. The amount you pay depends on the value of the property.Read more about council Tax in our glossary page.
- Ask agent
- PARKINGDetails of how and where vehicles can be parked, and any associated costs.Read more about parking in our glossary page.
- Yes
- GARDENA property has access to an outdoor space, which could be private or shared.
- Yes
- ACCESSIBILITYHow a property has been adapted to meet the needs of vulnerable or disabled individuals.Read more about accessibility in our glossary page.
- Ask agent
Southbourne
Add an important place to see how long it'd take to get there from our property listings.
__mins driving to your place
Get an instant, personalised result:
- Show sellers you’re serious
- Secure viewings faster with agents
- No impact on your credit score
Your mortgage
Notes
Staying secure when looking for property
Ensure you're up to date with our latest advice on how to avoid fraud or scams when looking for property online.
Visit our security centre to find out moreDisclaimer - Property reference 1190253. The information displayed about this property comprises a property advertisement. Rightmove.co.uk makes no warranty as to the accuracy or completeness of the advertisement or any linked or associated information, and Rightmove has no control over the content. This property advertisement does not constitute property particulars. The information is provided and maintained by Goadsby, Southbourne. Please contact the selling agent or developer directly to obtain any information which may be available under the terms of The Energy Performance of Buildings (Certificates and Inspections) (England and Wales) Regulations 2007 or the Home Report if in relation to a residential property in Scotland.
*This is the average speed from the provider with the fastest broadband package available at this postcode. The average speed displayed is based on the download speeds of at least 50% of customers at peak time (8pm to 10pm). Fibre/cable services at the postcode are subject to availability and may differ between properties within a postcode. Speeds can be affected by a range of technical and environmental factors. The speed at the property may be lower than that listed above. You can check the estimated speed and confirm availability to a property prior to purchasing on the broadband provider's website. Providers may increase charges. The information is provided and maintained by Decision Technologies Limited. **This is indicative only and based on a 2-person household with multiple devices and simultaneous usage. Broadband performance is affected by multiple factors including number of occupants and devices, simultaneous usage, router range etc. For more information speak to your broadband provider.
Map data ©OpenStreetMap contributors.





