
Claybridge Close, Wigan, WN5

- PROPERTY TYPE
Detached
- BEDROOMS
4
- BATHROOMS
2
- SIZE
1,644 sq ft
153 sq m
- TENUREDescribes how you own a property. There are different types of tenure - freehold, leasehold, and commonhold.Read more about tenure in our glossary page.
Freehold
Key features
- Four double bedrooms
- Impressive detached property
- Immaculately presented throughout
- Perfect for a growing family
- En suite to master bedroom
- Freehold/ Council tax band C
- Conservatory
- Two reception rooms
- Electric vehicle charging point CCTV Security Alarm System Boarded loft
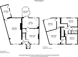
Description
Located on the popular Claybridge Close, this impressive extended detached family home offers generous and highly versatile living accommodation, making it ideal for modern family life. The property is conveniently positioned close to local schools, amenities and excellent transport links.
The ground floor has been thoughtfully arranged to create a welcoming and practical living environment. A spacious lounge/diner forms the heart of the home, providing an excellent setting for both everyday family life and entertaining. This is complemented by an additional reception room, offering a more relaxed or private space to unwind. The stylish modern fitted kitchen is well equipped with integrated appliances, including an induction hob, double oven, dishwasher and washing machine, and opens through to a bright conservatory that enjoys views over the landscaped rear garden. A ground floor W.C. and a versatile additional room—ideal as a fifth bedroom, home office or study—further enhance the flexibility of the layout.
To the first floor, the home continues to impress with four well-proportioned double bedrooms, each offering comfortable accommodation. The master bedroom benefits from its own en suite shower room, while a modern family bathroom serves the remaining bedrooms.
Externally, the generous-sized, landscaped rear garden offers a private and attractive setting for outdoor relaxation and entertaining. To the front, a driveway provides convenient off-road parking and includes an electric vehicle charging point. The property further benefits from CCTV coverage to the entire building and a security alarm system, adding peace of mind. The property is freehold and falls within Council Tax Band C.
EPC Rating: C
- COUNCIL TAXA payment made to your local authority in order to pay for local services like schools, libraries, and refuse collection. The amount you pay depends on the value of the property.Read more about council Tax in our glossary page.
- Band: C
- PARKINGDetails of how and where vehicles can be parked, and any associated costs.Read more about parking in our glossary page.
- Yes
- GARDENA property has access to an outdoor space, which could be private or shared.
- Yes
- ACCESSIBILITYHow a property has been adapted to meet the needs of vulnerable or disabled individuals.Read more about accessibility in our glossary page.
- Ask agent
Energy performance certificate - ask agent
Claybridge Close, Wigan, WN5
Add an important place to see how long it'd take to get there from our property listings.
__mins driving to your place
Get an instant, personalised result:
- Show sellers you’re serious
- Secure viewings faster with agents
- No impact on your credit score
Your mortgage
Notes
Staying secure when looking for property
Ensure you're up to date with our latest advice on how to avoid fraud or scams when looking for property online.
Visit our security centre to find out moreDisclaimer - Property reference dc03ec74-ef4e-403e-bdbb-74fc1b9eb78c. The information displayed about this property comprises a property advertisement. Rightmove.co.uk makes no warranty as to the accuracy or completeness of the advertisement or any linked or associated information, and Rightmove has no control over the content. This property advertisement does not constitute property particulars. The information is provided and maintained by Breakey & Co, Wigan. Please contact the selling agent or developer directly to obtain any information which may be available under the terms of The Energy Performance of Buildings (Certificates and Inspections) (England and Wales) Regulations 2007 or the Home Report if in relation to a residential property in Scotland.
*This is the average speed from the provider with the fastest broadband package available at this postcode. The average speed displayed is based on the download speeds of at least 50% of customers at peak time (8pm to 10pm). Fibre/cable services at the postcode are subject to availability and may differ between properties within a postcode. Speeds can be affected by a range of technical and environmental factors. The speed at the property may be lower than that listed above. You can check the estimated speed and confirm availability to a property prior to purchasing on the broadband provider's website. Providers may increase charges. The information is provided and maintained by Decision Technologies Limited. **This is indicative only and based on a 2-person household with multiple devices and simultaneous usage. Broadband performance is affected by multiple factors including number of occupants and devices, simultaneous usage, router range etc. For more information speak to your broadband provider.
Map data ©OpenStreetMap contributors.





