
4 bedroom semi-detached house for sale
Walsall Road, Birmingham

- PROPERTY TYPE
Semi-Detached
- BEDROOMS
4
- BATHROOMS
2
- SIZE
1,234 sq ft
115 sq m
- TENUREDescribes how you own a property. There are different types of tenure - freehold, leasehold, and commonhold.Read more about tenure in our glossary page.
Freehold
Key features
- Four well-proportioned bedrooms, including loft conversion
- Huge open-plan living and dining space
- Modern kitchen, large utility room & downstairs bathroom
- South-facing rear garden with cherry tree & two sheds
- Stylish and spacious family bathroom on the first floor
- Large driveway
- Excellent location for commuting, schools, and shopping
Description
From the outset, the scale of this property is immediately apparent. A bright entrance hallway leads through to a wonderfully spacious open-plan living and dining area, perfectly suited to modern family life and entertaining. Large patio doors open directly onto a sun-filled south-facing garden, creating a seamless indoor–outdoor connection ideal for summer gatherings and everyday enjoyment.
The rear garden is a real highlight — featuring a mature cherry tree, patio seating area, generous lawn, and a large shed — offering both privacy and space rarely found in this location. Importantly, several neighbouring homes have been extended significantly, making this an exciting opportunity for buyers looking to further enhance or expand the property (subject to the necessary planning consents).
The modern kitchen combines style with practicality and provides direct access to a large utility room and a convenient ground-floor bathroom, adding excellent functionality for busy households.
Upstairs, the first floor offers a stylish family bathroom and three well-proportioned bedrooms. The principal bedroom benefits from elegant south-facing bay windows, while the second double bedroom also enjoys a bay window and built-in wardrobe. The third bedroom is ideal as a child’s room, guest room, or home office.
The property is completed by a thoughtfully designed loft conversion, creating a generous fourth bedroom with space for a double bed — perfect for teenagers, guests, or those working from home who value privacy.
Externally, the home continues to impress. The exceptionally large private driveway to the front is a true rarity, with the current owners comfortably accommodating up to eight vehicles when entertaining — a standout feature that adds huge everyday convenience and long-term appeal.
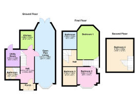
Living Room
9'8" x 28'10" (2.95m x 8.81m)
Kitchen
6'6" x 8'9" (2.00m x 2.68m)
Utility Room
10'1" x 8'2" (3.09m x 2.50m)
Bathroom 1
6'9" x 5'8" (2.08m x 1.73m)
Bathroom 2
6'7" x 8'4" (2.02m x 2.56m)
Bedroom 1
10'4" x 16'2" (3.15m x 4.94m)
Bedroom 2
6'1" x 8'10" (1.87m x 2.70m)
Bedroom 3
10'4" x 8'4" (3.15m x 2.56m)
Bedroom 4
12'9" x 15'8" (3.90m x 4.78m)
Brochures
Brochure 1- COUNCIL TAXA payment made to your local authority in order to pay for local services like schools, libraries, and refuse collection. The amount you pay depends on the value of the property.Read more about council Tax in our glossary page.
- Band: C
- PARKINGDetails of how and where vehicles can be parked, and any associated costs.Read more about parking in our glossary page.
- Driveway
- GARDENA property has access to an outdoor space, which could be private or shared.
- Yes
- ACCESSIBILITYHow a property has been adapted to meet the needs of vulnerable or disabled individuals.Read more about accessibility in our glossary page.
- Ask agent
Walsall Road, Birmingham
Add an important place to see how long it'd take to get there from our property listings.
__mins driving to your place
Get an instant, personalised result:
- Show sellers you’re serious
- Secure viewings faster with agents
- No impact on your credit score
Your mortgage
Notes
Staying secure when looking for property
Ensure you're up to date with our latest advice on how to avoid fraud or scams when looking for property online.
Visit our security centre to find out moreDisclaimer - Property reference RX708340. The information displayed about this property comprises a property advertisement. Rightmove.co.uk makes no warranty as to the accuracy or completeness of the advertisement or any linked or associated information, and Rightmove has no control over the content. This property advertisement does not constitute property particulars. The information is provided and maintained by Azure Residential, Covering Birmingham. Please contact the selling agent or developer directly to obtain any information which may be available under the terms of The Energy Performance of Buildings (Certificates and Inspections) (England and Wales) Regulations 2007 or the Home Report if in relation to a residential property in Scotland.
*This is the average speed from the provider with the fastest broadband package available at this postcode. The average speed displayed is based on the download speeds of at least 50% of customers at peak time (8pm to 10pm). Fibre/cable services at the postcode are subject to availability and may differ between properties within a postcode. Speeds can be affected by a range of technical and environmental factors. The speed at the property may be lower than that listed above. You can check the estimated speed and confirm availability to a property prior to purchasing on the broadband provider's website. Providers may increase charges. The information is provided and maintained by Decision Technologies Limited. **This is indicative only and based on a 2-person household with multiple devices and simultaneous usage. Broadband performance is affected by multiple factors including number of occupants and devices, simultaneous usage, router range etc. For more information speak to your broadband provider.
Map data ©OpenStreetMap contributors.






