
4 bedroom terraced house for sale
Orpen Place, Selsey, PO20

- PROPERTY TYPE
Terraced
- BEDROOMS
4
- BATHROOMS
2
- SIZE
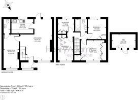
985 sq ft
92 sq m
- TENUREDescribes how you own a property. There are different types of tenure - freehold, leasehold, and commonhold.Read more about tenure in our glossary page.
Freehold
Key features
- Terraced house offered with NO onward chain
- Four bedrooms with option of using the dining room as a 5th bedroom
- Two reception rooms
- Ground floor wet room with w/c and wash hand basin and 1st floor bathroom
- Updating & modernisation required
- New boiler installed in January 2024
- Off road parking
- South facing rear garden
- Close proximity to local amenities, bus route and beach
Description
Presented to the market with no onward chain, this terraced house offers an excellent opportunity for buyers seeking a versatile family home in a highly convenient location. Arranged across two floors, the property features four bedrooms, with the added flexibility of utilising the dining room as a potential fifth bedroom to suit a growing family or those requiring additional work-from-home space.
The ground floor comprises two reception rooms, offering ample space for both relaxation and entertaining, while the adjoining kitchen provides a practical layout for daily living. A ground floor wet room with w/c and wash hand basin ( accessed via the dining room ) adds convenience and accessibility, adding to the main family bathroom located on the first floor. While the property would benefit from updating and modernisation, it presents a blank canvas for buyers to personalise and create a home tailored to their own taste and requirements.
Recent improvements include the installation of a new boiler in January 2024, providing peace of mind and enhanced energy efficiency. Off-road parking is available to the front of the home along with a south facing rear garden. The location is particularly appealing, with a range of local amenities, shops, primary & secondary schools all within easy reach, as well as excellent transport links via nearby bus routes to Chichester. The property is also situated within close proximity to the beach, making it ideal for those who wish to enjoy coastal living. The home offers the opportunity to acquire a property with significant potential in a sought-after area, ideal for families, investors, or anyone looking to create their dream home.
EPC Rating: C
Entrance Porch (0.87m x 2.15m)
Wooden front door opening to the entrance porch with space to hang coats etc, glazed door opening to:
Living/Dining room (4.62m x 6.15m)
L-shaped and maximum measurements. Doors to the garden, kitchen and dining room. Stairs lead up to the 1st floor
Dining room (2.26m x 4.81m)
Formerly the garage having been converted in September 2012. Door to the ground floor wet room
Wet Room
Wet room arrangement with shower, w/c and wash hand basin
Kitchen (2.09m x 3.21m)
Landing
Stairs from the living room lead up to the 1st floor
Bedroom one (3.02m x 3.03m)
measurements are to the face of the wardobe. Built in wardrobes, built in single cupboard
Bedroom two (2.7m x 3.04m)
Built in cupboard housing the boiler
Bedroom three (2.31m x 3.34m)
Twin built in single cupboards/wardrobes
Bedroom four (1.9m x 2.29m)
Currently used as an study, Twin built in single cupboards/wardrobes
Bathroom
Bath with shower over, wash hand basin, w/c
Front Garden
Area of lawn with pathway to the front door
Rear Garden
Patios seating area with the remainder laid to lawn, rear access, shed & greenhouse
Brochures
Property Brochure- COUNCIL TAXA payment made to your local authority in order to pay for local services like schools, libraries, and refuse collection. The amount you pay depends on the value of the property.Read more about council Tax in our glossary page.
- Band: C
- PARKINGDetails of how and where vehicles can be parked, and any associated costs.Read more about parking in our glossary page.
- Yes
- GARDENA property has access to an outdoor space, which could be private or shared.
- Front garden,Rear garden
- ACCESSIBILITYHow a property has been adapted to meet the needs of vulnerable or disabled individuals.Read more about accessibility in our glossary page.
- Ask agent
Orpen Place, Selsey, PO20
Add an important place to see how long it'd take to get there from our property listings.
__mins driving to your place
Get an instant, personalised result:
- Show sellers you’re serious
- Secure viewings faster with agents
- No impact on your credit score
Your mortgage
Notes
Staying secure when looking for property
Ensure you're up to date with our latest advice on how to avoid fraud or scams when looking for property online.
Visit our security centre to find out moreDisclaimer - Property reference c2bc361b-32ab-448e-b535-f2b5e484e1cb. The information displayed about this property comprises a property advertisement. Rightmove.co.uk makes no warranty as to the accuracy or completeness of the advertisement or any linked or associated information, and Rightmove has no control over the content. This property advertisement does not constitute property particulars. The information is provided and maintained by Henry Adams, Selsey. Please contact the selling agent or developer directly to obtain any information which may be available under the terms of The Energy Performance of Buildings (Certificates and Inspections) (England and Wales) Regulations 2007 or the Home Report if in relation to a residential property in Scotland.
*This is the average speed from the provider with the fastest broadband package available at this postcode. The average speed displayed is based on the download speeds of at least 50% of customers at peak time (8pm to 10pm). Fibre/cable services at the postcode are subject to availability and may differ between properties within a postcode. Speeds can be affected by a range of technical and environmental factors. The speed at the property may be lower than that listed above. You can check the estimated speed and confirm availability to a property prior to purchasing on the broadband provider's website. Providers may increase charges. The information is provided and maintained by Decision Technologies Limited. **This is indicative only and based on a 2-person household with multiple devices and simultaneous usage. Broadband performance is affected by multiple factors including number of occupants and devices, simultaneous usage, router range etc. For more information speak to your broadband provider.
Map data ©OpenStreetMap contributors.








