
6 bedroom detached house for sale
Victoria Park Road, London, E9

- PROPERTY TYPE
Detached
- BEDROOMS
6
- BATHROOMS
3
- SIZE
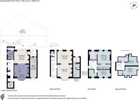
2,555 sq ft
237 sq m
- TENUREDescribes how you own a property. There are different types of tenure - freehold, leasehold, and commonhold.Read more about tenure in our glossary page.
Freehold
Key features
- Detached family home
- Six bedrooms
- Private rear garden
- Utility room
- Off-street parking
- EPC Rating = D
Description
Description
Nestled in a prime location just moments from Victoria Park, this stunning six-bedroom detached home has been extensively refurbished by the current owners since 2018, including all services, the roof and the coach house conversion.
The property boasts off-street parking, and many period features including parquet flooring, open fireplaces and large sash windows.
On the lower ground floor is an open-plan kitchen/dining room featuring marble worktops, a bespoke kitchen island, and bi-folding doors that lead to a rear patio. Steps from the patio ascend to a lawned garden with raised flower beds. This floor includes a wine store, a utility area, and a convenient downstairs cloakroom.
There is a converted coach house, which is accessed via a glass box extension from the kitchen and the garden offering a flexible home studio or self-contained annexe with a bedroom and en-suite shower room above.
On the ground floor is a double reception room with large sash windows overlooking the front and rear gardens. It features open fireplaces and an additional W.C. off the landing.
The home offers five well-proportioned bedrooms on the first and second floors the primary bedroom benefits from an en-suite shower room and ample built-in wardrobes. The additional bedrooms provide flexibility for the family, all served by a modern family bathroom.
At the front of the house, double gates open to off-street parking. A side entrance provides access to the rear garden, where the owners have added built-in storage for bikes and outdoor equipment.
The property is being sold with no onward chain.
Location
The property is on the doorstep of the park and located 0.3 miles from the heart of the village which boasts a Ginger Pig Butcher, Gail's Bakery, delicatessen, fishmonger, grocery stores and a selection of popular pubs and restaurants.
The house is in the catchment (subject to availability and the current year radius) of some of the area's best schools, including Lauriston Primary, Orchard Primary, and Mossbourne Academy.
Transport links can be found at Homerton Station (1 mile) and Bethnal Green Tube (0.8 miles) along with frequent buses to Mile End tube, Hackney Central, Liverpool Street Station and Stanstead Airport.
Source: Google.
Square Footage: 2,555 sq ft
Brochures
Web DetailsParticulars- COUNCIL TAXA payment made to your local authority in order to pay for local services like schools, libraries, and refuse collection. The amount you pay depends on the value of the property.Read more about council Tax in our glossary page.
- Band: G
- PARKINGDetails of how and where vehicles can be parked, and any associated costs.Read more about parking in our glossary page.
- Off street
- GARDENA property has access to an outdoor space, which could be private or shared.
- Yes
- ACCESSIBILITYHow a property has been adapted to meet the needs of vulnerable or disabled individuals.Read more about accessibility in our glossary page.
- Ask agent
Victoria Park Road, London, E9
Add an important place to see how long it'd take to get there from our property listings.
__mins driving to your place
Get an instant, personalised result:
- Show sellers you’re serious
- Secure viewings faster with agents
- No impact on your credit score
Your mortgage
Notes
Staying secure when looking for property
Ensure you're up to date with our latest advice on how to avoid fraud or scams when looking for property online.
Visit our security centre to find out moreDisclaimer - Property reference VIC240201. The information displayed about this property comprises a property advertisement. Rightmove.co.uk makes no warranty as to the accuracy or completeness of the advertisement or any linked or associated information, and Rightmove has no control over the content. This property advertisement does not constitute property particulars. The information is provided and maintained by Savills, Victoria Park. Please contact the selling agent or developer directly to obtain any information which may be available under the terms of The Energy Performance of Buildings (Certificates and Inspections) (England and Wales) Regulations 2007 or the Home Report if in relation to a residential property in Scotland.
*This is the average speed from the provider with the fastest broadband package available at this postcode. The average speed displayed is based on the download speeds of at least 50% of customers at peak time (8pm to 10pm). Fibre/cable services at the postcode are subject to availability and may differ between properties within a postcode. Speeds can be affected by a range of technical and environmental factors. The speed at the property may be lower than that listed above. You can check the estimated speed and confirm availability to a property prior to purchasing on the broadband provider's website. Providers may increase charges. The information is provided and maintained by Decision Technologies Limited. **This is indicative only and based on a 2-person household with multiple devices and simultaneous usage. Broadband performance is affected by multiple factors including number of occupants and devices, simultaneous usage, router range etc. For more information speak to your broadband provider.
Map data ©OpenStreetMap contributors.








