
4 bedroom semi-detached house for sale
Elm Gardens, Brentwood, CM15

- PROPERTY TYPE
Semi-Detached
- BEDROOMS
4
- BATHROOMS
2
- SIZE
Ask agent
- TENUREDescribes how you own a property. There are different types of tenure - freehold, leasehold, and commonhold.Read more about tenure in our glossary page.
Freehold
Key features
- 4 Bed Semi Detached House
- Excellent Condition
- Built in 2018 by Weston Homes with remainder of 10-year warranty.
- Shenfield Station access to Elizabeth Line and Nation Rail
- Master Bedroom with En Suite
- Stylish family bathroom with smart taps / shower bath controls and mirror
- Move Straight In
- Easy Access to A12
- Off St Parking for2 cars
Description
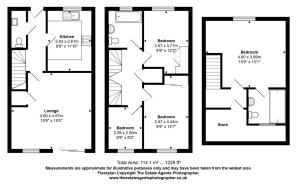
The ground floor welcomes you with an inviting entrance hall leading to a contemporary cloakroom/WC featuring luxurious touch-sensitive bathroom fittings.
The spacious lounge enjoys plenty of natural light and features sliding patio doors opening directly onto the rear garden, creating a seamless indoor-outdoor feel.
The modern, fully fitted kitchen is well equipped with a built-in oven, hob and microwave, while the boiler is neatly housed within a wall cupboard for a clean, streamlined finish.
On the first floor are three well-proportioned bedrooms, all served by a modern family bathroom, again enhanced with stylish touch-sensitive fittings that add a premium feel.
The second floor is dedicated to the impressive principal suite, comprising a generous main bedroom, walk-in wardrobe and a sleek en-suite shower room, complete with touch-sensitive fittings, creating a private and relaxing retreat.
Externally, the property benefits from two allocated parking spaces located to the side. The rear garden is mainly laid to lawn with a patio area ideal for outdoor entertaining, (NOTE the garden narrows to a point) also features outside lighting and a convenient water tap.
Parking for 2 cars adjacent to the house
Kitchen 8'8 x 11'10 (2.63m x 3.61m)
Lounge 15'9 x 15'0 (4.8m x 4.57m)
Master Bedroom 15'9 x 13'1 (4.8m x 3.99m) En Suite
Bedroom 8'9 x 12'2 (2.67 x 3.71m)
Bedroom 8'9 x 14'7 (2.67m x 4.44m)
Bedroom 6'9 x 8'2 (2.05m x 2.5m)
Garden
Present by Simon Young Properties
Brochures
Brochure 1- COUNCIL TAXA payment made to your local authority in order to pay for local services like schools, libraries, and refuse collection. The amount you pay depends on the value of the property.Read more about council Tax in our glossary page.
- Ask agent
- PARKINGDetails of how and where vehicles can be parked, and any associated costs.Read more about parking in our glossary page.
- Yes
- GARDENA property has access to an outdoor space, which could be private or shared.
- Yes
- ACCESSIBILITYHow a property has been adapted to meet the needs of vulnerable or disabled individuals.Read more about accessibility in our glossary page.
- Ask agent
Elm Gardens, Brentwood, CM15
Add an important place to see how long it'd take to get there from our property listings.
__mins driving to your place
Get an instant, personalised result:
- Show sellers you’re serious
- Secure viewings faster with agents
- No impact on your credit score
Your mortgage
Notes
Staying secure when looking for property
Ensure you're up to date with our latest advice on how to avoid fraud or scams when looking for property online.
Visit our security centre to find out moreDisclaimer - Property reference RX706217. The information displayed about this property comprises a property advertisement. Rightmove.co.uk makes no warranty as to the accuracy or completeness of the advertisement or any linked or associated information, and Rightmove has no control over the content. This property advertisement does not constitute property particulars. The information is provided and maintained by TAUK, Covering Nationwide. Please contact the selling agent or developer directly to obtain any information which may be available under the terms of The Energy Performance of Buildings (Certificates and Inspections) (England and Wales) Regulations 2007 or the Home Report if in relation to a residential property in Scotland.
*This is the average speed from the provider with the fastest broadband package available at this postcode. The average speed displayed is based on the download speeds of at least 50% of customers at peak time (8pm to 10pm). Fibre/cable services at the postcode are subject to availability and may differ between properties within a postcode. Speeds can be affected by a range of technical and environmental factors. The speed at the property may be lower than that listed above. You can check the estimated speed and confirm availability to a property prior to purchasing on the broadband provider's website. Providers may increase charges. The information is provided and maintained by Decision Technologies Limited. **This is indicative only and based on a 2-person household with multiple devices and simultaneous usage. Broadband performance is affected by multiple factors including number of occupants and devices, simultaneous usage, router range etc. For more information speak to your broadband provider.
Map data ©OpenStreetMap contributors.






