
5 bedroom semi-detached house for sale
Camden Park Road, London, NW1

- PROPERTY TYPE
Semi-Detached
- BEDROOMS
5
- BATHROOMS
2
- SIZE
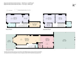
2,076 sq ft
193 sq m
- TENUREDescribes how you own a property. There are different types of tenure - freehold, leasehold, and commonhold.Read more about tenure in our glossary page.
Freehold
Key features
- Reimagined period home
- Design-led renovation
- Open-plan living
- Bespoke shaker kitchen
- Premium integrated appliances
- Principal bedroom suite
- Underfloor heating
- Landscaped garden
- Original character preserved
- Excellent transport links
Description
Arranged over three floors, the house offers generous and well-considered accommodation which exceeds 2,000 sq ft. The ground floor is centred around a striking open-plan kitchen, dining and living space that connects directly to the garden, creating a natural flow for everyday living and entertaining.
The bespoke shaker-style kitchen is finished with porcelain worktops, integrated Smeg appliances and a 4-in-1 boiling water tap, complemented by a separate pantry and utility room. To the front, a substantial formal reception room provides a more intimate living space, with a guest W/C completing the level.
The first floor hosts the principal bedroom suite, complete with an en suite bathroom and dedicated dressing room. A further bedroom on this level is ideally suited as a nursery, guest room or study.
On the second floor, two additional bedrooms are positioned alongside a refined family bathroom, with one bedroom benefitting from a walk-in wardrobe—ideal for older children or guests.
Engineered wood flooring runs through the principal living areas, with new carpets to the bedrooms. Brand-new timber sash windows preserve the home’s period integrity while delivering modern performance, and bespoke internal doors add a tailored finish throughout. Underfloor heating enhances comfort across the ground floor and bathrooms, while finishes by Mandarin Stone and Claybrook, paired with ABI Interiors fittings, create a refined and cohesive palette.
Floor-to-ceiling Cortizo sliding doors open onto a landscaped garden, seamlessly extending the living space outdoors. Repointed brickwork completes the exterior, enhancing kerb appeal and underscoring the quality and care of this considered renovation.
Camden Park Road sits in the heart of Camden whilst also perfectly located to enjoy everything that Kentish Town has to offer. It is also perfectly positioned for access to the green open spaces of Regent’s Park and the lively cultural scene of King’s Cross and Granary Square. The Regent’s Canal towpath is a short walk away, offering a scenic route into Primrose Hill and Little Venice.
Camden Road Overground and Camden Town Underground stations are nearby, providing quick access across London via the Northern Line and Overground networks. St Pancras International is also within easy reach, ideal for domestic and international travel.
The area is known for its eclectic mix of independent shops, cafés, and restaurants—from London classics like Andy’s Taverna which has been there since 1967 to some of North London’s most vibrant street food markets including Camden Lock
Brochures
Brochure 1- COUNCIL TAXA payment made to your local authority in order to pay for local services like schools, libraries, and refuse collection. The amount you pay depends on the value of the property.Read more about council Tax in our glossary page.
- Ask agent
- PARKINGDetails of how and where vehicles can be parked, and any associated costs.Read more about parking in our glossary page.
- Ask agent
- GARDENA property has access to an outdoor space, which could be private or shared.
- Yes
- ACCESSIBILITYHow a property has been adapted to meet the needs of vulnerable or disabled individuals.Read more about accessibility in our glossary page.
- Ask agent
Camden Park Road, London, NW1
Add an important place to see how long it'd take to get there from our property listings.
__mins driving to your place
Get an instant, personalised result:
- Show sellers you’re serious
- Secure viewings faster with agents
- No impact on your credit score

Your mortgage
Notes
Staying secure when looking for property
Ensure you're up to date with our latest advice on how to avoid fraud or scams when looking for property online.
Visit our security centre to find out moreDisclaimer - Property reference RX708420. The information displayed about this property comprises a property advertisement. Rightmove.co.uk makes no warranty as to the accuracy or completeness of the advertisement or any linked or associated information, and Rightmove has no control over the content. This property advertisement does not constitute property particulars. The information is provided and maintained by Grant J Bates Property, London. Please contact the selling agent or developer directly to obtain any information which may be available under the terms of The Energy Performance of Buildings (Certificates and Inspections) (England and Wales) Regulations 2007 or the Home Report if in relation to a residential property in Scotland.
*This is the average speed from the provider with the fastest broadband package available at this postcode. The average speed displayed is based on the download speeds of at least 50% of customers at peak time (8pm to 10pm). Fibre/cable services at the postcode are subject to availability and may differ between properties within a postcode. Speeds can be affected by a range of technical and environmental factors. The speed at the property may be lower than that listed above. You can check the estimated speed and confirm availability to a property prior to purchasing on the broadband provider's website. Providers may increase charges. The information is provided and maintained by Decision Technologies Limited. **This is indicative only and based on a 2-person household with multiple devices and simultaneous usage. Broadband performance is affected by multiple factors including number of occupants and devices, simultaneous usage, router range etc. For more information speak to your broadband provider.
Map data ©OpenStreetMap contributors.






