
2 bedroom terraced house for sale
Augustus Road, Coventry

- PROPERTY TYPE
Terraced
- BEDROOMS
2
- BATHROOMS
1
- SIZE
Ask agent
- TENUREDescribes how you own a property. There are different types of tenure - freehold, leasehold, and commonhold.Read more about tenure in our glossary page.
Freehold
Key features
- Two Bedroom
- End of Terrace
- No Onward Chain
- Side Access
- Two Reception Rooms
- Family Bathroom
- Rear Garden
- Close to City Centre
- Victorian Terrace
- EPC - D
Description
Set within the CV1 area, the property enjoys a convenient position close to Primrose Hill Park, with Coventry city centre, local shops, and transport connections all easily accessible. The location is well suited to investors, developers, or owner-occupiers seeking to design a home to their own taste.
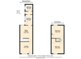
The ground floor features a front living room, a separate dining room incorporating the staircase to the first floor, a kitchen with direct access to the rear garden, and a shower room. Upstairs, there are two generously sized bedrooms, offering a straightforward and adaptable layout.
The house is fitted with gas central heating and double glazing, and as an end-terrace further benefits include side access and on-street parking. While the property requires updating throughout, it offers excellent scope for redesign and improvement, allowing buyers to maximise its potential.
To the rear is a private garden, providing outdoor space that could be enhanced or landscaped. With refurbishment completed, the property has the potential to become an appealing residence or a strong addition to a rental portfolio.
Front of Property
Lounge
11'9" x 11'3" (3.59m x 3.43m)
Dining Room
11'9" x 12'2" (3.59m x 3.73m)
Kitchen
6'9" x 10'0" (2.06m x 3.05m)
Bathroom
6'9" x 6'2" (2.06m x 1.89m)
First Floor Landing
Bedroom One
11'9" x 11'3" (3.59m x 3.43m)
Bedroom Two
11'9" x 12'2" (3.59m x 3.73m)
Rear Garden
Disclaimer
haart Estate Agents also offer a professional, ARLA accredited Lettings and Management Service. If you are considering renting your property in order to purchase, are looking at buy to let or would like a free review of your current portfolio then please call the Lettings Branch Manager on the number shown above.
haart Estate Agents is the seller's agent for this property. Your conveyancer is legally responsible for ensuring any purchase agreement fully protects your position. We make detailed enquiries of the seller to ensure the information provided is as accurate as possible. Please inform us if you become aware of any information being inaccurate.
Brochures
Material InformationBrochure- COUNCIL TAXA payment made to your local authority in order to pay for local services like schools, libraries, and refuse collection. The amount you pay depends on the value of the property.Read more about council Tax in our glossary page.
- Band: A
- PARKINGDetails of how and where vehicles can be parked, and any associated costs.Read more about parking in our glossary page.
- Ask agent
- GARDENA property has access to an outdoor space, which could be private or shared.
- Yes
- ACCESSIBILITYHow a property has been adapted to meet the needs of vulnerable or disabled individuals.Read more about accessibility in our glossary page.
- Ask agent
Augustus Road, Coventry
Add an important place to see how long it'd take to get there from our property listings.
__mins driving to your place
Get an instant, personalised result:
- Show sellers you’re serious
- Secure viewings faster with agents
- No impact on your credit score
Your mortgage
Notes
Staying secure when looking for property
Ensure you're up to date with our latest advice on how to avoid fraud or scams when looking for property online.
Visit our security centre to find out moreDisclaimer - Property reference 0376_HRT037642771. The information displayed about this property comprises a property advertisement. Rightmove.co.uk makes no warranty as to the accuracy or completeness of the advertisement or any linked or associated information, and Rightmove has no control over the content. This property advertisement does not constitute property particulars. The information is provided and maintained by haart, Coventry. Please contact the selling agent or developer directly to obtain any information which may be available under the terms of The Energy Performance of Buildings (Certificates and Inspections) (England and Wales) Regulations 2007 or the Home Report if in relation to a residential property in Scotland.
*This is the average speed from the provider with the fastest broadband package available at this postcode. The average speed displayed is based on the download speeds of at least 50% of customers at peak time (8pm to 10pm). Fibre/cable services at the postcode are subject to availability and may differ between properties within a postcode. Speeds can be affected by a range of technical and environmental factors. The speed at the property may be lower than that listed above. You can check the estimated speed and confirm availability to a property prior to purchasing on the broadband provider's website. Providers may increase charges. The information is provided and maintained by Decision Technologies Limited. **This is indicative only and based on a 2-person household with multiple devices and simultaneous usage. Broadband performance is affected by multiple factors including number of occupants and devices, simultaneous usage, router range etc. For more information speak to your broadband provider.
Map data ©OpenStreetMap contributors.








