
Commercial property for sale
Former Methodist Church, Victoria Road, Platt Bridge, WN2
- PROPERTY TYPE
Commercial Property
- SIZE
Ask agent
Description
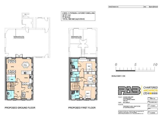
The former Methodist Church on the corner of Victoria Road/Millers Lane is available for sale.
This is a unique property with the opportuniy to keep some of the original features of the church.
The owners have had architectural drawings drafted for a spacious three bedrooms family home but you could use the layout for many other types of properties including apartments (subject to planning permission).
There will be houses built on the land next to the church making this a lovely new build part of the street.
Former Methodist Church, Victoria Road, Platt Bridge, WN2
NEAREST STATIONS
Distances are straight line measurements from the centre of the postcode- Ince Station1.5 miles
- Hindley Station1.9 miles
- Wigan North Western Station2.1 miles
Notes
Disclaimer - Property reference borron_910172234. The information displayed about this property comprises a property advertisement. Rightmove.co.uk makes no warranty as to the accuracy or completeness of the advertisement or any linked or associated information, and Rightmove has no control over the content. This property advertisement does not constitute property particulars. The information is provided and maintained by Borron Shaw, Wigan. Please contact the selling agent or developer directly to obtain any information which may be available under the terms of The Energy Performance of Buildings (Certificates and Inspections) (England and Wales) Regulations 2007 or the Home Report if in relation to a residential property in Scotland.
Map data ©OpenStreetMap contributors.






