Residential development for sale
Market Street, Armagh, County Armagh, Northern Ireland, BT60
- PROPERTY TYPE
Residential Development
- BEDROOMS
4
- BATHROOMS
4
- SIZE
Ask agent
Description
Please note this property will be offered by online auction (unless sold prior). For auction date and time please visit may decide to accept pre-auction bids so please register your interest with us to avoid disappointment.
We are duly appointed to offer to the open market this development site formerly known as the "Social Club" of Keady O'Dwyers Gealic Football Club which is located within the centre of Keady town.
The development is within a few minute walk of all local amenities Keady has to offer as well as close proximity to all local bus routes and stops.
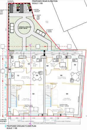
The property would be seen as an ideal purchase for investors and the likes as it has passed planning permission for two new semi-detached residential homes.
The planning permission was granted on the 30th September 2021 and the reference number is LA08/2021/1429/F.
An investment opportunity of this stature rarely presents itself to the open market.
To access the legal pack, please copy and paste the link below
TO VIEW OR MAKE A BID Contact CPS property or iamsold NI,
Auctioneers Comments:
This property is for sale under Traditional Auction terms. Should you view, offer or bid on the property, your information will be shared with the Auctioneer, iamsold.
With this auction method, the buyer and seller must Exchange immediately, and Complete 28 days thereafter.
The buyer is required to make payment of a non-refundable Contract Deposit of 10% to a minimum of £6,000.00.
The buyer is also required to make a payment of a non-refundable, Buyer Administration Fee of 1.80% of the purchase price including VAT, subject to a minimum of £2,400.00 including VAT, for conducting the auction.
Buyers will be required to go through an identification verification process with iamsold and provide proof of how the purchase would be funded.
Terms and conditions apply to the traditional auction method and you are required to check the Buyer Information Pack for any special terms and conditions associated with this lot.
The property is subject to an undisclosed Reserve Price with both the Reserve Price and Starting Bid being subject to change.
Market Street, Armagh, County Armagh, Northern Ireland, BT60
NEAREST STATIONS
Distances are straight line measurements from the centre of the postcode- Bangor, Northern Ireland Station50.5 miles
Notes
Disclaimer - Property reference 24MarketSt. The information displayed about this property comprises a property advertisement. Rightmove.co.uk makes no warranty as to the accuracy or completeness of the advertisement or any linked or associated information, and Rightmove has no control over the content. This property advertisement does not constitute property particulars. The information is provided and maintained by iamsold NI, Belfast. Please contact the selling agent or developer directly to obtain any information which may be available under the terms of The Energy Performance of Buildings (Certificates and Inspections) (England and Wales) Regulations 2007 or the Home Report if in relation to a residential property in Scotland.
Auction Fees: The purchase of this property may include associated fees not listed here, as it is to be sold via auction. To find out more about the fees associated with this property please call iamsold NI, Belfast on 02891 242304.
*Guide Price: An indication of a seller's minimum expectation at auction and given as a Guide Price or a range of Guide Prices. This is not necessarily the figure a property will sell for and is subject to change prior to the auction.
Reserve Price: Each auction property will be subject to a Reserve Price below which the property cannot be sold at auction. Normally the Reserve Price will be set within the range of Guide Prices or no more than 10% above a single Guide Price.
Map data ©OpenStreetMap contributors.




