
3 bedroom semi-detached house for sale
Meadow Court, Littleport, Cambridgeshire

- PROPERTY TYPE
Semi-Detached
- BEDROOMS
3
- BATHROOMS
1
- SIZE
1,152 sq ft
107 sq m
- TENUREDescribes how you own a property. There are different types of tenure - freehold, leasehold, and commonhold.Read more about tenure in our glossary page.
Freehold
Key features
- Three Bedroom Semi-Detached Property
- Garage & Ample Parking For Multiple Vehicles
- Fully Renovated Internally - Move In Ready
- Recently Fitted Kitchen/Diner With Access To Rear Garden
- Generous & Useful Utility Space With Access To Rear Garden
- Priced To Sell
Description
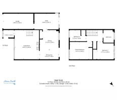
The ground floor is laid out with everyday living in mind. A spacious living room provides a comfortable place to relax, while the kitchen opens into a defined dining area, creating a sociable yet practical space for family meals and entertaining. One of the standout features of the home is the large utility room, offering excellent additional storage and functionality, with direct access to the rear garden; ideal for busy family life, pets or muddy boots. The garage is also accessed via this area, adding to the home’s everyday practicality.
Upstairs, the property offers three genuine bedrooms, including a well-sized main bedroom and a strong second double. The third bedroom is ideal as a child’s room, nursery or home office. A family bathroom serves the first floor.
Externally, the property benefits from driveway parking, a garage and a quiet residential setting with green space nearby, creating a pleasant and established neighbourhood feel. The rear garden is easily accessible from the utility room, enhancing the home’s usability.
This is a well-balanced home that offers space, storage and a sensible layout, all presented in excellent condition and attractively priced for buyers looking for a straightforward move.
Early viewing is highly recommended.
- COUNCIL TAXA payment made to your local authority in order to pay for local services like schools, libraries, and refuse collection. The amount you pay depends on the value of the property.Read more about council Tax in our glossary page.
- Ask agent
- PARKINGDetails of how and where vehicles can be parked, and any associated costs.Read more about parking in our glossary page.
- Yes
- GARDENA property has access to an outdoor space, which could be private or shared.
- Yes
- ACCESSIBILITYHow a property has been adapted to meet the needs of vulnerable or disabled individuals.Read more about accessibility in our glossary page.
- Ask agent
Meadow Court, Littleport, Cambridgeshire
Add an important place to see how long it'd take to get there from our property listings.
__mins driving to your place
Get an instant, personalised result:
- Show sellers you’re serious
- Secure viewings faster with agents
- No impact on your credit score
Your mortgage
Notes
Staying secure when looking for property
Ensure you're up to date with our latest advice on how to avoid fraud or scams when looking for property online.
Visit our security centre to find out moreDisclaimer - Property reference RX708709. The information displayed about this property comprises a property advertisement. Rightmove.co.uk makes no warranty as to the accuracy or completeness of the advertisement or any linked or associated information, and Rightmove has no control over the content. This property advertisement does not constitute property particulars. The information is provided and maintained by iad, Nationwide. Please contact the selling agent or developer directly to obtain any information which may be available under the terms of The Energy Performance of Buildings (Certificates and Inspections) (England and Wales) Regulations 2007 or the Home Report if in relation to a residential property in Scotland.
*This is the average speed from the provider with the fastest broadband package available at this postcode. The average speed displayed is based on the download speeds of at least 50% of customers at peak time (8pm to 10pm). Fibre/cable services at the postcode are subject to availability and may differ between properties within a postcode. Speeds can be affected by a range of technical and environmental factors. The speed at the property may be lower than that listed above. You can check the estimated speed and confirm availability to a property prior to purchasing on the broadband provider's website. Providers may increase charges. The information is provided and maintained by Decision Technologies Limited. **This is indicative only and based on a 2-person household with multiple devices and simultaneous usage. Broadband performance is affected by multiple factors including number of occupants and devices, simultaneous usage, router range etc. For more information speak to your broadband provider.
Map data ©OpenStreetMap contributors.





