3 bedroom terraced house for sale
Bulkington Road, Bedworth

- PROPERTY TYPE
Terraced
- BEDROOMS
3
- BATHROOMS
1
- SIZE
Ask agent
- TENUREDescribes how you own a property. There are different types of tenure - freehold, leasehold, and commonhold.Read more about tenure in our glossary page.
Freehold
Key features
- Mid Terraced
- Three Bedrooms
- Living Room
- Spacious Kitchen Diner
- Ground Floor Bathroom
- Private Rear Garden
- Offered With No Onward Chain
- Freehold
- Council Tax Banding A
- EPC Rating D
Description
IN MORE DETAIL THE PROPERTY COMPRISES
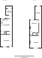
Living room 11' 10" x 11' 4" (3.61m x 3.45m) UPVC double glazed entrance door, UPVC double glazed window to front aspect, double central heating radiator, T.V and Telephone points.
Kitchen Diner 11' 11" x 11' 4" (3.63m x 3.45m) Fitted with range of matching base units and wall cupboards, roll top work surfaces with complimentary tilings to splash backs, inset single drainer stainless steel sink unit, single central heating radiator. Plumbing for washing machine, electric oven and hob, extractor hood over, double glazed window to rear aspect.
Rear Lobby Having tiled flooring and UPVC double glazed door leading to rear garden.
Bathroom White panelled bath with shower above, white wash basin set into a vanity unit, white low level W.C, single central heating radiator, Double glazed obscure windows to side and rear aspects.
Landing
Bedroom One 11' 4" x 11' 4" (3.45m x 3.45m) Double glazed window to front aspect, cast iron fireplace, single central heating radiator.
Bedroom Two 12' x 7' 10" (3.66m x 2.39m) Double glazed window to rear aspect, cast iron fireplace, built in storage cupboard.
Bedroom Three 13' 1" x 6' 4" (3.99m x 1.93m) Double glazed window to rear aspect, single central heating radiator.
Rear Garden Mainly laid to lawn with paved patio and purpose built shed. Surrounding fence panels, right of way access through neighbouring property.
GENERAL INFORMATION / MATERIAL INFORMATION PART C Nuneaton & Bedworth Borough Council. Council Tax Banding A. EPC Rating D.
Parts of Bedworth & Exhall are located in an ex coal mining area.
Low Floor Risk Area.
The Vendor has informed the Agents, they are not aware of any Building Safety issues.
The Vendor has informed the Agents, they are not aware of any planning considerations in direct locality.
We have been made aware the property is Standard Brick Construction. Right of access through neighbouring property.
TENURE: we understand from the vendors that the property is freehold with vacant possession on completion.
SERVICES: Russell Cope Estate Agents have not tested any apparatus, equipment, fittings, etc, or services to this property, so cannot confirm they are in working order or fit for the purpose. A buyer is recommended to obtain confirmation from their Surveyor or Solicitor.
FIXTURES AND FITTINGS: only those as mentioned in these details will be included in the sale.
MEASUREMENTS: the measurements provided are given as a general guide only and are all approximate.
VIEWING: by prior appointment through the Sole Agents.
Brochures
A4 Portrait Windo...- COUNCIL TAXA payment made to your local authority in order to pay for local services like schools, libraries, and refuse collection. The amount you pay depends on the value of the property.Read more about council Tax in our glossary page.
- Band: A
- PARKINGDetails of how and where vehicles can be parked, and any associated costs.Read more about parking in our glossary page.
- On street
- GARDENA property has access to an outdoor space, which could be private or shared.
- Yes
- ACCESSIBILITYHow a property has been adapted to meet the needs of vulnerable or disabled individuals.Read more about accessibility in our glossary page.
- Ask agent
Energy performance certificate - ask agent
Bulkington Road, Bedworth
Add an important place to see how long it'd take to get there from our property listings.
__mins driving to your place
Get an instant, personalised result:
- Show sellers you’re serious
- Secure viewings faster with agents
- No impact on your credit score
Your mortgage
Notes
Staying secure when looking for property
Ensure you're up to date with our latest advice on how to avoid fraud or scams when looking for property online.
Visit our security centre to find out moreDisclaimer - Property reference 102700002633. The information displayed about this property comprises a property advertisement. Rightmove.co.uk makes no warranty as to the accuracy or completeness of the advertisement or any linked or associated information, and Rightmove has no control over the content. This property advertisement does not constitute property particulars. The information is provided and maintained by Russell Cope, Bedworth. Please contact the selling agent or developer directly to obtain any information which may be available under the terms of The Energy Performance of Buildings (Certificates and Inspections) (England and Wales) Regulations 2007 or the Home Report if in relation to a residential property in Scotland.
*This is the average speed from the provider with the fastest broadband package available at this postcode. The average speed displayed is based on the download speeds of at least 50% of customers at peak time (8pm to 10pm). Fibre/cable services at the postcode are subject to availability and may differ between properties within a postcode. Speeds can be affected by a range of technical and environmental factors. The speed at the property may be lower than that listed above. You can check the estimated speed and confirm availability to a property prior to purchasing on the broadband provider's website. Providers may increase charges. The information is provided and maintained by Decision Technologies Limited. **This is indicative only and based on a 2-person household with multiple devices and simultaneous usage. Broadband performance is affected by multiple factors including number of occupants and devices, simultaneous usage, router range etc. For more information speak to your broadband provider.
Map data ©OpenStreetMap contributors.







