
2 bedroom detached bungalow for sale
Blackberry Lane, Selsey, PO20

- PROPERTY TYPE
Detached Bungalow
- BEDROOMS
2
- BATHROOMS
1
- SIZE
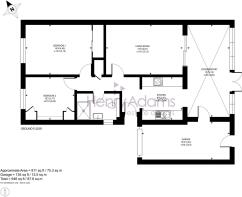
811 sq ft
75 sq m
- TENUREDescribes how you own a property. There are different types of tenure - freehold, leasehold, and commonhold.Read more about tenure in our glossary page.
Freehold
Key features
- Well presented detached bungalow in cul-de-sac location
- Two double bedrooms both with built in wardrobes
- Living room and conservatory
- Modern kitchen with integrated appliances
- Modern shower room
- Gas heating & double glazing throughout
- Driveway & garage
- Low maintenance gardens to both front & rear
Description
The property features two double bedrooms, each benefiting from built in wardrobes that provide ample storage space. The inviting living room is filled with natural light and leads seamlessly into a bright conservatory, itself stretching along the rear of the home and creating an ideal setting for relaxation or entertaining guests. The modern kitchen is equipped with integrated appliances, offering both functionality and style for every-day cooking. A sleek and modern shower room adds to the property’s appeal, ensuring convenience and comfort.
Throughout the bungalow, gas central heating and double glazing contribute to a warm and energy efficient environment. Practicality is further enhanced by the presence of a driveway and garage, providing secure parking and additional storage options. The property’s low maintenance gardens to both the front and rear are designed for ease of care, allowing residents to enjoy attractive outdoor spaces without the need for extensive upkeep.
EPC Rating: C
Covered entrance
Covered entrance with double glazed front door opening to:
Entrance Hall
Doors to all rooms
Living room (3.13m x 4.81m)
Sliding double glazed door to the conservatory
Kitchen (2.64m x 2.67m)
Integrated dishwasher and fridge.
Conservatory (2.66m x 5.79m)
French doors to the garden and double glazed door into the garage
Bedroom One (3.13m x 4.4m)
Built in double wardrobe
Bedroom Two (2.69m x 3.17m)
Built in twin single wardrobes and overbed storage cupboards
Shower Room
Walk in shower, wash hand basin and w/c
Front Garden
Laid to stone for ease of upkeep along with providing additional off road parking if required.
Rear Garden
Decked seating area, section of artificial lawn along with flower borders, wooden shed and greenhouse
Parking - Driveway
Extending along the side of the bungalow and leading to the garage
Parking - Garage
Electrically operated up & over door, light, power and personal door into the conservatory and double glazed door to garden
Brochures
Property Brochure- COUNCIL TAXA payment made to your local authority in order to pay for local services like schools, libraries, and refuse collection. The amount you pay depends on the value of the property.Read more about council Tax in our glossary page.
- Band: D
- PARKINGDetails of how and where vehicles can be parked, and any associated costs.Read more about parking in our glossary page.
- Garage,Driveway
- GARDENA property has access to an outdoor space, which could be private or shared.
- Front garden,Rear garden
- ACCESSIBILITYHow a property has been adapted to meet the needs of vulnerable or disabled individuals.Read more about accessibility in our glossary page.
- Ask agent
Blackberry Lane, Selsey, PO20
Add an important place to see how long it'd take to get there from our property listings.
__mins driving to your place
Get an instant, personalised result:
- Show sellers you’re serious
- Secure viewings faster with agents
- No impact on your credit score
Your mortgage
Notes
Staying secure when looking for property
Ensure you're up to date with our latest advice on how to avoid fraud or scams when looking for property online.
Visit our security centre to find out moreDisclaimer - Property reference a0681f66-ef3e-4fb4-ab23-e0f0a63e8933. The information displayed about this property comprises a property advertisement. Rightmove.co.uk makes no warranty as to the accuracy or completeness of the advertisement or any linked or associated information, and Rightmove has no control over the content. This property advertisement does not constitute property particulars. The information is provided and maintained by Henry Adams, Selsey. Please contact the selling agent or developer directly to obtain any information which may be available under the terms of The Energy Performance of Buildings (Certificates and Inspections) (England and Wales) Regulations 2007 or the Home Report if in relation to a residential property in Scotland.
*This is the average speed from the provider with the fastest broadband package available at this postcode. The average speed displayed is based on the download speeds of at least 50% of customers at peak time (8pm to 10pm). Fibre/cable services at the postcode are subject to availability and may differ between properties within a postcode. Speeds can be affected by a range of technical and environmental factors. The speed at the property may be lower than that listed above. You can check the estimated speed and confirm availability to a property prior to purchasing on the broadband provider's website. Providers may increase charges. The information is provided and maintained by Decision Technologies Limited. **This is indicative only and based on a 2-person household with multiple devices and simultaneous usage. Broadband performance is affected by multiple factors including number of occupants and devices, simultaneous usage, router range etc. For more information speak to your broadband provider.
Map data ©OpenStreetMap contributors.








